Przeworsk
ul. Ignacego Krasickiego
lokal na sprzedaż Bez pośrednika

Lokal Przeworsk, ul. Ignacego Krasickiego
Cena
1 200 000
Powierzchnia
179
Cena za m²
6 704
Przeworsk · 1 200 000 zł

Ogłoszenie właściciela - bez pośredników

Lokal Przeworsk, ul. Ignacego Krasickiego. Zdjęcie 1
Lokal Przeworsk, ul. Ignacego Krasickiego. Zdjęcie 1

Bez pośrednika. Oszczędzasz 36 000 zł na prowizji pośrednika!

Sprzedam segment w budynku handlowo – usługowym w samym centrum miasta wraz z działką, na której się znajduje.

Lokalizacja:
Przeworsk, ul. Ignacego Krasickiego 2, centrum miasta, tuż przy dworcu PKS, obok sklep Biedronka i Rossman

Opis:
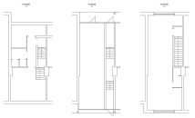
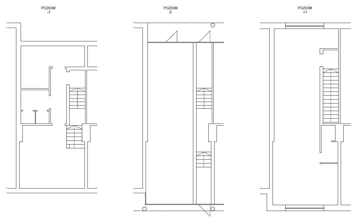
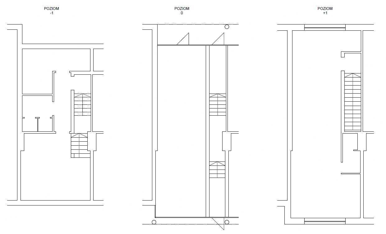
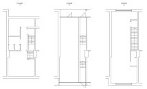
Segment składa się z 3 niezależnych lokali handlowo – usługowych. Każdy z nich ma osobne wejście i może funkcjonować niezależnie od pozostałych lokali. Łącznie segment ma ok. 179m2 powierzchni użytkowej i 89m2 powierzchni działki.
Dużym atutem nieruchomości jest jej lokalizacja – samo centrum miasta. Dodatkowo budynek można użytkować w całości lub dzielić na lokale tak jak w tej chwili. Nie ma problemu, żeby usunąć ścianki działowe i połączyć lokale między sobą.

Poziom -1
Składa się z kilku pomieszczeń – głównej sali sprzedaży i zaplecza z pomieszczeniem socjalnym. Posiada osobne wejście z zewnątrz od strony ul. Krasickiego.

Poziom 0
Składa się z sali sprzedaży i pomieszczenia socjalnego. Posiada osobne wejście z zewnątrz od strony ul. Krasickiego.

Poziom +1
Składa się z sali sprzedaży i pomieszczenia socjalnego. Posiada osobne wejście z zewnątrz od strony dworca PKS.

Instalacje:
Lokale ogrzewane są kotłem gazowym, wyposażone są w instalacje elektryczne, wodne i kanalizacyjne. Każdy z lokali ma osobne podliczniki, co ułatwia rozliczanie najemcom zużycia mediów.

Cena:
1 200 000zł

Proszę o kontakt telefoniczny.

  • ul. Ignacego Krasickiego, Przeworsk, powiat przeworski
  • Na sprzedaż lokal o powierzchni 179 m²
  • Oferta dodana bezpośrednio przez właściciela ponad miesiąc temu
Wróć
Największa baza ogłoszeń bez pośredników
Zarejestruj się, aby przejść dalej
lub

Kontynuując akceptujesz
Regulamin i Politykę prywatności

Masz już konto na adresowo.pl?
Zaloguj się

Mamy dla Ciebie kredyt hipoteczny z niską ratą! Chcesz poznać szczegóły?

Kontakt z VeloBank:
- ofertę, wniosek i decyzję o przyznaniu kredytu w procesie online,
- wsparcie eksperta hipotecznego na każdym kroku,
- kredyt do 90% wartości nieruchomości.





Wyrażam zgodę na przetwarzanie moich danych osobowych zawartych w formularzu na stronie adresowo.pl przez VeloBank S.A. z siedzibą w Warszawie przy Rondo Ignacego Daszyńskiego 2C (Bank), a tym samym na ich przetwarzanie, w tym profilowanie, przez Bank w celu marketingu produktów i usług Banku za pośrednictwem rozmowy telefonicznej i sms. Zgoda może być w każdej chwili wycofana. Cofnięcie zgody nie ma wpływu na zgodność z prawem przetwarzania danych przed jej wycofaniem.