Działka na sprzedaż bez pośredników
ul. Sympatyczna Kopki

Działka budowlana Kopki, ul. Sympatyczna. Zdjęcie 1

Działka na sprzedaż bez pośredników Kopki ul. Sympatyczna

389 000
297 zł/m²
1 310
Kopki, Sympatyczna - lokalizacja przybliżona
Bezpośrednio od właściciela

Jeśli nie potrzebujesz pośrednika, zaoszczędzisz około 11 700 zł. Potrzebujesz wsparcia? Skorzystaj z pomocy agenta.

Na sprzedaż działka budowlana o powierzchni 1310 m², położona w miejscowości Kopki, ul. Sympatyczna (6/26), gmina Wiązowna.

To oferta dla osoby, która chce kupić działkę już przygotowaną do rozpoczęcia budowy i ominąć najbardziej czasochłonny etap formalności. W cenie jest nie tylko grunt, ale również indywidualny projekt domu, prawomocne pozwolenie na budowę oraz wykonane podstawowe przygotowanie inwestycji.

Najważniejsze informacje:
- powierzchnia działki: 1310 m²
- wymiary: ok. 27 x 48,6 m
- działka płaska, sucha, ogrodzona z trzech stron
- udział w prywatnej drodze dojazdowej
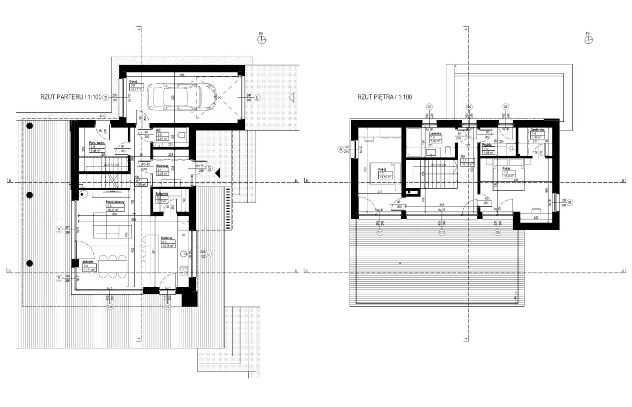
- indywidualny projekt domu ok. 140 m²
- prawomocne pozwolenie na budowę
- wykonane badania gruntu
- uzbrojona w media
- działka położona poza strefą zagrożenia powodziowego
- ok. 800 m od rzeki Świder i rezerwatu przyrody

Działka ma bardzo dobre proporcje pod dom jednorodzinny. Na terenie rośnie kilka brzóz, które nadają jej naturalny charakter. Dużym atutem lokalizacji jest bliskość rzeki Świder, rezerwatu przyrody oraz terenów rekreacyjnych, w tym plaż, ścieżek spacerowych i tras na spływy kajakowe. Jednocześnie działka znajduje się poza strefą zagrożenia powodziowego, a grunt został wcześniej sprawdzony.

Co kupujesz:
- działkę budowlaną 1310 m²,
- indywidualny projekt domu jednorodzinnego o powierzchni - ok. 140 m²,
- prawomocne pozwolenie na budowę,
- wykonane badania gruntu,
- udział w prywatnej drodze dojazdowej.

Projekt domu:
- nowoczesna bryła z dużymi przeszkleniami i płaskim dachem,
- garaż,
- kominek rekreacyjny w salonie,
- projekt przygotowany z myślą o racjonalnym koszcie - budowy i późniejszej taniej eksploatacji, bez rezygnacji z nowoczesnej estetyki i funkcjonalnego układu,
- w projekcie przewidziano możliwość realizacji domu z pompą ciepła, rekuperacją i instalacją PV.

Projekt może być dla kupującego gotowym punktem startowym i dużą oszczędnością czasu na początku całego procesu. Nie narzuca konieczności rozpoczynania wszystkiego od zera, a jednocześnie daje już przygotowaną i przemyślaną bazę do realizacji inwestycji.

Warunki zabudowy na które zostało wydane pozwolenie na budowę:
- dom jednorodzinny wolnostojący z garażem w bryle,
- zabudowa do 11,7% powierzchni działki, min. 70% powierzchni - biologicznie czynnej,
- dopuszczalna szerokość elewacji frontowej 9,7-14,5 m,
- dach płaski lub skośny 2-45 stopni
- wysokość budynku do 9 m.

Media i stan przygotowania działki:
- prąd – uzbrojenie do 8 kwietnia 2026 r. (zgodnie z umową z PGE),
- woda – przyłącze wodociągowe na działce,
- światłowód – w ulicy.

Lokalizacja i okolica:
- ok. 800 m do rzeki Świder i rezerwatu,
- szkoła podstawowa – ok. 1,5 km,
- Lewiatan i piekarnia – ok. 1 km,
- Dino – ok. 1,5 km,
- szpital w Otwocku – ok. 5 km,
- ok. 3 km do trasy S17,
- ok. 10 km do obwodnicy Warszawy,
- w sąsiedztwie nowe domy jednorodzinne.

Dojazd samochodem:
- centrum Otwocka – ok. 10 min
- Wawer – ok. 15 min
- Wilanów – ok. 20 min
- Lotnisko Chopina – ok. 30 min
- centrum Warszawy – ok. 35 min

Komunikacja miejska:
- ok. 10 minut pieszo do przystanku autobusowego,
- linia 720.

Dodatkowym atutem jest rozwijająca się infrastruktura handlowo-usługowa w okolicy. W niedużej odległości, przy głównych trasach, powstają większe obiekty handlowe, co daje wygodny dostęp do zakupów i usług, bez wpływu na kameralny charakter samej lokalizacji.

- Park Handlowy Świderek (ogłoszone sklepy: Lidl, Rossmann, Media Expert, Jysk, Pepco, CCC, Siłownia i wiele innych) – ok. 3 km,
- Centrum handlowe Góraszka (największe centrym handlowe w Polsce) – ok. 8 km.

To oferta dla osób, które szukają połączenia spokojnej lokalizacji blisko natury z wygodnym dojazdem do Warszawy, a jednocześnie chcą kupić działkę z już wykonanym etapem przygotowania inwestycji.

Zdjęcia wizualizacji domu mają charakter poglądowy i zostały przygotowane na podstawie projektu budowlanego.

Szczegóły projektu, rzuty, projekt zagospodarowania działki oraz podstawowe informacje formalne chętnie prześlę zainteresowanym osobom mailowo. Mogę też dosłać więcej zdjęć działki i dokumentów do wglądu. Zachęcam też do odwiedzenia działki osobiście - działka położona jest w miejscu pineski na mapie.

Oferta prywatna, bez pośredników i dodatkowych prowizji.

Agencje proszę o kontakt wyłącznie z konkretnie zainteresowanym klientem.

  • ul. Sympatyczna, Kopki, gmina Wiązowna, powiat otwocki  
  • Na sprzedaż działka budowlana o powierzchni 1 310 m²  
  • Plan w serwisie geoportal.gov.pl Otwórz plan
  • Numer ewidencyjny działki 6/26
  • Wymiary Długość: 49 m, szerokość: 27 m
  • Dojazd utwardzony
  • Ogrodzenie siatka
  • Media woda, prąd
  • Cena do negocjacji  
  • Oferta bezpośrednio od właściciela dodana ponad miesiąc temu i zaktualizowana przedwczoraj
Ta nieruchomość może być Twoja od.. sprawdź
78000 zł (20%) Okres spłaty: 30 lat

Podobne działki na sprzedaż

12
Działka budowlana Kruszówiec

439 000

3800

Wyjątkowo zadbana działka z domkiem letniskowym – 3 800 m² zieleni, cisza, las, szybki dojazd do Warszawy (S17) Na sprzedaż atrakcyjna, w pełni zagospodarowana działka o łącznej powierzchni ok. 3 800 m², zabudowana domkiem letniskowym o pow. ok. 85 m². Nieruchomość tworzy unikatową, dojrzałą przestr...

Zobacz ogłoszenie
1
Działka budowlana Lipowo, ul. Wypoczynkowa

zapytaj

2000

Działka położona w sąsiedztwie Mazowieckiego Parku Krajobrazowego. z aktualnymi warunkami zabudowy. Mozna podzielić na 2 mniejsze. Niedaleko rzeka Świder. Samochodem pół godz. do Lotniska Chopina Działka zadbana, niezalesiona

Zobacz ogłoszenie
8
Działka budowlana Żanęcin, ul. Prosta

438 800

2194

Doskonała działka budowlana w Żanęcinie Marzysz o własnym domu z dala od zgiełku miasta, a jednocześnie blisko jego serca? Ta działka budowlana, położona w malowniczym Żanęcinie, w gminie Wiązowna spełnia te kryteria. **Parametry:** Przeznaczenie: Zabudowa jednorodzinna - stwórz własną przestrzeń we...

Zobacz ogłoszenie
5
Działka budowlana Lipowo, ul. Letniskowa

500 000

2854

Działka (nr 282/2) położona w bardzo malowniczym i cichym miejscu. Zaledwie 30 km od Warszawy i zaledwie 6 km od trasy S17. W sąsiedztwie domki jednorodzinne. W pobliżu lasy i rzeka Świder. Działka zawiera także udział w drogach dojazdowych. Do działki doprowadzony jest prąd, blisko hydrant wodociąg...

Zobacz ogłoszenie
1
Działka budowlana Rudka, ul. Biesiadna

zapytaj

3077

Działka z warunkami zabudowy. Prąd i woda w drodze. Działka częściowo zalesiona. Cicha spokojna okolica. Zapraszam do kontaktu.

Zobacz ogłoszenie
1
Działka budowlana Glinianka, ul. Marzeń

450 000

3340

Działka o powierzchni 3342 m2, atrakcyjnie położona. Cicha spokojna okolica otoczoną lasami i łąkami. W sąsiedztwie zabudowa domów jednorodzinnych. Dojazd drogą utwardzoną ok. 350 m. Nieruchomość aktualnie zadrzewiona. Warunki zabudowy. Wymiary działki od frontu 34 x 99 a z tyłu 32 x 110. Działkę mo...

Zobacz ogłoszenie