Piła Podlasie-Przedmieście
ul. Henryka Wieniawskiego
działka budowlana na sprzedaż Bez pośrednika

Działka budowlana Piła Podlasie-Przedmieście, ul. Henryka Wieniawskiego
Cena
1 250 000
Powierzchnia
2749 m²
Cena za m²
455
Piła Podlasie-Przedmieście · 1 250 000 zł

Ogłoszenie właściciela - bez pośredników

Działka budowlana Piła Podlasie-Przedmieście, ul. Henryka Wieniawskiego. Zdjęcie 1
Działka budowlana Piła Podlasie-Przedmieście, ul. Henryka Wieniawskiego. Zdjęcie 1

Bez pośrednika. Oszczędzasz 37 500 zł na prowizji pośrednika!

OFERTA SPRZEDAŻY
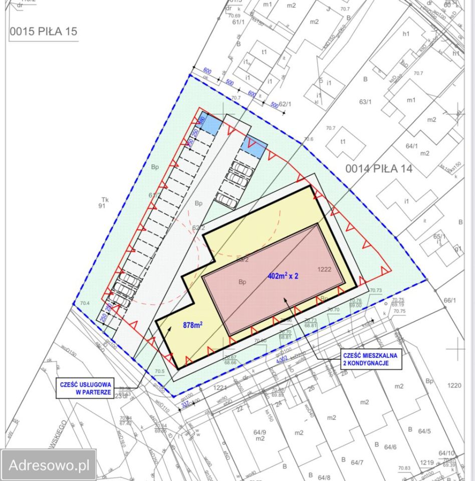
KOMPLEKS 4 DZIAŁEK BUDOWLANYCH W PILE

Lokalizacja: Piła, ul. Wieniawskiego (Podlasie)
Nr działek: 61/2, 62/2, 63/2, 1222 (obręb 0014)
Powierzchnia łączna: 2749 m2

Status własnościowy: Pełne prawo własności
Nr MPZP: Uchwała nr XXIV/227/2000
Dostęp do drogi publicznej: Jest (bezpośredni)
Obciążenia: Brak
Uzbrojenie: Pełne
Warunki gruntowe (z uwzględnieniem budowy garażu podziemnego): Proste

Przeznaczenie w MPZP: Tereny usług z dopuszczeniem funkcji mieszkaniowej.

Wstępnie ustalony sposób zagospodarowania (po konsultacjach z Wydziałem Architektury i Budownictwa Starostwa Powiatowego w Pile): cztero-kondygnacyjny budynek wielorodzinny z usługami w parterze i garażem podziemnym:
- powierzchnia usług (po obrysie ścian zewnętrznych): około 878 m2
- powierzchnia mieszkalna (po obrysie ścian zewnętrznych): około 402 m2 na kondygnację, łącznie pow. mieszk. 804 m2
- miejsca parkingowe: zapewnione na terenie nieruchomości i w garażu podziemnym

Faktura VAT

  • ul. Henryka Wieniawskiego, Piła Podlasie-Przedmieście, powiat pilski
  • Na sprzedaż działka budowlana o powierzchni 2749 m².
  • Dojazd: asfalt, ogrodzenie: bez ogrodzenia
  • Media: woda, kanalizacja, prąd, gaz
  • Oferta dodana bezpośrednio przez właściciela ponad tydzień temu
Wróć
Największa baza ogłoszeń bez pośredników
Zarejestruj się, aby przejść dalej
lub

Kontynuując akceptujesz
Regulamin i Politykę prywatności

Masz już konto na adresowo.pl?
Zaloguj się

Mamy dla Ciebie kredyt hipoteczny z niską ratą! Chcesz poznać szczegóły?

Kontakt z VeloBank:
- ofertę, wniosek i decyzję o przyznaniu kredytu w procesie online,
- wsparcie eksperta hipotecznego na każdym kroku,
- kredyt do 90% wartości nieruchomości.





Wyrażam zgodę na przetwarzanie moich danych osobowych zawartych w formularzu na stronie adresowo.pl przez VeloBank S.A. z siedzibą w Warszawie przy Rondo Ignacego Daszyńskiego 2C (Bank), a tym samym na ich przetwarzanie, w tym profilowanie, przez Bank w celu marketingu produktów i usług Banku za pośrednictwem rozmowy telefonicznej i sms. Zgoda może być w każdej chwili wycofana. Cofnięcie zgody nie ma wpływu na zgodność z prawem przetwarzania danych przed jej wycofaniem.