Działka na sprzedaż
ul. Bobrowiecka Bobrowiec

Działka budowlana Bobrowiec, ul. Bobrowiecka. Zdjęcie 1
Działka budowlana Bobrowiec, ul. Bobrowiecka. Zdjęcie 2
Działka budowlana Bobrowiec, ul. Bobrowiecka. Zdjęcie 3
Działka budowlana Bobrowiec, ul. Bobrowiecka. Zdjęcie 4
Działka budowlana Bobrowiec, ul. Bobrowiecka. Zdjęcie 5
Działka budowlana Bobrowiec, ul. Bobrowiecka. Zdjęcie 6
Działka budowlana Bobrowiec, ul. Bobrowiecka. Zdjęcie 7
Działka budowlana Bobrowiec, ul. Bobrowiecka. Zdjęcie 8

Działka na sprzedaż Bobrowiec ul. Bobrowiecka

3 200 000
276 zł/m²
11 600
Bobrowiec, Bobrowiecka - lokalizacja przybliżona

Właściciel powierzył sprzedaż nieruchomości pośrednikowi. Możesz zadzwonić lub napisać do agenta za darmo.

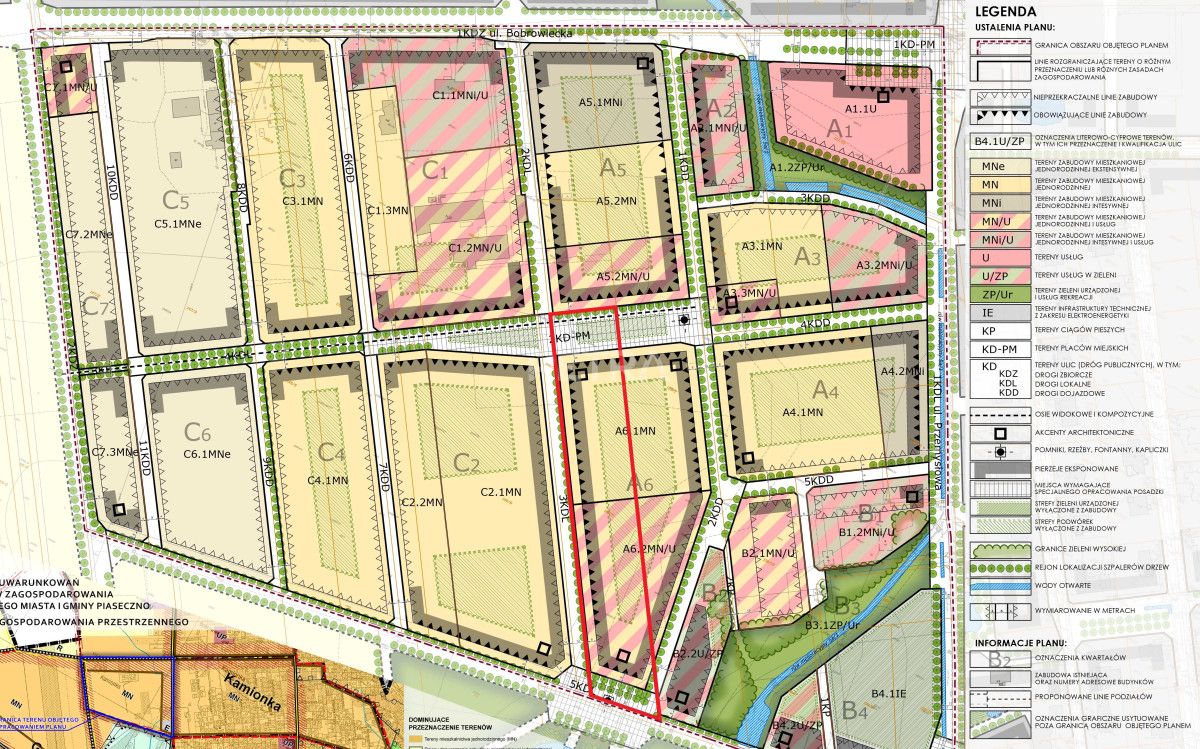
Do sprzedania działka dla inwestora pod zabudowę jednorodzinną i bliźniaczą znajdująca  się w Kamionce obok Bobrowca. Działka w kształcie zbliżonym do  prostokąta o wymiarach: szerokość 44,3m, długość  252 do 272 m.
Dojazd do działki od ulicy Bobrowieckiej realizowany jest drogą prywatną o szerokości 7,5 m (w MPZP poszerzenie do 12 m)
W ulicy Bobrowieckiej znajduje się  kanalizacja i woda, czyli w odległości ok. 180 m, a gaz nawet bliżej bo około 80 m.
Gmina Piaseczno jest w trakcie opracowywania Miejscowego Planu Zagospodarowania Przestrzennego. W tej chwili zakończono konsultacje z właścicielami gruntów.
Wg założeń  nowego MPZP:
1. Minimalna powierzchnia działki 550m2 pod połówkę bliźniaka, w którym mogą być 2 lokale mieszkalne. (możliwośc wybudowania tzw. "czworaków")
2. Maksymalna wysokość zabudowy do 10,5 m (2 kondygnacje).
3. Minimalna powierzchnia biologicznie czynna - 50%
4. Maksymalna powierzchnia zabudowy 45%
Część działki od strony północnej zostanie przesnaczona na zielony  skwer.
Po odjęciu powierzchni przeznaczonych na drogę i skwer pozostanie areał pozwalający  na wybudowanie ok. 28  segmentów - lokali mieszkalnych.
Gmina Piaseczno w trybie pilnym przygotowuje projekt wybudowania ulicy Boborwieckiej jako łącznika do wjazdu na trasę S7 w Antoninowie.  Po realizacji tej inwestycji dojazd do tego węzła zajmie tylko 4-5 minut (3,5 km).
Do centrum Piaseczna - 7 km. Do PKP Piaseczno -  4,5 km (10 minut autem)
Niedaleko (ok. 500 m) jest przystanek autobusu  L-5, którym w kilkanaście minut  dojedziemy do PKP  oraz centrum Piaseczna.
Do Szkoły Podstawowej nr 3 w Piasecznie, przy ul. Gółwnej  50 - zaledwie  900 m.
W odległości ok. 500 m małe centrum handlowo-usługowe z Biedronką.

  • ul. Bobrowiecka, Bobrowiec, gmina Piaseczno, powiat piaseczyński  
  • Na sprzedaż działka budowlana o powierzchni 1,16 ha (11 600 m²)  
  • Wymiary Długość: 262 m, szerokość: 44 m
  • Dojazd polny
  • Ogłoszenie biura nieruchomości  
  • Oferta dodana ponad tydzień temu
Ta nieruchomość może być Twoja od.. sprawdź
640000 zł (20%) Okres spłaty: 30 lat

Podobne działki na sprzedaż

2
Działka budowlana Jesówka

2 500 000

8700

Sprzedam działkę budowlaną w miejscowości Jesówka 3 km od centrum Piaseczna Powierzchnia 8700 Działka dobra pod zabudowę jednorodzinną Tel

Zobacz ogłoszenie
1
Działka budowlana Uwieliny, ul. Dębowa

2 947 923

2,98 ha

Kompleks 21 działek budowlanych 3ha Uwieliny (gm. Prażmów) z MPZP! Pod osiedle! Lokalizacja: Uwieliny, gmina Prażmów, powiat piaseczyński Powierzchnia łączna działek: 29 777m² Ilość działek: 21 działek budowlanych + 2 działki stanowiące drogi dojazdowe Przeznaczenie: Zabudowa jednorodzinna, bliź...

Zobacz ogłoszenie
3
Działka budowlana Szczaki, ul. Kacza

4 050 000

1,35 ha

Sprzedam działkę budowlaną o powierzchni 13500 m². Działka ma wymiary 25x540 m i utwardzony dojazd. Znajduje się w spokojnej wsi, co zapewnia komfort i prywatność. Teren idealny dla dewelopera, ale istnieje również możliwość zakupu pojedynczych działek. Teren jest wstępnie podzielony, co widać na m...

Zobacz ogłoszenie
7
Działka budowlana Henryków-Urocze

2 789 440

8717

Do sprzedania atrakcyjna działka budowlana w kształcie prostokąta. Szerokość od ulicy 44 metry, w najwęższym miejscu 35 metrów. Media w drodze - prąd, woda, gaz. Kanalizacja będzie budowana w 2027 roku. Zgodnie z miejscowym planem zagospodarowania przestrzennego nieruchomość jest położona na t...

Zobacz ogłoszenie
2
Działka budowlana Świętochów

4 187 500

3,35 ha

Na sprzedaż wyjątkowy teren o łącznej powierzchni 3,35 ha w miejscowości Świętochów (gmina Tarczyn, powiat piaseczyński). Idealna okazja inwestycyjna dla dewelopera lub osoby planującej etapową sprzedaż podzielonych działek budowlanych. Teren idealny pod kameralne osiedle domów jednorodzinnych, poz...

Zobacz ogłoszenie
4
Działka budowlana Chylice

2 990 000

4500

Bardzo ładna działka zabudowana domem z lat 80-tych o powierzchni ok. 360m2. Teren położony wśród zabudowy jednorodzinnej , działka z drzewostanem . Treść niniejszego ogłoszenia nie stanowi oferty handlowej w rozumieniu Kodeksu Cywilnego.

Zobacz ogłoszenie