Działka na sprzedaż bez pośredników
Sosnówka  

Działka budowlana Sosnówka. Zdjęcie 1

Działka na sprzedaż bez pośredników Sosnówka

163 400
100 zł/m²
1 634
Sosnówka - lokalizacja przybliżona
Bezpośrednio od właściciela

Jeśli nie potrzebujesz pośrednika, zaoszczędzisz około 4 900 zł. Potrzebujesz wsparcia? Skorzystaj z pomocy agenta.

Witam.
Przedstawiam ofertę atrakcyjnych działek budowlanych znajdujących się pod samym lasem w spokojnej miejscowości Sosnówka. Bliska odległość do miasta - 3 km do Niemodlina, około 20 km do Opola. W sąsiedztwie znajdują się zabudowy mieszkaniowe. Dojazd do działki drogą szutrową , utwardzoną - woda i prąd w tej drodze ( działka nr 81/3). Nieruchomości gruntowe posiadają warunki zabudowy. Udział w drodze dojazdowej do działek GRATIS !!!

Cena 10 000,00 zł/ar- do niewielkiej negocjacji !
tel. [numer]

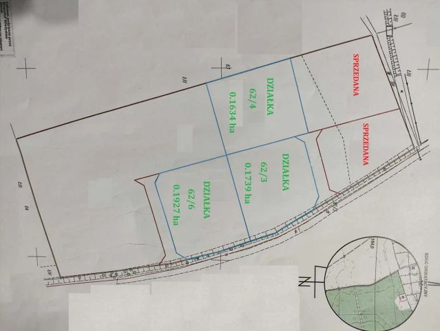
Mam na sprzedaż 3 działki:
1 działka 16,34 ara = 163400 zł
2 działka 17,39 ara = 173900 zł
3 działka 19,27 ara = 192700 zł

  • Sosnówka, gmina Niemodlin, powiat opolski  
  • Na sprzedaż działka budowlana o powierzchni 1 634 m²  
  • Numer ewidencyjny działki 62/3
  • Dojazd utwardzony
  • Media woda
  • Oferta bezpośrednio od właściciela dodana ponad tydzień temu
Ta nieruchomość może być Twoja od.. sprawdź
33000 zł (20%) Okres spłaty: 30 lat

Podobne działki na sprzedaż

3
Działka budowlana Niemodlin, ul. Podgórna

210 000

1403

Działka budowlana przy głównej ulicy Podgórna, blisko lasu. Cena: 210 000 zł do negocjacji. Działka 0,1403 ha za 150 zł za ar. Media: woda, prąd, kanalizacja, gaz tuż przy działce. Działka z możliwością podziału na dwie działki budowlane.

Zobacz ogłoszenie
2
Działka budowlana Lipno

162 000

1350

Sprzedam piękna działkę w miejscowości Lipno woj. opolskie. Działka posiada decyzje o warunkach zabudowy. Działka zlokalizowana jest w cichej spokojnej miejscowości Lipno gdzie powstaje nowe osiedle domków jednorodzinnych. Piękny krajobraz lasy, stawy, zieleń, park krajobrazowy. W bliskiej odległośc...

Zobacz ogłoszenie
3
Działka budowlana Niemodlin, ul. Słoneczna

160 000

838

Działka na sprzedaż Do sprzedania bardzo atrakcyjna działka budowlana o powierzchni 838 a, na nowo powstającym osiedlu domów jednorodzinnych w Niemodlinie przy ul. Słonecznej. - Narożna działka o kształcie prostokąta, uzbrojona. - Możliwość wjazdu od krótszej lub dłuższej strony. - Cicha i spokojn...

Zobacz ogłoszenie
1
Działka budowlana Grodziec

195 030

1773

Grodziec k/ Niemodlina,  Malowniczo położona miejscowość rozciągająca się na obszarze chronionego krajobrazu „Grodziec” w  bezpośrednim sąsiedztwie kompleksu przyrodniczo-leśnego Borów Niemodlińskich.  Znajdują się tu liczne rezerwaty przyrody, jak: Prądy, Złote Bagna, Jeleni Dwór, Blok czy Jaśk...

Zobacz ogłoszenie
1
Działka budowlana Brzęczkowice

120 000

1890

Sprzedam dużą działkę 18,9 ara, położoną w miejscowości Brzęczkowice. Działka posiada wydane warunki zabudowy. Posiadam niezbędne dokumenty, takie jak: - zgoda z Tauron, - wodociągi, - zjazd z drogi głównej na posesję. Zainteresowanych proszę o kontakt po nr tel. Pozdrawiam.

Zobacz ogłoszenie
1
Działka budowlana Niemodlin

98 700

1410

Sprzedam działkę budowlaną w Niemodlinie. Działka znajduje się w spokojnej okolicy , dojazd z głównej drogi.

Zobacz ogłoszenie