Działka na sprzedaż bez pośredników
ul. Lubelska Jakubowice Konińskie-Kolonia

NOWA OFERTA
Działka budowlana Jakubowice Konińskie-Kolonia, ul. Lubelska. Zdjęcie 1

Działka na sprzedaż bez pośredników Jakubowice Konińskie-Kolonia ul. Lubelska

1 400 000
450 zł/m²
3 112
Jakubowice Konińskie-Kolonia, Lubelska - lokalizacja przybliżona
Bezpośrednio od właściciela

Jeśli nie potrzebujesz pośrednika, zaoszczędzisz około 42 000 zł. Potrzebujesz wsparcia? Skorzystaj z pomocy agenta.

Dzień dobry,

sprzedam działkę budowlaną w Jakubowicach Konińskich Kolonia (gm. Niemce).

Działka bezpośrednio przylega do ulicy Lubelskiej, numer ewidencyjny 279/3.
Powierzchnia: 3112 m2.
Przeznaczenie: zabudowa wolnostojąca lub bliźniacza dla całej powierzchni działki (MN).
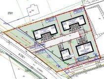
Przygotowana koncepcja zagospodarowania terenu dla zespołu budynków mieszkalnych jednorodzinnych jedno i dwulokalowych - 7 domów.
Wszystkie media w działce.

Cena: 1,4 mln PLN.

  • ul. Lubelska, Jakubowice Konińskie-Kolonia, gmina Niemce, powiat lubelski  
  • Na sprzedaż działka budowlana o powierzchni 3 112 m²  
  • Oferta bezpośrednio od właściciela dodana dodana dzisiaj
Ta nieruchomość może być Twoja od.. sprawdź
280000 zł (20%) Okres spłaty: 30 lat

Podobne działki na sprzedaż

1
Działka budowlana Kolonia Świdnik Mały

1 000 000

5600

Do sprzedania działka budowlana 56 a wszystkie media. Kolonia Świdnik Mały. Więcej informacji tefonicznie

Zobacz ogłoszenie
17
Działka budowlana Wola Niemiecka

950 000

3100

Sprzedam .działkę budowlaną z budynkami o powierzchni 31 arów położoną w Woli Niemieckiej . Jadąc od Lublina jest to pierwsza Wola Niemiecka przed miejscowością Niemce . Na działce znajdują się budynki takie jak budynek gospodarczy z częścią mieszkalną stodoła murowana , obora murowana i dom drewni...

Zobacz ogłoszenie
1
Działka budowlana Strzeszkowice Duże

1 725 000

1,15 ha

Na sprzedaż działka budowlana o powierzchni 1.15 ha, o wymiarach około 215m x 52, położona w miejscowości Strzeszkowice Duże, nieopodal drogi wojewódzkiej 848, w świetnie skomunikowanej okolicy na obrzeżach Lublina. LOKALIZACJA: - Tylko 25-30 minut jazdy samochodem do centrum Lublina, szybki dojaz...

Zobacz ogłoszenie
3
Działka budowlana Jakubowice Konińskie

960 000

3200

Działka budowlana 0.3198ha w powiecie lubelskim, gmina Niemce, obręb Jakubowice Konińskie, ul. Bohaterów Września. Działka w trakcie przekształcania w działkę usługowo-budowlaną. Bezpośrednie ogłoszenie od właściciela. Woda na działce, prąd ze słupa w odległości 30m. Dojazd drogą asfaltową. Cena do ...

Zobacz ogłoszenie
1
Działka budowlana Rudnik

1 800 000

8815

Do sprzedania działka budowlana o powierzchni 8815 metrów kwadratowych. Długość: 205 m. Szerokość: 40 m (w najwęższym miejscu 35 m). W planie zagospodarowania przewidziana budowa mieszkaniowa jednorodzinna. Przyłącze elektryczne blisko działki. Bez pośredników! Nie podpisuję umów na wyłączność z biu...

Zobacz ogłoszenie
16
Działka budowlana Jakubowice Konińskie, ul. Do Dysa

1 400 000

2521

Sprzedam działkę w Jakubowicach Konińskich pod Lublinem z prawomocnym pozwoleniem na budowę czterech domów jednorodzinnych z garażami w zabudowie bliźniaczej (dwa "bliźniaki). Informacje o działce: - dz. nr ewid.: 210/13, ul. Do Dysa (boczna ul. Lubelskiej), Jakubowice Konińskie, gmina Niemce - pow...

Zobacz ogłoszenie