Działka na sprzedaż bez pośredników
ul. Śląska Chrzanów

Działka budowlana Chrzanów, ul. Śląska. Zdjęcie 1

Działka na sprzedaż bez pośredników Chrzanów ul. Śląska

375 000
325 zł/m²
1 155
Chrzanów, Śląska - lokalizacja przybliżona
Bezpośrednio od właściciela

Jeśli nie potrzebujesz pośrednika, zaoszczędzisz około 11 300 zł. Potrzebujesz wsparcia? Skorzystaj z pomocy agenta.

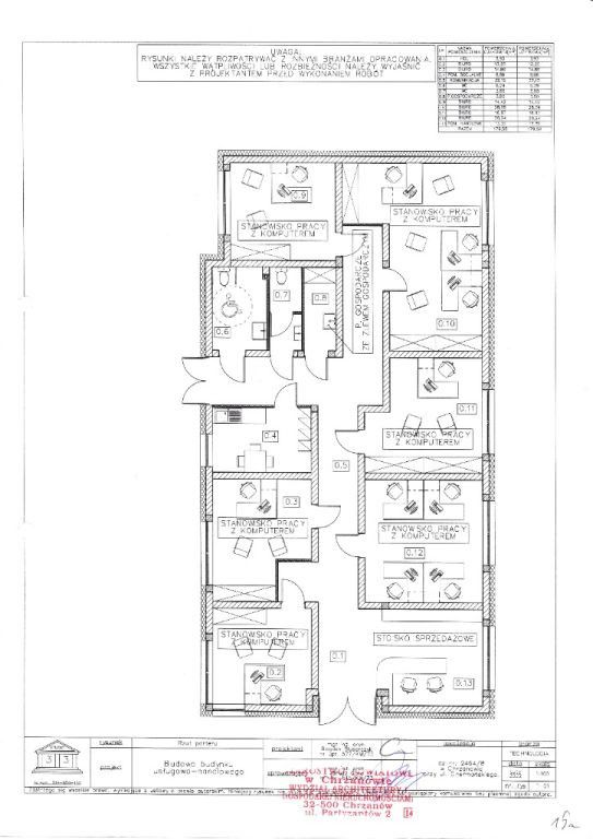
Sprzedam działkę budowlaną (dz. nr 2464/8) z gotowymi warunkami zabudowy.

Projekt dotyczy pozwolenia na budowę parterowego budynku usługowo-handlowego z ośmioma miejscami do parkowania. Powierzchnia zabudowy budynku wynosi 230m2.

Pełna dokumentacja, którą przekaże pozwoli zaoszczędzić, miesięcy trudu i problemów z urzędami i instytucjami państwowymi. Dokumenty przekazana nowemu nabywcy to miedzy innymi:

· Dziennik budowy

· Projekt zagospodarowania terenu

· Projekt architektoniczno-budowlany wraz z rozprowadzeniem mediów w budynku

· Decyzja Zatwierdzająca projekt zagospodarowania działki

· Warunkami przyłącza sieci elektrycznej

· Warunkami przyłącza sieci gazowej

· Warunki przyłącza do sieci wodociągowej i kanalizacyjnej

· Zezwolenie burmistrza miasta

Powierzchnia terenu działki wynosi – 1155m2

-Działka usytuowana jest w miejscowości Chrzanów przy ul. Śląskiej, (głowna droga prowadzącą do Jaworzna).

-Wjazd na posesje jest od drogi równoległej ul. Chełmońskiego. Jest to idealne rozwiązanie, gdyż nie trzeba od razu wyjeżdżać na główną drogę, można spokojnie wyjechać z posesji i np.: stanąć aby zamknąć za sobą bramę wjazdową.

-Działka zlokalizowana jest na obrzeżach chrzanowa, a dokładnie jest to droga prowadząca do miejscowości Jaworzno, dzięki temu mamy bardzo blisko do samego centrum Chrzanowa oraz niedaleko do Jaworzna.

-Także na ul.Śląskiej znajduje się zjazd na autostradę A4. Natomiast jeżeli ktoś nie podróżuje samochodem to tuż przy działce są przystanki autobusowe w dwóch kierunkach.

-Istnieje także możliwość przyłącza do sieci internetowej światłowodowej, gdyż w zadłuż głównej drogi ciągnie się główny przewód sieciowy.

-Działka jest częściowo ogrodzona.

-Sama działka została utwardzona kamieniem około 10lat temu, przez ten okres kamień klinowy bardzo dobrze się ubił.

-Uksztaltowanie terenu jest równe, czyste bez prowizorycznych przybudówek oraz pozbawiona wysokiej roślinności w tym drzew.

-Kąt nachylenia działki jest optymalny przez co wody opadowe będą naturalnie odprowadzane.

-Także istotną rzeczą jest to, że inwestycja znajduje się daleko od obszarów narażonych na szkody górnicze, z związku z czym budowa nie będzie wymagała dodatkowych zabezpieczeń i wzmocnień co przekłada się na koszty.

Jestem dostępny praktycznie co dziennie oraz mieszkam niedaleko działki więc telefonicznie możemy się umówić na dogodny termin spotkania i samemu będzie można obejrzeć teren wraz z całą dokumentacja.

Można także zadzwonić jeżeli są jakieś dodatkowe pytania, chętnie odpowiem.

Dla Osób które myślą poważnie o zakupie danej działki, jestem skłonny na lekkie negocjacje w cenie oczywiście w granicach rozsądku.

  • ul. Śląska, Chrzanów, powiat chrzanowski  
  • Na sprzedaż działka budowlana o powierzchni 1 155 m²  
  • Dojazd utwardzony
  • Media woda
  • Oferta bezpośrednio od właściciela dodana ponad miesiąc temu
Ta nieruchomość może być Twoja od.. sprawdź
75000 zł (20%) Okres spłaty: 30 lat

Podobne działki na sprzedaż

1
Działka budowlana Chrzanów Centrum, ul. Bartosza Głowackiego

350 000

1730

Atrakcyjna działka budowlana w centrum Chrzanowa | 1730m2 Na sprzedaż atrakcyjna działka o powierzchni 1730 m², położona w Chrzanowie przy ul. Głowackiego. Bardzo dobra lokalizacja - spokojna okolica z jednocześnie świetnym dostępem do infrastruktury i terenów rekreacyjnych. Najważniejsze informac...

Zobacz ogłoszenie
1
Działka budowlana Chrzanów, ul. Pszczelna

250 000

821

Dzień dobry. Na sprzedaż foremna działka budowlana. Wszystkie media w granicy. Orientacja na południe, gdzie rozpościera się widok na łąki i drzewa. Teren na południe od działki nie jest przeznaczony pod zabudowę. Numer działki 324/6. Bezpośrednio. Cisza i spokój. Droga wewnętrzna. Warunki zabud...

Zobacz ogłoszenie
3
Działka budowlana Płaza, ul. Juliusza Kossaka

235 000

2010

Do sprzedania działka BUDOWLANA położona w Płazie na ul. Kossaka. Działka posiada WZ dla zabudowy mieszkaniowej oraz bezpośredni dojazd utwardzoną drogą publiczną. - Powierzchnia 2010 m2 - nr działki 1529/37 (obręb Płaza). - Kształt - trapez. Przybliżone wymiary minimalne 15 m x 119 m oraz maksymal...

Zobacz ogłoszenie
7
Działka budowlana Chrzanów, ul. Śląska

397 000

1155

| Inwestycja Ready-to-Build: Chrzanów, ul. Śląska | PnB i Dziennik Budowy Szukasz bezpiecznej lokaty kapitału z możliwością natychmiastowego rozpoczęcia prac? Ta oferta eliminuje najbardziej czasochłonny etap inwestycyjny - formalności. Oferujemy na sprzedaż doskonale skomunikowaną...

Zobacz ogłoszenie
3
Działka budowlana Chrzanów Borowiec

299 000

2400

Na sprzedaż działka budowlana na Borowcu, położona przy lesie. Media w działce, dojazd z 2 stron. Osoba prywatna.

Zobacz ogłoszenie
9
Działka budowlana Płaza

320 000

3710

Oferujemy do sprzedaży działkę z WYDANYMI WARUNKAMI ZABUDOWY o pow. 3710 m2 w Płazie, ul. Podgórze. Warunki Zabudowy wydane na dwa budynki, po jednym na działkę - szczegółowych informacji udzielimy telefonicznie. OFERTA DOSTĘPNA WYŁĄCZNIE W NASZYM BIURZE Cena podlega negocjacji. ...

Zobacz ogłoszenie