Działka na sprzedaż bez pośredników
ul. Helska Białystok Zagórki

Działka budowlana Białystok Zagórki, ul. Helska. Zdjęcie 1

Działka na sprzedaż bez pośredników Białystok Zagórki ul. Helska

480 000
480 zł/m²
1 000
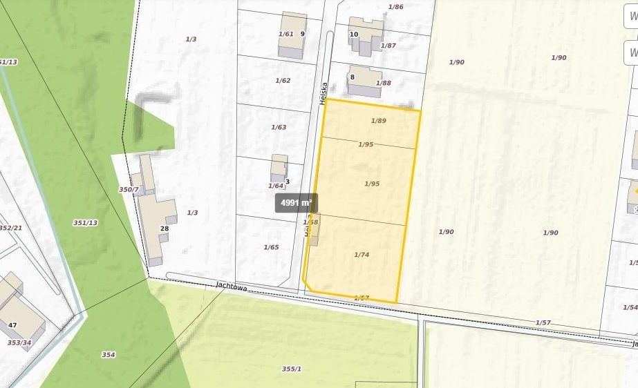
Białystok Zagórki, Helska - lokalizacja przybliżona
Bezpośrednio od właściciela

Jeśli nie potrzebujesz pośrednika, zaoszczędzisz około 14 400 zł. Potrzebujesz wsparcia? Skorzystaj z pomocy agenta.

Na sprzedaż atrakcyjne działki budowlane - ul. Helska, Białystok (osiedle Zagórki).

Dostępne działki:
• Działka nr 1/74 - ok. 2000 m² - sprzedana
• Działka nr 1/89 - ok. 1000 m²
• Działka nr 1/95 - ok. 2000 m²

Cena: 480 zł/m²

Idealne pod zabudowę jednorodzinną lub pod większą inwestycję typu szeregówki.
Kształtne działki (zbliżone do prostokąta), z dogodnym dojazdem z drogi gminnej.
Media w drodze: prąd, woda, gaz.

• Spokojna, zielona okolica z szybkim dostępem do miasta.
• W sąsiedztwie nowa zabudowa jednorodzinna.
• Blisko las i tereny zielone.
• W pobliżu sklepy spożywcze, przedszkola, szkoła podstawowa.
• Do przystanku komunikacji miejskiej - ok. 400 m.
• Do centrum Białegostoku - ok. 10-12 minut autem.
• Szybki dojazd do obwodnicy miasta.

Zapraszam do kontaktu.

  • ul. Helska, Białystok Zagórki  
  • Na sprzedaż działka budowlana o powierzchni 1 000 m²  
  • Wymiary Szerokość: 400 m
  • Dojazd utwardzony
  • Media woda, prąd, gaz
  • Oferta bezpośrednio od właściciela dodana ponad miesiąc temu i zaktualizowana ponad tydzień temu
Ta nieruchomość może być Twoja od.. sprawdź
96000 zł (20%) Okres spłaty: 30 lat

Podobne działki na sprzedaż

1
Działka budowlana Białystok, ul. Agnieszki Osieckiej

450 000

1000

Dzień dobry, Na sprzedaż działka w Białymstoku przy ulicy Agnieszki Osieckiej nr 572, widoczna na zdjęciu. Powierzchnia około 1000 m2, szerokość około 12 m. Dawno temu były wydane warunki zabudowy, ale już na pewno wygasły. Więcej informacji pod numerem telefonu.

Zobacz ogłoszenie
2
Działka budowlana Białystok Dojlidy Górne, ul. Potokowa

560 000

1627

Na sprzedaż nieruchomość gruntowa niezabudowana, zlokalizowana w dynamicznie rozwijającej się części Białegostoku, przy ulicy Potokowej w obrębie Dojlidy Górne. Działka jest w pełni objęta Miejscowym Planem Zagospodarowania Przestrzennego, co znacząco usprawnia proces inwestycyjny. PODSTAWOWE INFOR...

Zobacz ogłoszenie
6
Działka budowlana Białystok Dojlidy Górne, ul. Brzoskwiniowa

455 000

1242

Sprzedam działkę z pełnym uzbrojeniem pod zabudowę mieszkaniową i usługową nr działki 208/18 ul. Brzoskwiniowa os. Dojlidy Górne. Działka położona przy drodze asfaltowej po obu stronach chodniki do działki dojazd przez drogę 208/23 współwłasność ...

Zobacz ogłoszenie
2
Działka budowlana Białystok Zawady, ul. św. Krzysztofa

497 000

954

Na sprzedaż działki budowalne (wraz z udziałem w drodze) w dzielnicy Zawady przy ulicy Świętego Krzysztofa: Możliwość samodzielnego obejrzenia. Obowiązujące plany zagospodarowania: 104/33 (954m2) - REZERWACJA 104/35 (988m2) - 514,000 1.18MN,U - mieszkaniowa jednorodzinna z usługami W razie py...

Zobacz ogłoszenie
1
Działka budowlana Białystok, ul. Mikołaja Kopernika

417 900

2100

Działka nr 169, pow. 2100 m2, przy Kopernika 3A. Oferuję dwie opcje: 1. Sprzedaż - 199 zł/m2 2. Dzierżawę - 0,9 zł/m2 miesięcznie - Możliwy komis, parking, itp.

Zobacz ogłoszenie
11
Działka budowlana Białystok Dojlidy, ul. Margerytki

530 000

1325

Działki na terenie Miasta Białystok z miejscowym planem 5MNW. Do 30% zabudowy jednorodzinnej I bliźniaczej. Działka nr.18/24 o pow.1325m2- Białegostok, ul. Margerytki/ Stanisławowo/Dojlidy Przeznaczenie - budownictwo mieszkaniowe, w sąsiedztwie nowe domy, woda, prąd, gaz. Działka równa z młodymi dr...

Zobacz ogłoszenie