Dom na sprzedaż bez pośredników
Wiśniowa  

dom wolnostojący, 5 pokoi Wiśniowa. Zdjęcie 1

Dom na sprzedaż bez pośredników Wiśniowa

1 200 000
5 755 zł/m²
208
5 pok.
Wiśniowa - lokalizacja przybliżona
Bezpośrednio od właściciela

Jeśli nie potrzebujesz pośrednika, zaoszczędzisz około 36 000 zł. Potrzebujesz wsparcia? Skorzystaj z pomocy agenta.

W zacisznym miejscu położony dom wolnostojący na działce 23 ary z widokiem na staw i wśród zieleni + Dodatkowo w cenie 2 działki budowlane o powierzchni 14,02 i 13.33 z wydzieloną drogą

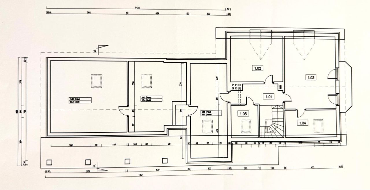
Powierzchnia całkowita domu to 208,52m2, w tym pomieszczenia przynależne - dwa garaże oraz kotłownia o łącznej powierzchni 56,54m2 oraz dom dwukondygnacyjny o powierzchni 151,98m2.
Na parterze ulokowany salon, jadalnia, kuchnia, pomieszczenie gospodarcze, łazienka, pokój oraz hol. Na górze trzy pokoje ( w tym jeden z dużą garderobą ), łazienka i hol.
Poddasze ocieplone, nieużytkowe.

Dom zamieszkany od 2006 roku, po zakończonej jego budowie. Wybudowany z suporexu; nad dachu dachówka Braas betonowa; ocieplenie 10 cm styropian. Okna piękne, drewniane. Na podłodze na parterze ozdobna terakota - ogrzewanie podłogowe ( na piętrze kaloryfery ).
Ogrzewanie piecem na pellet i drewno, dodatkowo w salonie wybudowany jest kominek z marmuru i piaskowca z płaszczem wodnym rozprowadzonym na cały dom.
Ciepła woda z bojlera elektrycznego podłączonego do pieca o pojemności 200 litrów. Jest też drugi bojler o pojemności 80 litrów, używany w okresie letnim.
W miejscowości brak gazu oraz kanalizacji (zamontowana ekologiczna oczyszczalnia).

Całość ogrodzona.

Warto zobaczyć bo zdjęcia nie oddają tego uroku!


DZIĘKUJĘ BIUROM NIERUCHOMOŚCI PROSZĘ NEI DZWONIĆ OGŁOSZENIE PRYWATNE

  • Wiśniowa, gmina Świdnica, powiat świdnicki  
  • Na sprzedaż dom wolnostojący o powierzchni 208,52 m², 5 pokoi wybudowany w 2006 roku
  • Sizing Streamline Icon: https://streamlinehq.com
    Działka 2 300 m²  
  • Budynek z poddaszem, w stanie do zamieszkania, z osobną kuchnią  
  • Balkon, bez piwnicy, garaż na 2 samochody  
  • Materiał budowy silikat
  • Dach dachówka
  • Okna drewniane
  • Dojazd utwardzony
  • Ogrodzenie siatka
  • Media woda, oczyszczalnia przydomowa, prąd, gaz nieprzyłączony
  • Cena do negocjacji  
  • Oferta bezpośrednio od właściciela dodana ponad miesiąc temu i zaktualizowana ponad tydzień temu
Ta nieruchomość może być Twoja od.. sprawdź
240000 zł (20%) Okres spłaty: 30 lat

Podobne domy na sprzedaż

8
dom wolnostojący Stanowice

1 150 000

172

Na sprzedaż wolnostojący, komfortowy dom jednorodzinny z garażem, położony we wsi Stanowice koło Strzegomia - z dala od miejskiego zgiełku, a jednocześnie na tyle blisko miasta, by codzienne funkcjonowanie było wygodne i komfortowe. Idealna lokalizacja: - Strzegom - 5 km - Świdnica - 10 km - Wałbrz...

Zobacz ogłoszenie
12
dom wolnostojący, 5 pokoi Tworzyjanów

1 200 000

162

5 pok.

Zapraszam do zapoznania się z ofertą sprzedaży domu jednorodzinnego w miejscowości Tworzyjanów, gmina Marcinowice. Oferta na wyłączność!!! Nie znajdziecie jej państwo w innym biurze nieruchomości. Dom z 2011 roku posadowiony na działce o powierzchni 22 arów w bocznej uliczce z luźną zabudową domkó...

Zobacz ogłoszenie
4
dom wolnostojący Burkatów

850 000

230

Witam. Sprzedam dom z garażami na działce 7 ar i 10 arów. Przy domie wiata garażowa.

Zobacz ogłoszenie
12
dom wolnostojący, 5 pokoi Komorów

1 350 000

150

5 pok.

Sprzedam dom umeblowany wolnostojacy o pow 150m2 +20m2 garaz, stojacy na dzialce 7ar Dzialka ogrodzona, brama wiazdowa elektryczna na pilota oraz brama garazowa na pilota, garaz w bryle budynku Rolety antywlamaniowe Wideodomofon Dom posiada ogrzewanie na olej opalowy oraz w salonie kominek Na dole o...

Zobacz ogłoszenie
5
bliźniak, 4 pokoje Witoszów Dolny

975 000

154

4 pok.

Przedstawiam Państwu nową ofertę domów parterowych w zabudowie bliźniaczej w miejscowości Witoszów Dolny zaledwie 1 km od Świdnicy. Dom sprzedawany w standardzie deweloperskim - woda i kanalizacja z sieci, - ogrzewanie - pompa ciepła + ogrzewanie podłogowe, - wejście do budynku oraz podjazdy - kostk...

Zobacz ogłoszenie
8
dom wolnostojący Pszenno

1 399 000

185

Do sprzedania nowy, wykończony dom w Pszennie. Działka około 10 arów. Wysoki standard wykończenia: drzwi zewnętrzne antywłamaniowe, gotowe wykończone łazienki, podłogi drewniane - dąb, stolarka drzwiowa, pomieszczenia pomalowane, szafa serwerowa, alarm, oświetlenie zewnętrzne, sieć rozprowadzona p...

Zobacz ogłoszenie