Dom na sprzedaż bez pośredników
Wojcieszyce  

NOWA OFERTA
dom wolnostojący, 3 pokoje Wojcieszyce. Zdjęcie 1

Dom na sprzedaż bez pośredników Wojcieszyce

998 000
10 848 zł/m²
92
3 pok.
Wojcieszyce - lokalizacja przybliżona
Bezpośrednio od właściciela

Jeśli nie potrzebujesz pośrednika, zaoszczędzisz około 29 900 zł. Potrzebujesz wsparcia? Skorzystaj z pomocy agenta.

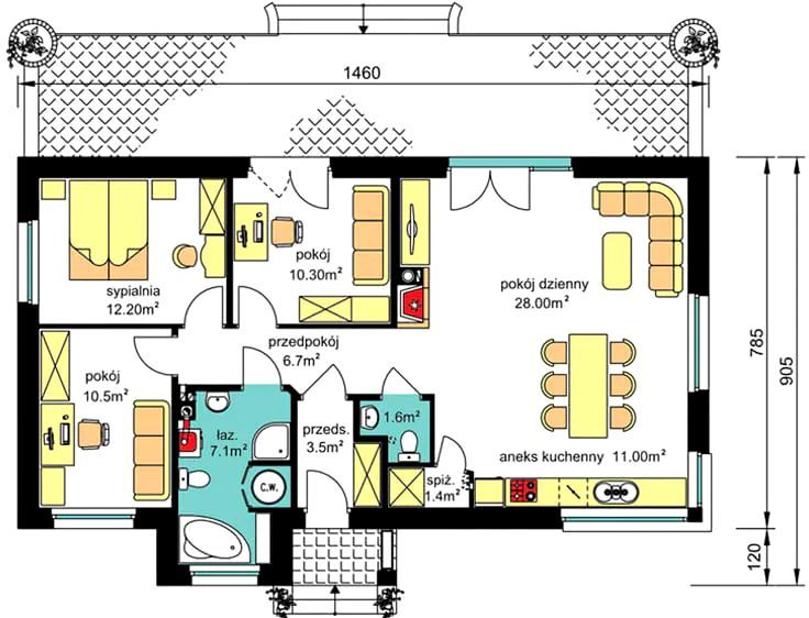
Budynek mieszkalny jednorodzinny, wolnostojący, parterowy, bez podpiwniczenia o łącznej powierzchni 92m2 z tarasem widokowym o powierzchni 61m2. Budynek składa się z pokoju dziennego, kuchni, spiżarki, łazienki, 3 sypialni. Wielkość mieszkania odpowiada potrzebom 3-4 osobowej rodziny. Dach dwuspadowy o nachyleniu połaci 35 stopni. Dla urozmaicenia prostej bryły wprowadzono facjatkę frontową z podcieniem wejściowym. Ogrzewanie budynku podłogowe. NOWA POMPA CIEPŁA PANASONIC. Budynek w technologii tradycyjnej. Ściany zewnętrzne murowane z betonu komórkowego YTONG 24 z dociepleniem zewnętrznym. Ławy fundamentowe żelbetowe wylewane. Ściany fundamentowe murowane z bloczków betonowych. Drewniana konstrukcja dachowa. Pokrycie dachu dachówka ceramiczna płaska ANGOBA. Budynek zawiera wszystkie instalacje wewnętrzne; wod.-kan, elektryczne, ogrzewanie podłogowe. Woda i kanalizacja miejska. DOM W STANIE DEWELOPERSKIM. Nieruchomość postawiona na działce o łącznej powierzchni 1100m2. Dojazd z nowej drogi miejskiej. Budynek znajduje się na prywatnym osiedlu z drogą wewnętrzną. Na frontowej granicy działki wykonano mur oporowy. Projekt spełnia wymagania Warunków technicznych od 2021r. BUDYNEK W TRAKCIE WSZYSTKICH ODBIORÓW. Zapraszam do kontaktu osoby zainteresowane.

  • Wojcieszyce, gmina Stara Kamienica, powiat karkonoski  
  • Na sprzedaż dom wolnostojący o powierzchni 92 m², 3 pokoje wybudowany w 2024 roku
  • Sizing Streamline Icon: https://streamlinehq.com
    Działka 1 100 m²  
  • Budynek w stanie do wykończenia  
  • Taras, bez piwnicy  
  • Ogrzewanie pompa ciepła
  • Materiał budowy beton komórkowy
  • Dach dachówka
  • Wyposażenie lodówka
  • Oferta bezpośrednio od właściciela dodana dodana dzisiaj
Ta nieruchomość może być Twoja od.. sprawdź
200000 zł (20%) Okres spłaty: 30 lat

Podobne domy na sprzedaż

8
dom wolnostojący, 5 pokoi Szklarska Poręba, ul. Szosa Czeska

950 000

102

5 pok.

Na sprzedaż dom jednorodzinny zlokalizowany przy ul. Szosa Czeska 1a w Szklarskiej Porębie. Znajduje się on w spokojnej i zielonej części miasta, oferując dogodny dojazd oraz szybki dostęp do centrum i atrakcji turystycznych regionu. W pobliżu znajduje się parking na Wodospad Kamieńczyk. Budynek o ...

Zobacz ogłoszenie
15
siedlisko, 6 pokoi Rybnica

1 100 000

100

6 pok.

Biuro Nieruchomości Aplauz z prezentuje wyjątkową ofertę sprzedaży - klimatyczne siedlisko położone w malowniczej Rybnicy, w otoczeniu pól i łąk, zaledwie kilka minut od Jeleniej Góry. Na działce o imponującej powierzchni 3,68 ha znajduje się dom mieszkalny z zabudowaniami gospodarczymi: stodołą, ga...

Zobacz ogłoszenie
5
dom wolnostojący, 4 pokoje Szklarska Poręba

1 100 000

80

4 pok.

Mam przyjemność zaoferować Państwu nowoczesny dom wolno stojący wybudowany w charakterystycznej sudeckiej architekturze na wolno stojącej działce w Szklarskiej Porębie. Budynek: Wolno stojący dom o powierzchni całkowitej około 80 m2, na działce około 330 / 400 m2, który posiada 3 sypialni...

Zobacz ogłoszenie
20
dom wolnostojący, 4 pokoje Wojcieszyce, ul. Rumiankowa

1 300 000

115

4 pok.

Na sprzedaż pod Szklarską Porębą (5km) z pęknym widokiem na góry (Śnieżne Kotły). Do  centrum Jeleniej Góry 10 minut jazdy samochodem. Do Uzdrowiska Cieplice z pięknymi parkami zaledwie 3 km. Dom posadowiony jest na dużej działce 16 arów  w pełni zagospodarowanej, na której znajdziemy liczne krzewy ...

Zobacz ogłoszenie
22
dom wolnostojący, 3 pokoje Szklarska Poręba

1 150 000

84

3 pok.

Dom jednorodzinny w samym sercu Szklarskiej Poręby Na sprzedaż wyjątkowa nieruchomość położona w ścisłym centrum Szklarskiej Poręby, tuż przy terenach zielonych i obszarach objętych ochroną ekologiczną. To unikatowa oferta - dom jednorodzinny o powierzchni c...

Zobacz ogłoszenie
18
dom wolnostojący, 3 pokoje Miłków Brzezie Karkonoskie, ul. Brzezie Karkonoskie

900 000

120

3 pok.

Dom składa się z 3 kondygnacji o powierzchni całkowitej ok. 120 m2 (plus garaż dwustanowiskowy). Pierwszą kondygnację stanowi poziom -1, gdzie mieści się: - przestronna łazienka wyposażona w kabinę prysznicową, wannę, bidet, WC; - kotłownia; - schowek na narty/rowery; - pralnia. Druga kondygnacja ...

Zobacz ogłoszenie