Dom na sprzedaż bez pośredników
Radwanków Szlachecki  

bliźniak, 6 pokoi Radwanków Szlachecki. Zdjęcie 1

Dom na sprzedaż bez pośredników Radwanków Szlachecki

750 000
5 515 zł/m²
136
6 pok.
Radwanków Szlachecki - lokalizacja przybliżona
Bezpośrednio od właściciela

Jeśli nie potrzebujesz pośrednika, zaoszczędzisz około 22 500 zł. Potrzebujesz wsparcia? Skorzystaj z pomocy agenta.

Ostoja Sobieńska – dom 136 m² + działka ok. 500 m² | Etap I

Ostoja Sobieńska to kameralne osiedle 8 domów w zielonej, spokojnej okolicy.

Oferujemy nowe domy w zabudowie bliźniaczej o pow. ok. 136 m² na prywatnej działce ok. 500 m² – idealny dla osób, które chcą mieszkać bliżej natury, ale wciąż w rozsądnym dojeździe do miasta.

Inwestycja w budowie – planowane oddanie pierwszych domów: kwiecień 2026 r.

Cena "od 5 990 zł/m²" dotyczy wariantu SSZ+ (opcja). Standardowo oferujemy stan deweloperski PLUS.

Inwestycja
- kameralne osiedle 8 domów – etap I
- niska, spójna zabudowa jednorodzinna
- prywatne ogrody i uporządkowana przestrzeń osiedla
- planowana realizacja kolejnych etapów w późniejszym terminie

Dom
- 136 m² powierzchni użytkowej
- działka ok. 500 m²
- funkcjonalny, rodzinny układ
- dodatkowy pokój/gabinet na parterze (zamiast garażu)
- możliwość adaptacji poddasza jako dodatkowa przestrzeń (opcja)
- nowoczesna, ponadczasowa architektura
- wygodne miejsca postojowe na działce lub przed domem

Standard sprzedaży:
Stan deweloperski PLUS (standardowy) - dom gotowy do wykończenia, bez chaosu budowy po zakupie:
- elewacja docelowa
- komplet instalacji: elektryczna, wod.-kan., CO (bez źródła ciepła)
- tynki i wylewki
- przygotowanie pod montaż kominka
- uporządkowany teren i dojazd / organizacja terenu

Opcja SSZ+ (tańsza):
rozwiązanie dla osób, które chcą wykonać instalacje i wykończenie samodzielnie

Opcje (dobierane indywidualnie)
- Pakiet TECH / CIEPŁO – ogrzewanie i uruchomienie domu (wg preferencji)
- Pakiet PODDASZE – możliwość adaptacji poddasza (+ ok. 40–50 m² po podłodze)
- Pakiet POD KLUCZ – wykończenie domu "pod klucz" wg indywidualnych ustaleń

Pakiety są opcjonalne i dopasowywane do potrzeb Kupującego.

Lokalizacja
- spokojna, zielona okolica
- niska zabudowa jednorodzinna
- dobry dojazd do Otwocka, Góry Kalwarii i Warszawy
- sklepy, szkoły i tereny rekreacyjne w pobliżu
- Idealne miejsce dla rodzin oraz osób pracujących zdalnie lub hybrydowo.

Cena od: 5.990 zł/m² (stan surowy zamknięty PLUS – opcjonalnie)
Standardowo oferowany: stan deweloperski PLUS
Liczba domów w etapie I jest ograniczona – kolejne etapy będą realizowane w późniejszym terminie.

Warunki specjalne:
Warunki specjalne dla pierwszych 2 rezerwacji w etapie I (szczegóły w rozmowie).


Sprzedaż bezpośrednia – bez agentów i pośredników.

Zadzwoń lub napisz – wyślę rzut domu + standard w PDF i umówimy spotkanie na inwestycji.

  • Oferta z rynku pierwotnego
  • Radwanków Szlachecki, gmina Sobienie-Jeziory, powiat otwocki  
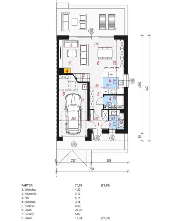
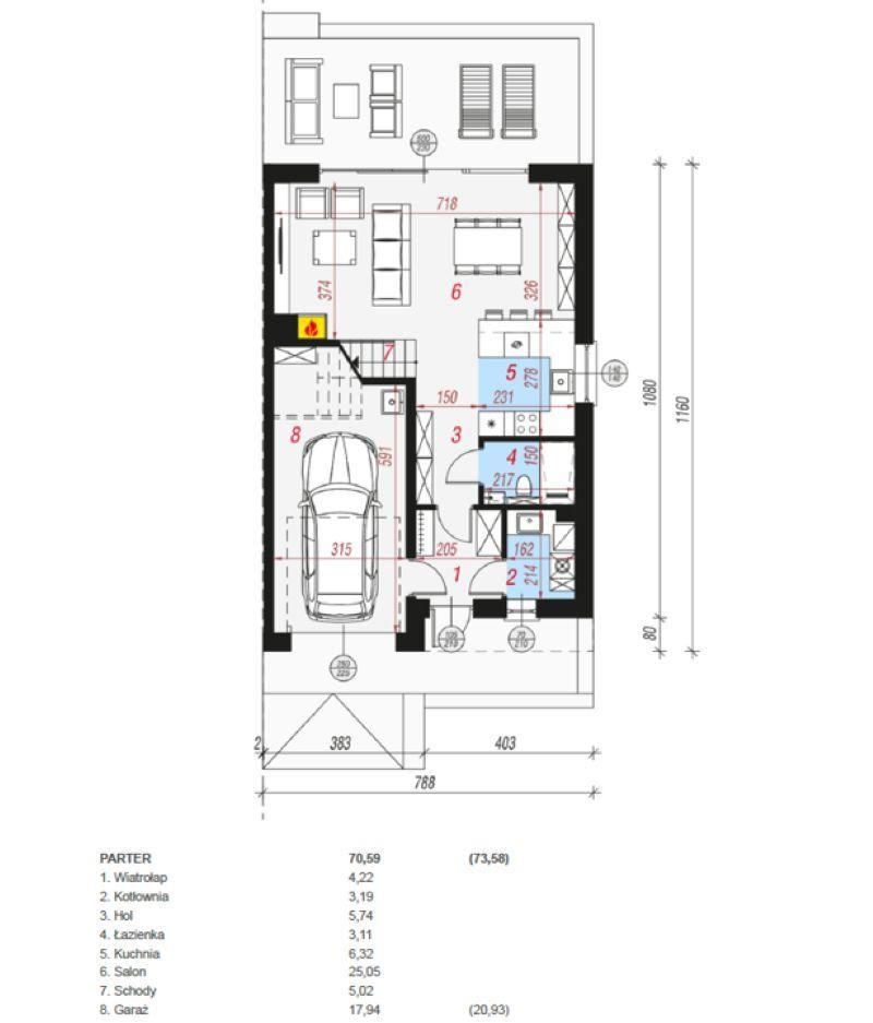
  • Na sprzedaż bliźniak o powierzchni 136 m², 6 pokoi wybudowany w 2026 roku
  • Sizing Streamline Icon: https://streamlinehq.com
    Działka 500 m², długość działki: 11 m, szerokość działki: 8 m  
  • Budynek z poddaszem użytkowym, w stanie do wykończenia, z osobną kuchnią  
  • Taras, bez piwnicy  
  • Ogrzewanie pompa ciepła
  • Materiał budowy beton komórkowy
  • Dach blachodachówka
  • Okna plastikowe
  • Dojazd utwardzony
  • Ogrodzenie metalowe
  • Media woda, oczyszczalnia przydomowa, prąd, gaz nieprzyłączony
  • Oferta bezpośrednio od właściciela dodana ponad miesiąc temu i zaktualizowana ponad tydzień temu
Ta nieruchomość może być Twoja od.. sprawdź
150000 zł (20%) Okres spłaty: 30 lat

Podobne domy na sprzedaż

28
dom szeregowy, 5 pokoi Warszawice

550 000

116

5 pok.

Nowe

Na sprzedaż są 2 środkowe segmenty w nowoczesnej i efektywnej energetycznie zabudowie szeregowej. Każdy z segmentów to: - powierzchnia użytkowa 116 m2 + poddasze do własnej aranżacji (open space) - dodatkowe 57 m2. - duży salon z wyjściem na ogród od strony południowej. - 4 pokoje na piętrze + widna...

Zobacz ogłoszenie
9
bliźniak, 6 pokoi Sobienie-Jeziory, ul. Lipowa

620 000

98

6 pok.

Zawsze chciałeś mieszkać we własnym domu? Marzysz o bezpiecznym miejscu dla Twojej rodziny? Chciałbyś mieć bliski kontakt z naturą, a jednocześnie dostęp do cywilizacji? Szkoły, przedszkola, przychodnie, piekarnie, liczne sklepiki z lokalnymi produktami prosto od producenta, a jednocześnie tylko 45 ...

Zobacz ogłoszenie
15
dom szeregowy, 5 pokoi Warszawice

550 000

172

5 pok.

Na sprzedaż są 2 środkowe segmenty w nowoczesnej i efektywnej energetycznie zabudowie szeregowej. Każdy z segmentów to: - powierzchnia użytkowa 116 m2 + poddasze do własnej - aranżacji (open space) - dodatkowe 57 m2. - duży salon z wyjściem na ogród od strony południowej - 4 pokoje na piętrze + widn...

Zobacz ogłoszenie
14
dom wolnostojący, 3 pokoje Lubice

750 000

100

3 pok.

*** Działka siedliskowa 9500m² z zabudową mieszkalną i gospodarczą *** Po wprowadzeniu planów ogólnych cała działka przeznaczona zostanie pod zabudowę mieszkaniową jednorodzinną. Na sprzedaż siedlisko położone we wsi Lubice, w gminie Kołbiel, powiat otwocki. Nieruchomość obejmuje: działkę w kszta...

Zobacz ogłoszenie
8
dom wolnostojący Radwanków Szlachecki

890 000

140

Dom w cenie mieszkania w stanie deweloperskim. Pragniesz mieć własny dom, gdzie jest przestrzeń, ogród, miejsce na odpoczynek. Chcesz mieszkać wystarczająco blisko szkoły, sklepów, środków komunikacji, a jednocześnie wolałbyś mieć ciszę, spokój i możliwość obcowania z przyrodą. Z drugiej strony, za...

Zobacz ogłoszenie
14
dom szeregowy, 5 pokoi Warszawice

620 000

172

5 pok.

Sprzedam segment zewnętrzny w domu szeregowym w miejscowości Warszawice. - powierzchnia użytkowa 116 m2 + poddasze do własnej - aranżacji (open space) - dodatkowe 57 m2. - duży salon z wyjściem na ogród od strony południowej - 4 pokoje na piętrze + widna duża łazienka - otwarta kuchnia - balkon - ga...

Zobacz ogłoszenie