Dom na sprzedaż bez pośredników
Jarosławiec  

dom wolnostojący Jarosławiec. Zdjęcie 1

Dom na sprzedaż bez pośredników Jarosławiec

520 000
4 550 zł/m²
114
Jarosławiec - lokalizacja przybliżona
Bezpośrednio od właściciela

Jeśli nie potrzebujesz pośrednika, zaoszczędzisz około 15 600 zł. Potrzebujesz wsparcia? Skorzystaj z pomocy agenta.

Do sprzedania mam dom jednorodzinny o powierzchni użytkowej 114,28 m², wybudowany w tym roku (na podstawie projektu "Konwalia") w miejscowości Jarosławiec (na osiedlu) obok Zamościa.

--- LOKALIZACJA ---

• Miejscowość: Jarosławiec (na osiedlu) obok Zamościa.
• Działka: nr 1816, powierzchnia 500 m².
• Media: woda, kanalizacja, prąd i gaz (w drodze gminnej).

--- OPIS BUDYNKU ---

Projekt: "Konwalia"
Powierzchnia użytkowa: 114,28 m²
Rok budowy: bieżący

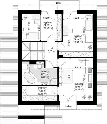
ROZKŁAD POMIESZCZEŃ:

Parter:
- kuchnia otwarta na salon,
- pokój gościnny, który może służyć jako gabinet,
- WC,
- garaż i kotłownia.

Poddasze użytkowe:
- 3 sypialnie (dwie z nich z wyjściem na wspólny balkon),
- łazienka,
- spora garderoba.

--- STANDARD WYKONANIA ---

Budynek został zbudowany z porządnych materiałów, między innymi:
- Beton B25,
- Pustak Suporex 500,
- Blachodachówka niemiecka, ocynk 275 g/m²,
- Orynnowanie stalowe,
- Okna dachowe Fakro, pakiet 3-szybowy z kołnierzem Thermo,
- Okna fasadowe 3-szybowe na profilach Brugmann-Salamander, okucia Roto,
- Drzwi zewn. 75mm firmy KMT z doświetlem bocznym i elektrozamkiem,
- Brama garażowa z napędem na pilota firmy Nice,
- I wiele innych.

--- INFORMACJE DODATKOWE ---

Zapraszam do obejrzenia nieruchomości.
Preferuję kontakt telefoniczny.
Cena do niewielkiej negocjacji.

  • Oferta z rynku pierwotnego
  • Jarosławiec, gmina Sitno, powiat zamojski  
  • Na sprzedaż dom wolnostojący o powierzchni 114,28 m² wybudowany w 2024 roku
  • Sizing Streamline Icon: https://streamlinehq.com
    Działka 500 m²  
  • Balkon, garaż  
  • Materiał budowy pustak
  • Dach blachodachówka
  • Media kanalizacja
  • Oferta bezpośrednio od właściciela dodana ponad miesiąc temu i zaktualizowana ponad tydzień temu
Ta nieruchomość może być Twoja od.. sprawdź
104000 zł (20%) Okres spłaty: 30 lat

Podobne domy na sprzedaż

8
dom wolnostojący Sitno

460 000

110

DOM 110 m² + BUDYNKI GOSPODARCZE | DZIAŁKA 0,5 HA | SITNO K. RADZYNIA PODLASKIEGO Na sprzedaż dom o powierzchni użytkowej 110 m², położony w miejscowości Sitno, zaledwie 8 km od Radzynia Podlaskiego. Nieruchomość znajduje się w spokojnej i cichej okolicy, z dobrym dojazdem drogą krajową DK 19. NAJ...

Zobacz ogłoszenie
18
dom wolnostojący, 3 pokoje Obrocz

579 000

80

3 pok.

Posiadam na sprzedaż dom, który funkcjonował w wynajemie krótkoterminowym, należący do kompleksu "Domy na Roztoczu Aleja Lipowa", cieszącego się renomą i zainteresowaniem wśród osób ceniących sobie ciszę i spokój Roztocza. Został on wybudowany w 2022 roku. Dom jest w pełni wyposażony, składa się z...

Zobacz ogłoszenie
1
dom wolnostojący Szopinek

575 000

136

Dzień dobry, mam do zaoferowania dom parterowy z użytkowym poddaszem, wybudowany na podstawie projektu "Dom w Jabłonkach 5" Archon. - Dom w stanie surowym zamkniętym. - Powierzchnia użytkowa: 136,08 m2. - W tym powierzchnia garażu: 17,57 m2. - Dom stoi na działce: 11,43 ar. - Lokalizacja: SZOPINEK ...

Zobacz ogłoszenie
13
dom wolnostojący, 5 pokoi Jarosławiec

720 000

129

5 pok.

Sprzedam dom wolnostojący jednorodzinny o powierzchni użytkowej 129,63 m2 w miejscowości Jarosławiec, około 8 km od miasta Zamość. Dom położony jest w spokojnej okolicy, w sąsiedztwie domów jednorodzinnych. Działka o powierzchni 737 m2. Na posesję prowadzi prywatna, asfaltowa droga. Dom w stanie d...

Zobacz ogłoszenie
1
gospodarstwo Krzak

579 000

100

Dom mieszkalny na sprzedaż wraz z działką i budynkami gospodarczymi. Więcej informacji przez telefon.

Zobacz ogłoszenie
5
dom wolnostojący, 4 pokoje Płoskie

490 000

138

4 pok.

Na sprzedaż dom w stanie surowym, położony bliskim sąsiedztwie Zamościa - w odległości 5 km. Powierzchnia netto domu (bez kotłowni i garażu): 100 m² Garaż: 32,15 m² Kotłownia: 6,70 m² Powierzchnia zabudowy: 138,85 m² Powierzchnia działki: 1000 m² Możliwa jest adaptacja poddasza na tym etapie budo...

Zobacz ogłoszenie