Dom na sprzedaż bez pośredników
Rzgów  

dom wolnostojący, 6 pokoi Rzgów. Zdjęcie 1

Dom na sprzedaż bez pośredników Rzgów

1 390 000
4 799 zł/m²
289
6 pok.
Rzgów - lokalizacja przybliżona
Bezpośrednio od właściciela

Jeśli nie potrzebujesz pośrednika, zaoszczędzisz około 41 700 zł. Potrzebujesz wsparcia? Skorzystaj z pomocy agenta.

Witam,

do sprzedania mam budowę domu wolnostojącego jednorodzinnego "stan surowy otwarty", z pozwoleniem na budowę oraz prowadzonym dziennikiem budowy.
Dom jest parterowy z dachem zielonym i tarasem (z możliwością zmiany funkcji i dobudowania piętra - na pozwolenie zamienne).
Dom nowoczesny z dużymi oknami, nowoczesnymi rozwiązaniami technicznymi.

Stan surowy otwarty obejmuje:
- wykonanie ław fundamentowych z betonu wodoszczelnego C25/30 W8,
- wymurowanie ścian fundamentowych z bloczków fundamentowych, pokrytych emulsją bitumiczną, ocieplonych styropianem XPS i folią kubełkową,
- ściany konstrukcyjne wykonane z pustaków ceramicznych o gr. 25 cm,
- rdzenie i wieńce wykonane z betonu klasy C25/30, zbrojone zgodnie z projektem konstrukcyjnym,
- płyta posadzkowa parteru wykonana z betonu klasy C12/15,
- stropodach i belki zbrojone zgodnie z projektem konstrukcyjnym, wykonane z betonu klasy C25/30 W8,
- wykonanie instalacji kanalizacji podposadzkowej.

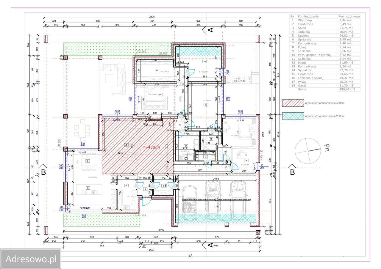
Zestawienie powierzchni:
- Powierzchnia działki - 1360 m2,
- Powierzchnia zabudowy - 344,64 m2, powierzchnia użytkowa - 289,65 m2:
- wiatrołap - 4,46 m2,
- garderoba - 5,49 m2,
- salon - 53,75 m2,
- jadalnia - 10,93 m2,
- kuchnia - 24,02 m2,
- spiżarnia - 8,98 m2,
- komunikacja - 9,40 m2,
- pokój - 9,24 m2,
- łazienka - 2,66 m2,
- pom. gospodarcze z pralnią - 8,92 m2,
- łazienka - 5,04 m2,
- pokój - 21,80 m2,
- komunikacja - 2,24 m2,
- sypialnia - 22,70 m2,
- garderoba - 13,66 m2,
- łazienka z sauną - 19,31 m2,
- pokój - 15,35 m2,
- garaż - 51,70 m2.

Do projektu budowlano-wykonawczego posiadam projekt wnętrz wraz z wizualizacjami.

Podstawowe parametry:
- wysokość pomieszczeń 3,0 m, nad salonem 4,0 m z dachem kopertowym,
- garaż trzystanowiskowy,
- tarasy na parterze w podcieniach, schody wejściowe na taras na dachu,
- pompa ciepła, ogrzewania podłogowe,
- rekuperacja,
- szambo (możliwość wykonania oczyszczalni ścieków),
- przyłącze wodociągowe z sieci,
- zasilanie z sieci elektroenergetycznej PGE.

W razie jakichkolwiek pytań, zapraszam do kontaktu.
Sprzedaż bez pośredników.
Cena do negocjacji.

  • Oferta z rynku pierwotnego
  • Rzgów, powiat łódzki wschodni  
  • Na sprzedaż dom wolnostojący o powierzchni 289,65 m², 6 pokoi wybudowany w 2025 roku
  • Sizing Streamline Icon: https://streamlinehq.com
    Działka 1 360 m²  
  • Budynek w stanie surowym otwartym  
  • Taras, garaż  
  • Ogrzewanie pompa ciepła
  • Materiał budowy pustak
  • Dojazd asfalt
  • Media woda, szambo, prąd
  • Oferta bezpośrednio od właściciela dodana ponad miesiąc temu i zaktualizowana przedwczoraj
Ta nieruchomość może być Twoja od.. sprawdź
278000 zł (20%) Okres spłaty: 30 lat

Podobne domy na sprzedaż

13
dom wolnostojący, 5 pokoi Andrespol, ul. Rokicińska

1 300 000

220

5 pok.

Na sprzedaż komfortowy, dwupiętrowy dom o powierzchni 220 m², położony na działce 708 m² w dobrze skomunikowanej części Andrespola - zaledwie 11 km od centrum Łodzi. Najważniejsze informacje: Powierzchnia domu: 220 m² Powierzchnia działki: 708 m² Garaż dwustanowiskowy Dwa niezależne wjazdy na poses...

Zobacz ogłoszenie
20
bliźniak, 6 pokoi Starowa Góra, ul. Kasztanowa

1 299 000

185

6 pok.

Witam wszystkich zainteresowanych zakupem domu w Starowej Górze na ul. Kasztanowej. Dom z 2012 r. o powierzchni użytkowej 185,29 m², całkowitej powierzchni 233,16 m², znajduje się na działce 556,00 m² (w kształcie prostokąta), na której również, na jej końcu, znajduje się zadaszona altana letnia, d...

Zobacz ogłoszenie
10
dom wolnostojący, 4 pokoje Tuszynek Majoracki, ul. Kasztelańska

1 400 000

206

4 pok.

Na sprzedaż dom w Tuszynku Majorackim, w odległości ok. 20 km od centrum Łodzi. Po zachodniej stronie budynku zlokalizowany przestronny taras, z widokiem na okoliczne łąki oraz las. Widok pozostanie niezmieniony ze względu na przeznaczenie tej części okolicy pod tereny upraw rolnych oraz użytków zie...

Zobacz ogłoszenie
3
dom wolnostojący, 4 pokoje Starowa Góra

990 000

200

4 pok.

Sprzedam dom w Starowej Górze. Dom po generalnym remoncie: - nowe okna, - nowe tynki, - wylewki, - nowe instalacje elektryczne, hydrauliczne, - ogrzewanie podłogowe w całym domu, - nowa elewacja, - dach… Dom z możliwością zrobienia w wysokim podpiwniczeniu lokalu pod gabinet, pod kosmetykę itp., l...

Zobacz ogłoszenie
21
dom wolnostojący, 6 pokoi Koluszki

1 300 000

220

6 pok.

Zapraszam do zapoznania się ofertą zakupu pięknego domu, położonego w Koluszkach. Ten jednorodzinny, wolnostojący dom oferuje niezwykłe możliwości i komfortowe warunki życia dla przyszłego właściciela! Dom został wybudowany w latach 90' XX wieku, na działce ok. 900m2 w dzielnicy domów mieszkalnych...

Zobacz ogłoszenie
42
dom wolnostojący, 12 pokoi Starowa Góra, ul. Parterowa

1 499 360

238

12 pok.

Duży dom z potencjałem i zyskiem - w pełni przygotowany pod wynajem! Na sprzedaż przestronny dom inwestycyjny położony w dobrze skomunikowanej miejscowości Starowa Góra (gm. Rzgów, pow. łódzki wschodni), usytuowany na działce o powierzchni 1500 mkw. Plus dodatkowy budynek o pow. 117 mkw. To doskona...

Zobacz ogłoszenie