Dom na sprzedaż
Budziwój Rzeszów

dom szeregowy, 4 pokoje Rzeszów Budziwój. Zdjęcie 1
dom szeregowy, 4 pokoje Rzeszów Budziwój. Zdjęcie 2
dom szeregowy, 4 pokoje Rzeszów Budziwój. Zdjęcie 3
dom szeregowy, 4 pokoje Rzeszów Budziwój. Zdjęcie 4
dom szeregowy, 4 pokoje Rzeszów Budziwój. Zdjęcie 5

Dom na sprzedaż Rzeszów Budziwój

749 000
6 375 zł/m²
117
4 pok.
Rzeszów Budziwój - lokalizacja przybliżona

Właściciel powierzył sprzedaż nieruchomości pośrednikowi. Możesz zadzwonić lub napisać do agenta za darmo.

NOWA INWESTYCJA 9 DOMÓW W ZABUDOWIE SZEREGOWEJ - Rzeszów -Budziwój

0% PROWIZJI OD KUPUJĄCEGO.

Atuty inwestycji:
- osiedle będzie ogrodzone i zamknięte rampą wjazdową na pilota
- do każdego segmentu 3 miejsca postojowe
- wysokiej klasy materiały budowlane i wykończeniowe
- energooszczędne rozwiązania
- współczesny styl bryły budynków podkreślają prostokątne wykusze ze szklanymi balustradami oraz duże przeszklenia
- bezpośredni wjazd na osiedle z drogi gminnej asfaltowej
- dogodny dojazd do centrum Rzeszowa ul. Sikorskiego lub ul. Kwiatkowskiego

STAN SUROWY ZAMKNIĘTY GOTOWY DO KOŃCA MAJA 2025r.
STAN DEWELOPERSKI GOTOWY DO KOŃCA 2025r.


W skład nowej inwestycji wchodzi 9 budynków w zabudowie szeregowej po 3 segmenty.

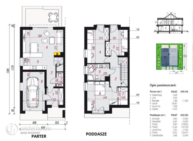
Powierzchnia użytkowa budynku wynosi 117.49m2.

Segmenty środkowe działka 1.5ar
Segmenty narożne działka 2.6ar


CENNIK:

SEGMENTY ŚRODKOWE: nr 2 i nr 8 stan deweloperski cena 749 000zł


SEGMENTY NAROŻNE: sprzedane



UKŁAD POMIESZCZEŃ:

PARTER 58.62m2:
- Wiatrołap 5.69 m2
- Hol 5.09 m2
- Toaleta 1.40 m2
- Salon 20.85 m2
- Kuchnia 7.98 m2
- Garaż 17.61 m2

PODDASZE 58.87m2:
- Schody 4.45 m2
- Korytarz 6.25 m2
- Pokój 9.84 m2
- Pokój 13.24 m2
- Łazienka 7.05 m2
- Pokój {z garderobą} 15.62 m2
- Garderoba 2.42 m2




STANDARD WYKONANIA:

STAN SUROWY ZAMKNIĘTY:

1. Ława żelbetowa

2. Ściany fundamentowe murowane z bloczka betonowego, pionowe żelbetowe rdzenie konstrukcyjne oraz wieniec konstrukcyjny żelbetowy

3. Fundamenty izolacja- dysperbit, styrodur gr10cm, folia kubełkowa, zasypane piaskiem zagęszczanym mechanicznie, izolacja pozioma

4. Ściany nośne oraz zewnętrzne z pustaków ceramicznych

5. Schody wylewane żelbetowe

6. Kominy systemowe ceramiczne

7. Murłata żelbetowa zbrojona

8. Strop nad parterem (monolityczny) wylewany żelbetowy

9. Więźba dachowa impregnowana ciśnieniowo

10. Dach kryty blachą na rąbek stojący w kolorze grafit

11. Rynny stalowe w kolorze grafit

12. Okna PCV 7-komorowe, 3 szybowe profil VEKA firmy VIDOK/Wiśniowski, kolor zewnętrzny grafit, kolor wewnętrzny biały.

13. Brama garażowa segmentowa z izolacją termiczną firmy Wiśniowski z napędem sterowana ze smartfonu w kolorze grafit

14. Drzwi zewnętrzne wejściowe stalowe, antywłamaniowe, z izolacją termiczną kolor grafit


STAN DEWELOPERSKI:

1. Instalacja elektryczna plus tablica

2. Instalacja C.O.

3. Instalacja wodno-kanalizacyjna

4. Instalacja internetowa światłowód

5. Kanalizacja deszczowa

6. Instalacja gazowa

7. Instalacja alarmowa

8. Instalacja TV

9. Instalacja podejścia pod kominek

10. Tynki wewnętrzne maszynowe gipsowe

11. Biały montaż instalacji elektrycznej tj. włączniki, gniazdka, lampy oraz oświetlenie podjazdu na czujnik ruchu na elewacji budynku

12. Wylewki maszynowe z izolacją styropianową

13. Poddasze ocieplone pianką poliuretanową z płytą karton-gips

14. Kocioł gazowy kondensacyjny dwufunkcyjny z zasobnikiem

15. Ogrzewanie podłogowe: parter i piętro (dodatkowo dwa grzejniki drabinkowe w łazienkach)

16. Ścianki działowe pustak ceramiczny

17. Ogrodzenie od strony ogródka panelowe z siatki powlekanej kolor grafit

18. Podjazd, chodniki, taras z kostki betonowej kolor grafit/szary

19. Elewacja ocieplona styropianem gr20cm+tynk kolor biały/ kość słoniowa, dodatkowo deska elewacyjna kolor piaskowy

20. Parapety z blachy powlekanej kolor grafit

21. Balustrady zewnętrzne szkło hartowane /okno balkonowe dzielone poziomo

Istnieje możliwość montażu rozkładanych schodów strychowych z obróbką wykończeniową oraz podłogi strychu z płyt OSB.

– instalacji centralnego odkurzacza
– instalacji klimatyzacji



ISTNIEJE MOŻLIWOŚĆ WYKONANIA NA ZLECENIE KLIENTA BUDYNKU "POD KLUCZ".


UWAGA ! Przy opłacie notarialnej kupujący nie płaci 2% podatku od czynności cywilnoprawnych. Deweloper wystawia fakturę VAT.


Udzielamy pomocy w uzyskaniu kredytu hipotecznego.

  • Oferta z rynku pierwotnego
  • Rzeszów Budziwój  
  • Na sprzedaż dom szeregowy o powierzchni 117,49 m², 4 pokoje wybudowany w 2026 roku
  • Sizing Streamline Icon: https://streamlinehq.com
    Działka 150 m²  
  • Budynek z poddaszem użytkowym, w stanie surowym zamkniętym  
  • Garaż  
  • Ogrzewanie gazowe
  • Materiał budowy pustak
  • Dach blacha
  • Okna plastikowe
  • Dojazd asfalt
  • Media woda, kanalizacja, prąd, gaz
  • Ogłoszenie biura nieruchomości  
  • Oferta dodana ponad tydzień temu
Ta nieruchomość może być Twoja od.. sprawdź
150000 zł (20%) Okres spłaty: 30 lat

Podobne domy na sprzedaż

3
bliźniak, 5 pokoi Rzeszów Budziwój

750 000

94

5 pok.

W ofercie biura nieruchomości Certus na sprzedaż dom w zabudowie bliźniaczej w Rzeszowie na osiedlu Budziwój, w samym centrum byłego Budziwoja. Domy o pow. ok. 94m2, posadowione na działkach ok. 6a każdy. Domy w trakcie budowy. Na powierzchnię 94m2 składa się: parter: wiatrołap, łazienka, garaż, sal...

Zobacz ogłoszenie
4
dom wolnostojący, 5 pokoi Rzeszów Budziwój, ul. Budziwojska

780 000

130

5 pok.

Sprzedaż. Dom wolnostojący projekt pracowni dobre domy "Bella" Dom funkcjonalny, duży salon, pokój gościny na parterze, na pietrze 3 pokoje, duży pokój kąpielowy. Działka 11 arów. Blisko do MPK ,

Zobacz ogłoszenie
10
dom szeregowy, 5 pokoi Rzeszów Słocina, ul. św. Marcina

739 000

142

5 pok.

Na sprzedaż nowoczesny dom jednorodzinny - Rzeszów, Słocina - Rocha. Dom zlokalizowany jest w jednej z najbardziej pożądanych i prestiżowych części Rzeszowa - na Rocha. To topowa lokalizacja łącząca spokój, dużą ilość zieleni i szybki dostęp do miasta. W bezpośrednim sąsiedztwie znajdują się rozleg...

Zobacz ogłoszenie
10
bliźniak, 4 pokoje Rzeszów Budziwój

639 000

83

4 pok.

Na sprzedaż nowoczesny dom w zabudowie bliźniaczej w spokojnej dzielnicy Rzeszowa - Budziwój. Dlaczego warto? - Cena niższa niż za mieszkanie, a zyskujesz własny dom z działką w cenie. - Brak czynszu i zero ukrytych kosztów, cena gwarantowana - nie ulegnie zmianie. - Podwyższony stan deweloperski -...

Zobacz ogłoszenie
7
bliźniak, 5 pokoi Rzeszów Budziwój, ul. Tarnopolska

550 000

111

5 pok.

Nowa inwestycja to zespół 4 budynków jednorodzinnej w zabudowie bliźniaczej na ul. Tarnopolskiej, w atrakcyjnej i dynamicznie rozwijającej się dzielnicy Budziwój w Rzeszowie, składający się z 4 nowoczesnych domów w zabudowie bliźniaczej o pow. użytkowej około 111 m2 wraz z garażem , ogródkami oraz m...

Zobacz ogłoszenie
8
dom szeregowy, 5 pokoi Rzeszów Budziwój, ul. Miejska

729 000

124

5 pok.

Dom w zabudowie szeregowej przy ulicy Miejskiej. Położony w niedalekiej odległości od ścisłego centrum Rzeszowa - dzielnica Budziwój . W okolicy znajduje się sklepy spożywcze, stacja benzynowa, siłownia , przedszkole, szkoła podstawowa, sklep Biedronka, apteka, poczta, kościół ,przystanek MPK, stawy...

Zobacz ogłoszenie