Dom na sprzedaż bez pośredników
Niedrzwica Duża  

dom wolnostojący, 5 pokoi Niedrzwica Duża. Zdjęcie 1

Dom na sprzedaż bez pośredników Niedrzwica Duża

920 000
4 600 zł/m²
200
5 pok.
Niedrzwica Duża - lokalizacja przybliżona
Bezpośrednio od właściciela

Jeśli nie potrzebujesz pośrednika, zaoszczędzisz około 27 600 zł. Potrzebujesz wsparcia? Skorzystaj z pomocy agenta.

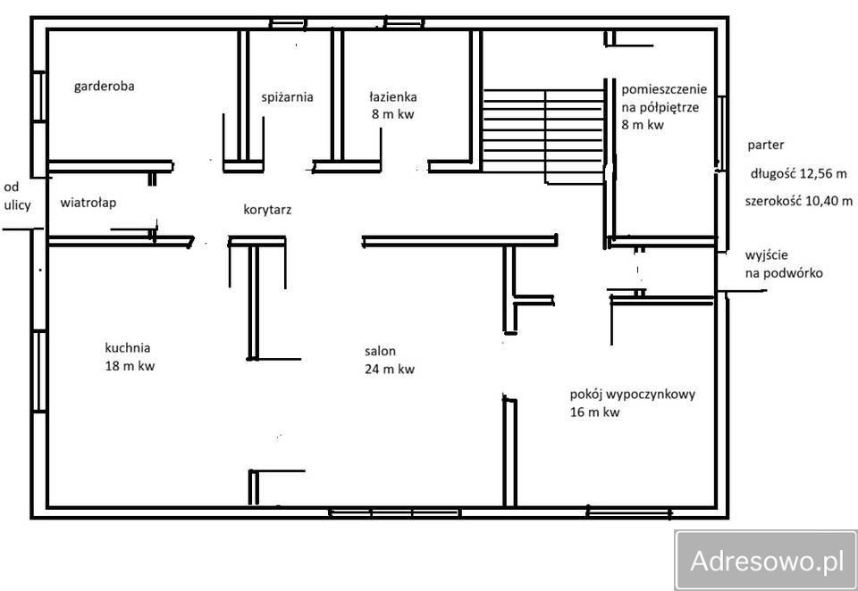
W ofercie sprzedaży dom jednorodzinny położony w Niedrzwicy Dużej.

Lokalizacja:
100 m do centrum, gdzie znajdują się: droga przelotowa Lublin - Kraśnik, kościół, centrum handlowe (sklepy spożywcze i inne), targowisko.
100 m do szkoły podstawowej.
200 m do przedszkola.
Przystanek autobusowy 100 m.

Opis domu:
Dom wybudowany w 1996 roku.
Posiada dwie kondygnacje, a górna część pomieszczeń znajduje się pod dachem.
Wymiary domu: 12,50 m x 10,30 m.
Powierzchnia całkowita: ok. 200 m kw.
Rozkład pomieszczeń:
- Obszerna kuchnia: 18,8 m kw.
- 2 łazienki
- 5 pokoi

Dodatkowe informacje:
Dom ma dwa wyjścia i może funkcjonować jako dwurodzinny.
Ogrzewanie: piec gazowy.
Woda ciepła: bojler gazowy.
Podłączenie do kanalizacji miejscowości.
Internet: światłowodowy.

Wyjścia:
Jedno wyjście jest od strony ulicy.
Drugie wyjście jest od strony ogródka (od podwórka).

Dodatkowe materiały:
Całość nieruchomości pokazują zdjęcia.
Do opisu dołączony jest plan z rozkładem pomieszczeń.

Zapraszam do obejrzenia nieruchomości. Wnętrza nie publikuję.

  • Niedrzwica Duża, powiat lubelski  
  • Na sprzedaż dom wolnostojący o powierzchni 200 m², 5 pokoi wybudowany w 1996 roku
  • Sizing Streamline Icon: https://streamlinehq.com
    Działka 700 m², wymiary działki: 12,50 m x 10,30 m  
  • Ogrzewanie gazowe
  • Media kanalizacja, gaz
  • Oferta bezpośrednio od właściciela dodana ponad tydzień temu
Ta nieruchomość może być Twoja od.. sprawdź
184000 zł (20%) Okres spłaty: 30 lat

Podobne domy na sprzedaż

8
dom wolnostojący Mętów

999 000

200

Dom 200 m², Mętów. Hale gospodarczo-warsztatowe 150 m². Na dole: - Salon połączony z kuchnią - Kominek - Łazienka (prysznic) Góra: - Łazienka z wanną whirlpool - Dwie sypialnie - Hol Działka: 18 a. Wjazd wyłożony kostką brukową. Wszystkie informacje pod numerem telefonu.

Zobacz ogłoszenie
7
dom wolnostojący Łuszczów Pierwszy

960 000

147

Dom parter z poddaszem użytkowym, 147m kwadratowych. Na parterze: - kuchnia, - salon, - sypialnią, - pomieszczenie gospodarcze, - łazienka. Na poddaszu: - trzy pokoje, - łazienka. Działka ogrodzona, własną oczyszczalnia, fotowoltaika, panele słoneczne, centralne, podłączenie gazowe, taras. Park z...

Zobacz ogłoszenie
8
bliźniak Niemce, ul. Graniczna

855 000

146

BLIŹNIAK W STANIE DEWELOPERSKIM - NIEMCE, UL. GRANICZNA LOKALIZACJA: Bliźniak w spokojnej okolicy przy ul. Graniczna w Niemcach, w stanie deweloperskim, z garażem. 5 minut od granic miasta, po drugiej stronie ulicy Ciecierzyn. Bardzo spokojna i malownicza okolica, w pobliżu szkoła, oświetlenie ulic...

Zobacz ogłoszenie
17
bliźniak, 5 pokoi Wilczopole

889 000

137

5 pok.

Na sprzedaż przestronny dom w zabudowie bliźniaczej (jeden lokal) o powierzchni całkowitej 137,5 m², zlokalizowany w Wilczopolu, tuż przy granicy Lublina, w rejonie ul. Wygodnej. To idealna propozycja dla osób poszukujących komfortowej przestrzeni do życia w spokojnej, podmiejskiej lokalizacji, a j...

Zobacz ogłoszenie
8
dom wolnostojący Załucze

800 000

200

Sprzedam dom wolnostojący, 15-letni. Wymaga jeszcze różnych drobnych prac wykończeniowych.

Zobacz ogłoszenie
16
dom wolnostojący, 4 pokoje Radawczyk-Kolonia Pierwsza

1 249 323

132

4 pok.

Oferujemy na sprzedaż nowoczesny, komfortowy dom parterowy zlokalizowany w spokojnej okolicy, zaledwie 15 km od Lublina! Dom ma czytelny podział na dwie strefy: - dzienną (wspólną) – przestrzeń do życia i spotkań - nocną (prywatną) – pokoje i łazienki Dzięki temu zachowany jest komfort i...

Zobacz ogłoszenie