Dom na sprzedaż bez pośredników
ul. Skalna Mikołów Reta Śmiłowicka

NOWA OFERTA
bliźniak Mikołów Reta Śmiłowicka, ul. Skalna. Zdjęcie 1

Dom na sprzedaż bez pośredników Mikołów Reta Śmiłowicka ul. Skalna

650 000
2 826 zł/m²
230
Mikołów Reta Śmiłowicka, Skalna - lokalizacja przybliżona
Bezpośrednio od właściciela

Jeśli nie potrzebujesz pośrednika, zaoszczędzisz około 19 500 zł. Potrzebujesz wsparcia? Skorzystaj z pomocy agenta.

Budynek piętrowy w zabudowie bliźniaczej, częściowo podpiwniczony wybudowany w latach 70tych, rozbudowany po 2007 roku. Część rozbudowana, niedokończona w stanie surowym otwartym. Część stara wymaga remontu.
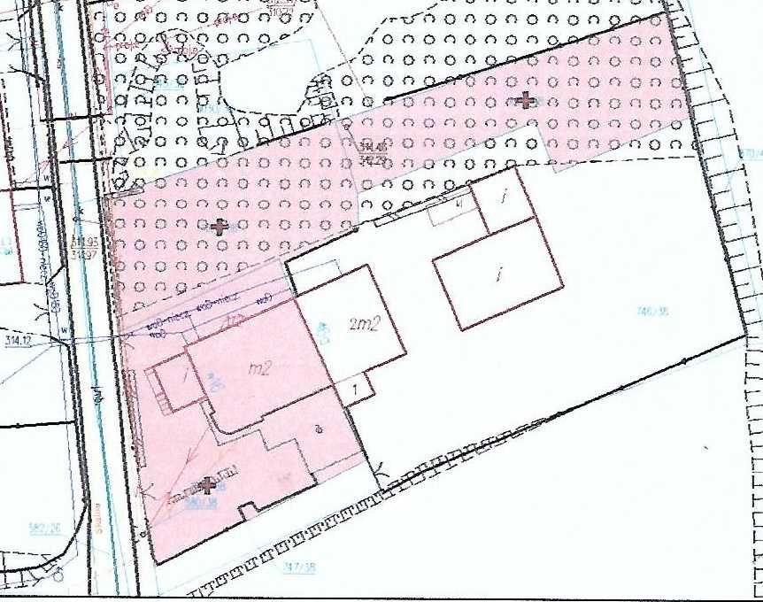
Działka 1007m2 -na mapce zaznaczona kolorem

*Możliwe kupno drugiej części bliźniaka z działką o powierzchni ok 1000m2

Nieruchomość położona jest w północno-zachodniej części miasta Mikołów, w obrębie dzielnicy Reta w Mikołowie, przy ul. Skalnej 16.
W bezpośrednim sąsiedztwie znajdują się inne zabudowania jednorodzinne i wielorodzinne oraz obiekty usługowe o skali lokalnej. Nieruchomość położona jest w dobrej odległości od głównych ciągów komunikacyjnych – oddalona jest około 0,5 km od skrzyżowania drogi krajowej DK 81 (Katowice – Wisła), z drogą przelotową prowadzącą z jednej strony w kierunku Gliwic, z drugiej w kierunku centrum Mikołowa.
Dostęp do podstawowej infrastruktury społeczno-usługowej - w sąsiadujących budynkach wielorodzinnych, mieści się przedszkole, oraz szkoła podstawowa dla uczniów klas I-III, filia Biblioteki Miejskiej oraz sklep spożywczo-przemysłowy.
W promieniu 1,50 km od nieruchomości usytuowana jest szkoła podstawowa, szpital, sklepy, kościół, Centrum Handlowe Auchan z galerią zewnętrzną, centrum budowlano-dekoracyjne Leroy Merlin, sklep sieci Decathlon, Biedronka, Rossmann. W odległości 3,0 km od nieruchomości znajdują się obiekty infrastruktury administracyjnej i edukacyjnej oraz handlowo-usługowej miasta (centrum Mikołowa - rynek).
Dojazd do nieruchomości -do nieruchomości można dojechać zarówno od strony centrum miasta, jak i od strony Gliwic, Katowic i Tychów, jadąc drogami głównymi i osiedlowymi.
Bezpośrednie otoczenie nieruchomości stanowią działki z zabudową jednorodzinną oraz działki niezabudowane, porośnięte zielenią. Najbliższe sąsiedztwo stanowi zabudowa jednorodzinna oraz od strony południowej teren z zabudową wielorodzinną wraz z towarzyszącą infrastrukturą (plac zabaw, boisko „Orlik’- około 200 m od nieruchomości).
Dalsze otoczenie nieruchomości to tereny niezabudowane uprawiane rolniczo oraz nowa i starsza zabudowa jednorodzinna i wielorodzinna.
Nieruchomość posiada bezpośredni dostęp do drogi publicznej –ul. Skalnej oraz poprzez udział w drodze wewnętrznej dojazdowej .

Dostępność do środków komunikacji zbiorowej –w odległości około 100 m od nieruchomości, przy ul. Skalnej zlokalizowany jest przystanek autobusowy, z komunikacją publiczną.
Uzbrojenie terenu:
• sieć wodociągowa – przyłącze do budynku,
• sieć elektroenergetyczna – przyłącze do budynku,
• sieć telekomunikacyjna – przyłącze do budynku,
• sieć gazowa – w pasie drogowym ul. Skalnej,
• kanalizacja sanitarna – biegnie w ulicy Skalnej

OPIS BUDYNKU MIESZKALNEGO
Budynek piętrowy, częściowo podpiwniczony w zabudowie bliźniaczej, wybudowany prawdopodobnie w latach 70-tych, rozbudowany po 2007 roku, przy czym część rozbudowana niedokończona, częściowo w stanie surowym, otwartym.
Układ funkcjonalny budynku:
Parter budynku mieści 2 pokoje, kuchnię, łazienkę, przedpokój i korytarz z wejściem na piętro oraz dobudowany salon (stan surowy, otwarty).
Na piętrze budynku znajdują się w części starej -2 pokoje, kuchnia przedpokój oraz w części dobudowanej salon i oranżeria .

Dane powierzchniowe:
Powierzchnia zabudowy – 155 m2
Powierzchnia użytkowa – 230,39 m2 ( w tym część stara 162,89 m2 i 67,5 m2 część dobudowana)

Konstrukcja i wykończenie :

Ściany piwnic – murowane z cegły oraz kamienia na zaprawie cementowo-wapiennej
Ściany konstrukcyjne – murowane z cegły (część stara) oraz pustaków ceramicznych i bloczków betonowych, na zaprawie cementowo-wapiennej (część dobudowana)
Ścianki działowe – murowane z cegły
Strop – strop nad piwnicą żelbetowy, nad parterem częściowo żelbetowy, częściowo drewniany (część stara)
Dach konstrukcja i wykończenie –dach konstrukcji drewnianej, kryty papą na deskowaniu
( w części nowej żelbetowy, kryty papą na deskowaniu)
Schody żelbetowe, w części mieszkalnej wykończone płytkami gresowymi
Kominy – murowane z cegły pełnej ceramicznej
Oblicowanie ścian i sufitów – tynki cementowo-wapienne malowane farbami akrylowymi; Ściany łazienki na parterze wyłożone płytkami gresowymi, ściany w łazience na piętrze surowe. Sufity tynkowane, malowane na biało.
Malowanie – farby akrylowe
Stolarka okienna – drewniana, dwuszybowa w kolorze brązowym, dwa okna starsze, w kolorze białym. W oranżerii oraz salonie na parterze brak okien.
Stolarka drzwiowa –drzwi zewnętrzne drewniane, ze szkleniem, wewnętrzne na parterze typowe, płycinowe, na piętrze brak.
Podłogi i posadzki – podłogi betonowe, wyłożone na parterze płytkami gresowymi (korytarz, łazienka oraz panelami podłogowymi pokoje; część dobudowana na parterze bez wykończenia; na piętrze przedpokój i łazienka bez wykończenia, pokoje panele podłogowe oraz płyty pilśniowe; w piwnicy podłogi betonowe
Elewacja – budynek bez zewnętrznego ocieplenia, w części starej wykończony tynkiem gruboziarnistym
Instalacje – budynek wyposażony jest w instalację wodno-kanalizacyjną, elektryczną, wentylacyjną grawitacyjną oraz centralnego ogrzewania (piec na paliwo stałe, grzejniki płytowe.

  • ul. Skalna, Mikołów Reta Śmiłowicka, powiat mikołowski  
  • Na sprzedaż bliźniak o powierzchni 230 m² wybudowany w 1970 roku
  • Sizing Streamline Icon: https://streamlinehq.com
    Działka 1 007 m²  
  • Piwnica  
  • Ogrzewanie gazowe
  • Dach papa
  • Media woda, gaz
  • Oferta bezpośrednio od właściciela dodana dodana dzisiaj
Ta nieruchomość może być Twoja od.. sprawdź
130000 zł (20%) Okres spłaty: 30 lat

Podobne domy na sprzedaż

9
bliźniak, 5 pokoi Ornontowice, ul. Solarnia

890 000

155

5 pok.

Oferujemy na sprzedaż dom jednorodzinny w zabudowie bliźniaczej, położony w spokojnej, malowniczej okolicy, w sąsiedztwie terenów zielonych i lasu. To idealne miejsce dla osób ceniących ciszę, a jednocześnie szybki dostęp do aglomeracji śląskiej. Nieruchomość posiada doskonałe połączenie komunikacy...

Zobacz ogłoszenie
20
dom szeregowy, 4 pokoje Łaziska Górne Centrum, ul. Sosnowa

799 999

139

4 pok.

Do sprzedania dom w zabudowie szeregowej - segment środkowy w Łaziskach Górnych na osiedlu Leśnym na działce o powierzchni 140 metrów kwadratowych. Dom w zabudowie szeregowej wybudowany w 2012 roku . Osiedle Leśne w Łaziskach Górnych jest na pograniczu Łazisk Górnych i Mikołowa miejsce dobrze skom...

Zobacz ogłoszenie