Dom na sprzedaż bez pośredników
Wrząca  

dom wolnostojący, 5 pokoi Wrząca. Zdjęcie 1

Dom na sprzedaż bez pośredników Wrząca

1 280 000
4 923 zł/m²
260
5 pok.
Wrząca - lokalizacja przybliżona
Bezpośrednio od właściciela

Jeśli nie potrzebujesz pośrednika, zaoszczędzisz około 38 400 zł. Potrzebujesz wsparcia? Skorzystaj z pomocy agenta.

Oferta sprzedaży✍️
Dom powstał według projektu APS401 renomowanej pracowni Archi-Projekt .
Jest to nowoczesny dom parterowy, który oferuje
- duży salon z kominkiem
- sypialnie 3-6/po adaptacji
- kuchnia z miejscem na wyspę AGD
- zadaszony taras
- garaż dwustanowiskowy
- obszerne poddasze pod rekreację lub pracownię do pracy zdalnej w domu👍😀🏡


Prezentowana oferta ma charakter informacyjny, nie stanowi oferty handlowej w rozumieniu Art. 66 par. 1 Kodeksu Cywilnego.

Opis
Mamy wielką przyjemność przedstawić ofertę sprzedaży domu jednorodzinnego, wolnostojącego.

Ten przestronny, parterowy dom powstał według projektu APS 401 z pracowni Archi-Projekt

🏡
Architektura domu jest wyrazista , nowoczesna z charakterystycznym podcieniem wejściowym i efektownym, rozłożystym dachem kopertowym.
Elewacja domu cała w bieli kontrastuje z dużymi grafitowymi oknami, które w każdym pomieszczeniu sięgają do podłogi , oraz z grafitową dachówką i prawie pięcio-metrową automatyczną bramą dwustanowiskowego garażu.

Od strony ogrodu znajdujemy obszerny 35-metrowy taras wyłożony kostką ..... I zadaszony dużym głębokim podcieniem. Wokół domu wykonano opaski z grafitowego gresu ozdobnego.☕🍰

Dom oferuje Państwu powierzchnię całkowitą 260m2.

W parterze 175m2:

Znajdujemy tu duży salon połaczony z jadalnią i otwartą kuchnią.
Razem to pow. 50m2, która jest pięknie otwarta na ogród, z sielskim widokiem na łąkę, las i strumień, co zapewnia dużą prywatność. W jadalni mamy 3metrowe okno typu fix, a w salonie okno HS 3m prowadzi na zadaszony taras.
Wieczorami w salonie ciepła doda kominek.

W kuchni znajdziemy miejsce na zabudowę AGD, z wydzieleniem spiżarni a między jadalnią a kuchnią zmieścimy obszerną wyspę roboczą, blat kuchenny doświetla duże narożne okno.


Spokój domownikom zapewnia rozkład funkcjonalny domu z wyraźnym podziałem na strefy dzienną i nocną.

W głebi od strony ogrodu usytuowano 3 sypialnie. Największa z nich ma osobną łazienkę z oknem i garderobę.🛀👔
Każda z sypialń posiada duże dwuskrzydłowe okna z możliwością wyjścia na taras i podziwiania natury.

W strefie gospodarczej domu znajdujemy kotłownie, osobną pralnie z wyjściem do ogrodu i olbrzymi dwustanowiskowy garaż z automatyczną bramą segmentową.

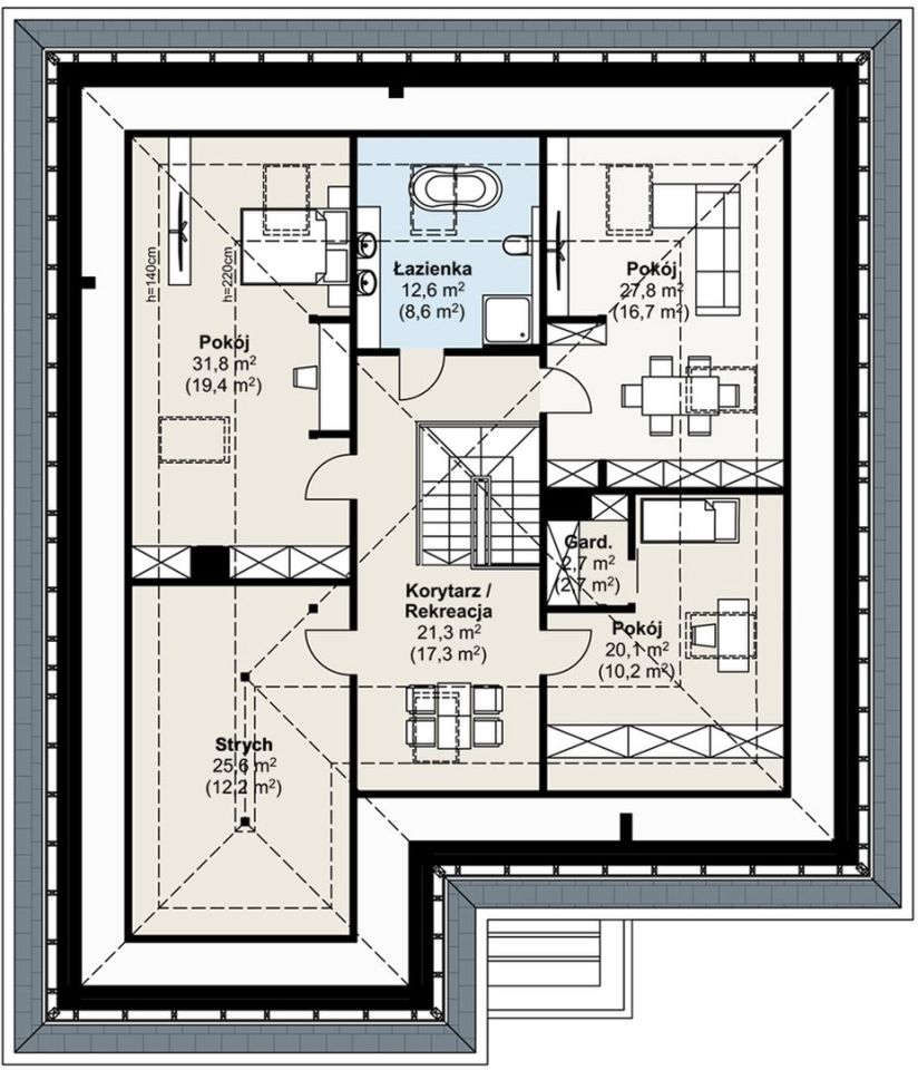
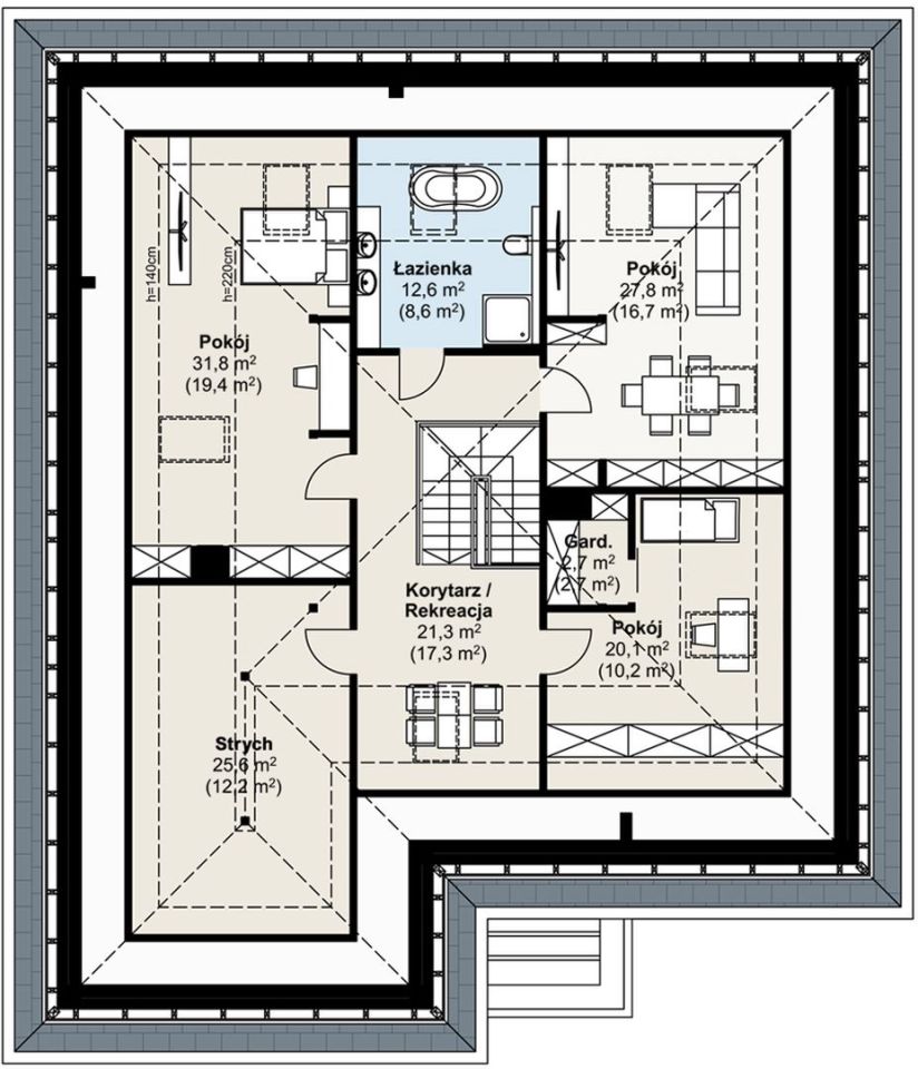
Piętro 85m2:

Ale to nie wszystko... Na piętrze znajdujemy jeszcze dużą jedną przestrzeń, którą można dowolnie zaaranżować.
To dodatkowe 85m2 powierzchni użytkowej doświetlone trzema dużymi oknami połaciowymi. Na piętro prowadzi od wejścia hall z antresolą.
Obecnie jest to otwarta przestrzeń, która może posłużyć do rekreacji lub pracy.🎸🪙
Drugi rzut na zdjęciach pokazuje możliwość podziału piętra na dodatkowe 3 pokoje, łazienkę schowek i antresole.

Lokalizacja :

...tego wygodnego, nowoczesnego domu to wisienka na torcie. 🎂
Dom wybudowano na dużej leśnej, bardzo słonecznej działce o powierzchni 1560m2.
Na osiedlu Szkolnym w miejscowości Wrząca tylko 15km od Łodzi.
Wjazd na posesję zlokalizowany od strony północnej a ogród od południa zapewnia odpowiednie nasłonecznienie przez cały rok.
Wysokie drzewa liściaste dają chłód i cień w gorące dni. Z tarasu rozciąga się piękny widok na sąsiadującą łąkę z malutkim strumykiem.
Działka jest ostatnią działką przy ulicy, co daje domownikom duży komfort i ciszę od strony ogrodu, który sąsiaduje z łąką i lasem.

Osiedle Szkolne we Wrzącej daje nam komfort obcowania z naturą i bliskość infrastruktury miasta Lutomiersk.
Szkoła podstawowa, korty, boiska to ok. 10 min spacerem, podobnie przedszkole, żłobek, sklep spożywczy od i do, obiady domowe sklep Dino, apteka, przystanek autobusowy MPK stacja paliw Orlen dwie myjnie samochodowe, i inna potrzebna infrastruktura.🏫🏪🚖🏐

Instalacje

Dom jest podłączony do miejskiej sieci gazowej. Mamy możliwość założenia wydajnego pieca kondensacyjnego.
W całym budynku na parterze wykonano instalacje ogrzewania podłogowego, wody i kanalizacji.
Instalacja wody podłączona do własnej studni głębinowej, a kanalizacja do biologicznej oczyszczalni ścieków.
Wykonano też dodatkowy komin do podłączenia kominka w salonie.
Dla osób potrzebujących szybkiego internetu jest też internet @🌎światłowodowy w ulicy Lawendowej.

Cała instalacja techniczna zapewni Państwu wygodne, tanie i co ważne, niezależne użytkowanie domu na długie lata.


Wszystkich zainteresowanych zapraszamy do spotkania i obejrzenia inwestycji na miejscu...


Rafał i Małgorzata 🙋🤷

  • Oferta z rynku pierwotnego
  • Wrząca, gmina Lutomiersk, powiat pabianicki  
  • Na sprzedaż dom wolnostojący o powierzchni 260 m², 5 pokoi wybudowany w 2025 roku
  • Sizing Streamline Icon: https://streamlinehq.com
    Działka 1 560 m², długość działki: 35 m, szerokość działki: 45 m  
  • Budynek z poddaszem użytkowym, w stanie do wykończenia, z osobną kuchnią  
  • Taras, bez piwnicy, garaż na 2 samochody  
  • Ogrzewanie gazowe
  • Materiał budowy pustak ceramiczny
  • Dach blachodachówka
  • Okna plastikowe
  • Dojazd utwardzony
  • Ogrodzenie metalowe
  • Media woda, oczyszczalnia przydomowa, prąd, gaz
  • Cena do negocjacji  
  • Oferta bezpośrednio od właściciela dodana ponad miesiąc temu i zaktualizowana ponad tydzień temu
Ta nieruchomość może być Twoja od.. sprawdź
256000 zł (20%) Okres spłaty: 30 lat

Podobne domy na sprzedaż

24
dom wolnostojący, 6 pokoi Chechło Pierwsze, ul. K. I. Gałczyńskiego

1 290 000

246

6 pok.

Na sprzedaż - dom jednorodzinny w zabudowie wolnostojącej, na terenie ogrodzonym, położony w Chechle Pierwszym. Nieruchomość usytuowana jest na granicy Pabianic i Chechła Pierwszego, w sąsiedztwie parku Wolności ("Strzelnica"), w zielonej, cichej okolicy. Najbliższy wjazd na drogę ekspresową S14 (w...

Zobacz ogłoszenie
7
dom wolnostojący, 7 pokoi Petrykozy

1 100 000

280

7 pok.

Na sprzedaż przestronny dom z dużym potencjałem – 280 m², 2 kondygnacje + strych, 2 garaże, możliwość wydzielenia dwóch mieszkań Oferuję na sprzedaż funkcjonalny, solidnie wykonany dom o powierzchni użytkowej ok. 280 m², położony na ogrodzonej i częściowo utwardzonej działce. Nieruchomość doskonale ...

Zobacz ogłoszenie
23
dom wolnostojący, 5 pokoi Konstantynów Łódzki Centrum, al. Kombatantów

1 399 999

175

5 pok.

Na sprzedaż dom z funkcją mieszkaniowo-usługową, zlokalizowany w centrum miasta Konstantynowa Łódzkiego, w bezpośrednim sąsiedztwie osiedla mieszkaniowego. Lokalizacja o wysokim potencjale popytowym dla usług lokalnych i specjalistycznych. 💠Podstawowe parametry: ▪️ powierzchnia budynku: 150m² netto ...

Zobacz ogłoszenie
19
dom wolnostojący, 6 pokoi Bychlew, ul. Nowa

1 250 000

185

6 pok.

Jeśli marzysz o domu otoczonym naturą to ta nieruchomość znajduje się w sercu lasu, oferując ciszę, prywatność i codzienny kontakt z naturą, a jednocześnie zaledwie kilka minut od Pabianic i w bliskiej odległości od Łodzi- 10 km do Portu Łódź oraz Ikei:) Charakterystyka budynku Dom jednorodzinny, wo...

Zobacz ogłoszenie
34
dom wolnostojący, 3 pokoje Czołczyn

799 000

158

3 pok.

Do sprzedania dom w Czołczynie koło Lutomierska. Dom parterowy (158m2) + poddasze użytkowe. Parter jest do zamieszkania, natomiast poddasze jest do wykończenia. Działka 1000m2. Dostępne media: woda, gaz, prąd. Oczyszczalnia przydomowa. Ogrzewanie gazowe + kominek z płaszczem wodnym. Więcej informac...

Zobacz ogłoszenie
25
bliźniak, 4 pokoje Babice

1 499 360

166

4 pok.

W Babicach, niespełna 5 km od centrum Konstantynowa Łódzkiego, czeka dom, który łączy wygodę codziennego życia z atmosferą prawdziwego odpoczynku. Kameralna zabudowa bliźniacza, 642 m² zadbanej działki i otwarta przestrzeń łąk za ogrodem sprawiają, że tu naprawdę można zwolnić. Poranki z kawą na tar...

Zobacz ogłoszenie