Dom na sprzedaż bez pośredników
ul. Kotoniarska Łódź Młynek

dom wolnostojący Łódź Młynek, ul. Kotoniarska. Zdjęcie 1

Dom na sprzedaż bez pośredników Łódź Młynek ul. Kotoniarska

2 800 000
10 370 zł/m²
270
Łódź Młynek, Kotoniarska - lokalizacja przybliżona
Bezpośrednio od właściciela

Jeśli nie potrzebujesz pośrednika, zaoszczędzisz około 84 000 zł. Potrzebujesz wsparcia? Skorzystaj z pomocy agenta.

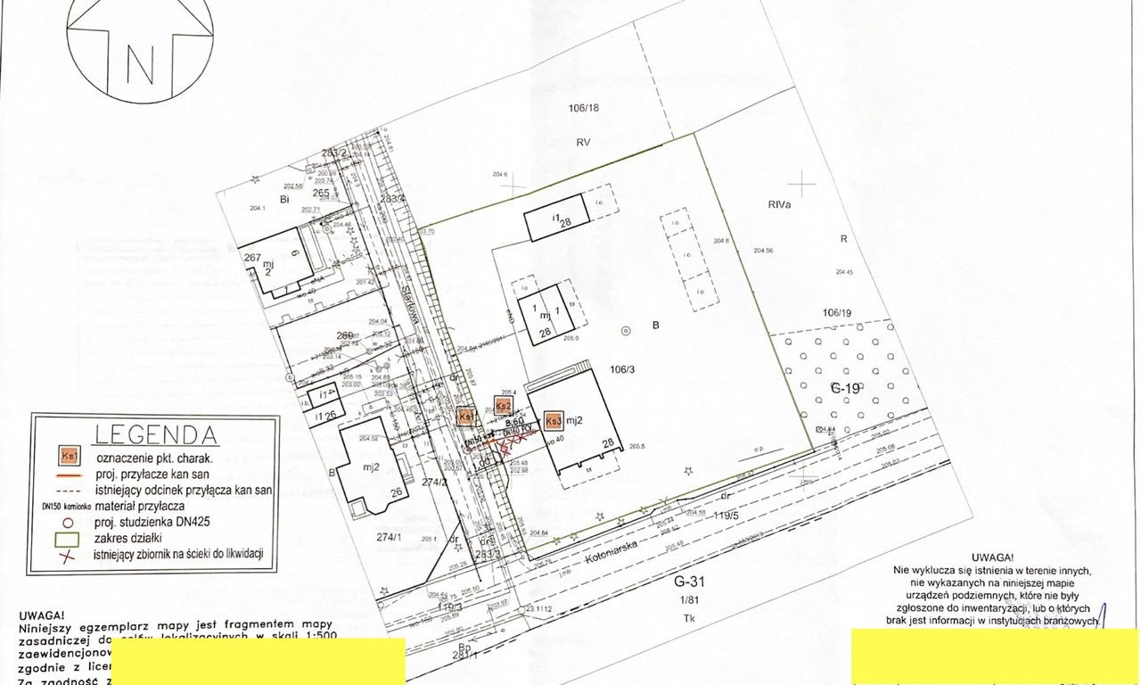
Na sprzedaż nieruchomość inwestycyjna położona na Młynku, na rogu ul. Kotoniarskiej i Startowej w Łodzi. Działka budowlana o łącznej powierzchni 3 008 M2 (dz. 106/3, ob. G–19), idealny teren pod inwestycje mieszkalne, hotelowe, handlowe, usługowe, magazynowe etc. 


Nieruchomość na Google Maps:

Bardzo atrakcyjne położenie na trasie przelotowej do autostrady A1 oraz w bezpośrednim sąsiedztwie rewitalizowanego parku na Młynku. W okolicy znajdują się domy jednorodzinne (m.in. osiedle EkoMłynek) oraz magazyny i zakłady przemysłowe (m.in. Panattoni, Uniq Logistic, Dell). 


Nieruchomość graniczy z działką, na którym powstanie osiedle mieszkaniowe w zabudowie bliźniaczej o powierzchni ok. 6 ha, z perspektywą rozbudowy w stronę ul. Tomaszowskiej. 


Na działce znajdują się budynki, tj. użytkowany, jednopiętrowy, ogrzewany dom mieszkalny po całkowitej termomodernizacji (270 M2) i budynki gospodarcze (45 M2). 


Do posesji są doprowadzone wszystkie media, tj. sieć wodociągowa i kanalizacja sanitarna, przyłącza i instalacje elektryczne. Przyłącze do instalacji gazowej znajduje się w bezpośrednim sąsiedztwie, tj. przy ul. Kotoniarskiej. 


Teren położony jest na obszarze, dla którego nie ma obecnie obowiązującego planu zagospodarowania przestrzennego. Działka budowlana bez obciążeń. Bezpośrednia oferta sprzedaży.


Zapraszamy do kontaktu!

  • ul. Kotoniarska, Łódź Młynek  
  • Na sprzedaż dom wolnostojący o powierzchni 270 m²  
  • Sizing Streamline Icon: https://streamlinehq.com
    Działka inwestycyjna 3 008 m²  
  • Media woda, kanalizacja
  • Oferta bezpośrednio od właściciela dodana ponad miesiąc temu i zaktualizowana ponad tydzień temu
Ta nieruchomość może być Twoja od.. sprawdź
560000 zł (20%) Okres spłaty: 30 lat

Podobne domy na sprzedaż

16
dom wolnostojący, 6 pokoi Łódź Chojny, ul. Bałtycka

2 999 999

310

6 pok.

Nowy budynek gospodarczo garażowo biurowy z częścią mieszkalną jednorodzinną z pięknym widokiem i krajobrazem na nie zamieszkane tereny zielone.

Zobacz ogłoszenie
12
dom wolnostojący, 6 pokoi Łódź Ruda Pabianicka

2 830 000

300

6 pok.

Sprzedam dom o oryginalnej architekturze, położony w Rudzie Pabianickiej, okolice ul. Przestrzennej. Powierzchnia domu to ok. 300 m2. Garaż w bryle budynku. Działka 2300 m2 z zagospodarowanym, zadbanym ogrodem, wyposażonym w nawodnienie i robota koszącego. Dom jest bardzo widny (duża ilość okien) ...

Zobacz ogłoszenie
7
dom wolnostojący Łódź Stare Rokicie

2 900 000

297

Dom jednorodzinny na sprzedaż - Łódź, Stare Rokicie Na sprzedaż nowoczesny, przestronny dom jednorodzinny zlokalizowany w spokojnej i zielonej części Łodzi - Stare Rokicie. PARAMETRY NIERUCHOMOŚCI: • Powierzchnia domu: 297 m² • Powierzchnia działki: 780 m² • Rok budowy: 2021 • Stan: wykończony, go...

Zobacz ogłoszenie
8
dom wolnostojący, 5 pokoi Łódź Bałuty, ul. Wycieczkowa

2 990 000

181

5 pok.

Czasami na rynku pojawiają się wyjątkowe oferty - i to z całą pewnością jedna z nich. Ten dom wyróżnia się niepowtarzalnym stylem i lokalizacją - został zaprojektowany w każdym szczególe i położony bezpośrednio przy Lesie Łagiewnickim. W tygodniu szybko dojedziemy do miasta ulicą Wycieczkową, a w ...

Zobacz ogłoszenie
30
dom wolnostojący, 6 pokoi Łódź Górna, ul. Obywatelska

2 650 000

300

6 pok.

Sprzedam wygodną, przestronną willę w centrum Łodzi w cichej i spokojnej okolicy na Rokiciu przy środmieściu. W pobliżu szkoła, złobek, apteka, sklepy: Dino, Żabka, Biedronka, Lidl i Aldi. Miejsce jest dobrze skomunikowane komunikacją publiczną, miejską; autobusy: 77 oraz w pobliżu Z11. Dom o powie...

Zobacz ogłoszenie
14
dom wolnostojący, 4 pokoje Łódź Polesie, ul. Łubinowa

2 555 000

244

4 pok.

Na sprzedaż: Przestronny dom z garażem i dodatkowym budynkiem, ul. Łubinowa, Złotno - idealna lokalizacja, wspaniałe możliwości! Jeśli marzysz o przestronnym domu w spokojnej, zielonej okolicy, a jednocześnie z wygodnym dostępem do centrum Łodzi - ta nieruchomość jest idealna dla Ciebie! Oferuje pi...

Zobacz ogłoszenie