Dom na sprzedaż bez pośredników
Kozy  

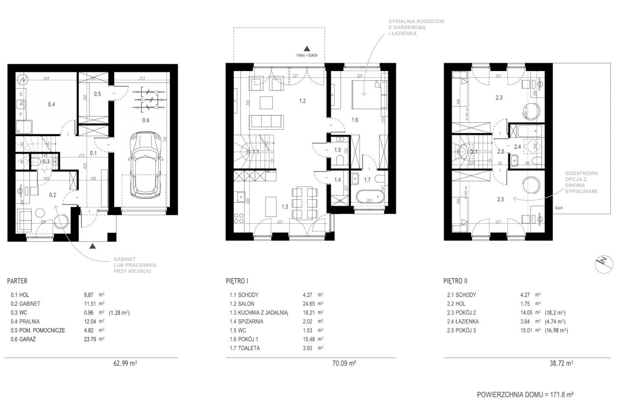
dom szeregowy, 7 pokoi Kozy. Zdjęcie 1

Dom na sprzedaż bez pośredników Kozy

822 355
4 809 zł/m²
171
7 pok.
Kozy - lokalizacja przybliżona
Bezpośrednio od właściciela

Jeśli nie potrzebujesz pośrednika, zaoszczędzisz około 24 700 zł. Potrzebujesz wsparcia? Skorzystaj z pomocy agenta.

Domy zlokalizowane w Kozach. W 15 min, po przebyciu 9 km jesteś na rynku w Bielsku-Białej.

Domy w Starym Sadzie to pięć domów w zabudowie szeregowej z własnymi ogrodami. Zlokalizowane u podnóża gór, w spokojnej, cichej okolicy łączą w sobie walory posiadania domu za miastem z komfortem jaki daje bliskość centrum.

Zapraszamy na naszą stronę: .

Standard wykończenia i wyposażenia budynku:

1. Wykończone elewacje.

2. Pełna stolarka okienna, drzwi wejściowe, brama garażowa.

3. Instalacje wewnętrzne:
elektryczna (bez białego montażu),
wodno-kanalizacyjna (bez białego montażu),
niskoprądowa,
zasilanie promienników (bez białego montażu).

4. Przyłącza zewnętrzne:
elektryczne,
wodne,
kanalizacja deszczowa (odprowadzona do rzeki zgodnie z pozwoleniem wodno-prawnym),
kanalizacja sanitarna ogólnospławna.

5. Ściany nośne murowane z bloczków ceramicznych poryzowanych 25cm.

6. Ściany działowe płyty g-k z wypełnieniem wełną mineralną.

7. Tynki wewnętrzne gipsowe.

8. Stropy gęstożebrowe Teriva, wylewki wewnętrzne zbrojone na warstwie styropianu: na parterze o grubości 10 cm, na piętrze o grubości 3 cm.

9. Dach pokryty dachówką ceramiczną BRAAS Celtycka.

10. Rynny PCV firmy Galeco.

11. Przygotowano podejścia pod instalacje paneli fotowoltacznych.

12. Posiadamy przykładowe oferty na montaż:
paneli fotowoltaicznych,
schodów,
promienników ze sterowaniem.

11. Każdy dom posiada ogród z zapewnionym dostępem od zewnętrz. Powierzchnia działek od
318-443 m2.

Dom gotowy do przekazania w uzgodnionym terminie.

  • Kozy, powiat bielski  
  • Na sprzedaż dom szeregowy o powierzchni 171 m², 7 pokoi wybudowany w 2023 roku
  • Sizing Streamline Icon: https://streamlinehq.com
    Działka 318 m²  
  • Garaż  
  • Ogrzewanie olejowe
  • Dach dachówka
  • Media kanalizacja
  • Oferta bezpośrednio od właściciela dodana ponad miesiąc temu i zaktualizowana ponad tydzień temu
Ta nieruchomość może być Twoja od.. sprawdź
164000 zł (20%) Okres spłaty: 30 lat

Podobne domy na sprzedaż

5
bliźniak, 4 pokoje Czechowice-Dziedzice, ul. Pasieki

786 000

143

4 pok.

Zapraszamy do zakupu domu w zabudowie bliźniaczej położonego przy ul. Pasieki, na działce o powierzchni 680 m² (powierzchnia działki obejmuje dwa lokale mieszkalne). Budynek zlokalizowany w spokojnej okolicy, doskonała komunikacja z Czechowicami oraz Bielskiem-Białą. W pobliżu przystanek autobusowy...

Zobacz ogłoszenie
17
bliźniak, 4 pokoje Bystra

769 000

110

4 pok.

Dom w zabudowie bliźniaczej - Bystra, dzielnica willowa - 110 m², ogródek, miejsce parkingowe Na sprzedaż dwie części domu w zabudowie bliźniaczej o powierzchni 110 m² każda, położony w prestiżowej, willowej części Bystrej. Nieruchomość znajduje się w spokojnej, widokowej okolicy, otoczonej lasami ...

Zobacz ogłoszenie
9
dom wolnostojący, 7 pokoi Kozy

595 000

152

7 pok.

Do sprzedaży funkcjonalny dom w Kozach. DOSKONAŁY DO ZAMIESZKANIA RÓWNIEŻ PRZEZ DWIE RODZINY. ISTNIEJE MOŻLIWOŚĆ NEGOCJACJI CENY. Budynek wymaga prac remontowych. Dom dwukondygnacyjny - parter i poddasze użytkowe - częściowo podpiwniczony, przeznaczony w poziomie parteru do odświeżenia, natomiast w ...

Zobacz ogłoszenie
6
dom szeregowy Kozy, ul. św. Walentego

1 100 000

146

Nowoczesny dom jednorodzinny Lena - Kozy, ul. św. Walentego - Osiedle Górski Zakątek Jednorodzinny dom Lena to stylowa i praktyczna propozycja dla osób ceniących komfort, elegancję i nowoczesne rozwiązania. Położony w spokojnej i zielonej części Kóz - na osiedlu Górski Zakątek, w sąsiedztwie nowych...

Zobacz ogłoszenie
12
dom wolnostojący, 5 pokoi Mazańcowice

882 000

149

5 pok.

Do sprzedania nowy dom w Mazańcowicach, w spokojnym miejscu przy ul. Sportowej, na działce 9,34 a. Projekt: "Dom przy Alabastrowej 50" z małymi zmianami (brak dodatkowego pokoju na parterze). - Ściany zewnętrzne: pustak ceramiczny Heluz 25. - Ocieplenie zew.: styropian 20 cm. - Strop: betonowy. - ...

Zobacz ogłoszenie
11
dom wolnostojący, 7 pokoi Godziszka

795 000

220

7 pok.

Sprzedam dom w Godziszce położony na szczycie góry Skalite u podnóża Skrzycznego Z pięknym widokiem na całą panoramę Beskidów .Dojazd całoroczny zwykłym samochodem . Wjazd bezpośredni z drogi gminnej asfaltowej .Okolica cicha i spokojna. Do przedszkola szkoły i dużych sklepów blisko, do drogi ekspre...

Zobacz ogłoszenie