Dom na sprzedaż bez pośredników
ul. Skrzetuskiego Częstochowa Stradom

dom szeregowy Częstochowa Stradom, ul. Skrzetuskiego. Zdjęcie 1

Dom na sprzedaż bez pośredników Częstochowa Stradom ul. Skrzetuskiego

1 230 000
8 913 zł/m²
138
Częstochowa Stradom, Skrzetuskiego - lokalizacja przybliżona
Bezpośrednio od właściciela

Jeśli nie potrzebujesz pośrednika, zaoszczędzisz około 36 900 zł. Potrzebujesz wsparcia? Skorzystaj z pomocy agenta.

Sprzedam bez pośredników dom z 2021 roku, w zabudowie szeregowej zlokalizowany na zamkniętym i kameralnym osiedlu „Zielone Zacisze”, które znajduje się na ul. Skrzetuskiego w dzielnicy Stradom. Nieruchomość idealna dla rodzin, osób ceniących komfort, ciszę i przestrzeń oraz szybki dostęp do centrum miasta.

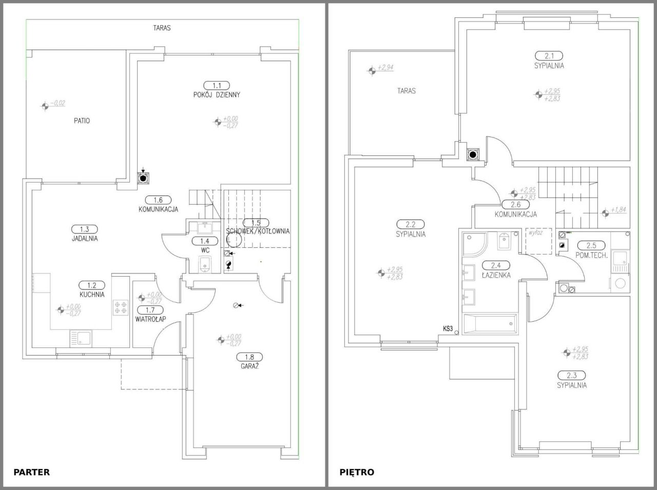
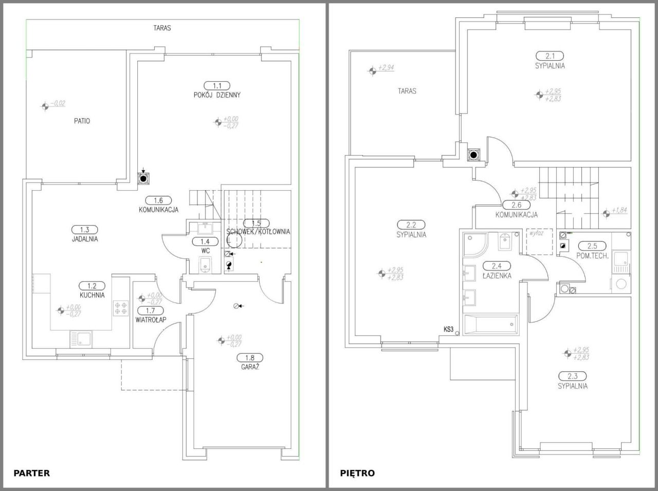
Układ pomieszczeń:
PARTER: przedpokój, salon, kuchnia z jadalnią, wc, wiatrołap, kotłownia, garaż, duży, zadaszony taras
PIĘTRO: 3 pokoje, garderoba, łazienka, pralnia, duży taras
PODDASZE UŻYTKOWE: oświetlony strych z dostępem do prądu

Parametry nieruchomości:
Powierzchnia użytkowa domu – 138 m2
Powierzchnia działki – 300 m2
Media: prąd, gaz, woda, kanalizacja, internet światłowodowy, rekuperacja
Działka ogrodzona, z miejscem parkingowym na drugie i trzecie auto.
Ogrzewanie gazowe. Na parterze oraz w łazience i pralni na piętrze ogrzewanie podłogowe. W pralni dodatkowo grzejnik elektryczny.
Możliwość zamontowania kominka.
W domu zamontowane są sterowniki temperatury oraz rekuperacji, dzięki którym można dowolnie zmieniać temperaturę oraz wentylację, zarówno zimą jak i latem, ogrzewając lub schładzając pomieszczenia. Istnieje również możliwość sterowania temperatury z telefonu za pomocą aplikacji.
Brama garażowa otwierana pilotem.

Opis osiedla
Osiedle ogrodzone i oświetlone. Na terenie znajdują się dodatkowe miejsca parkingowe dla gości oraz plac zabaw dla dzieci.
Brama wjazdowa na osiedle otwierana pilotem oraz za pomocą telefonu z dowolnego miejsca poza domem.
Wejście na teren osiedla za pomocą domofonu.
Dojazd do osiedla nową, oświetloną drogą asfaltową z chodnikiem dla pieszych oraz pasem zieleni.
Osiedle położone jest w zielonej części Stradomia. Okolica charakteryzująca się ciszą i spokojem. W sąsiedztwie zabudowa jednorodzinnych domów oraz lasy, łąki i pola, po których można spacerować, jeździć na rowerze oraz zbierać grzyby.
W pobliżu znajduje się przedszkole, szkoła podstawowa, przychodnia lekarska, weterynarz, apteka, kościół, sklep ogrodniczy, elektryczny oraz piekarnia. W okolicy znajdują się również takie sklepy jak Biedronka, Dino, Lewiatan i Wafelek. W planach budowa również sklepu Lidl.

Do centrum miasta prowadzi oświetlona ścieżka pieszo – rowerowa. Dojazd samochodem do centrum ok. 10 min, rowerem ok. 20 min.

Sprzedaż bez pośredników – bez prowizji.

Cena: 1.230.000 zł.

Osoby zainteresowane zapraszam do kontaktu telefonicznego w celu uzyskania dodatkowych informacji oraz umówienia się na obejrzenie nieruchomości.
Niniejsze ogłoszenie nie stanowi oferty w rozumieniu Kodeksu Cywilnego, lecz ma charakter informacyjny.

  • ul. Skrzetuskiego, Częstochowa Stradom  
  • Na sprzedaż dom szeregowy o powierzchni 138 m² wybudowany w 2021 roku
  • Sizing Streamline Icon: https://streamlinehq.com
    Działka 300 m²  
  • Budynek z poddaszem użytkowym, w stanie wysoki standard  
  • Taras, garaż  
  • Ogrzewanie gazowe
  • Dojazd asfalt
  • Media woda, kanalizacja, prąd, gaz
  • Wyposażenie internet
  • Oferta bezpośrednio od właściciela dodana ponad miesiąc temu i zaktualizowana ponad tydzień temu
Ta nieruchomość może być Twoja od.. sprawdź
246000 zł (20%) Okres spłaty: 30 lat

Podobne domy na sprzedaż

8
dom wolnostojący Częstochowa Zawodzie

1 190 000

140

Komfortowy dom wolnostojący z 2011 roku, położony w dzielnicy Zawodzie-Dąbie, w cichej uliczce. Nieruchomość nie wymaga żadnych nakładów, stan do wprowadzenia. --- INFORMACJE PODSTAWOWE: * Lokalizacja: Zawodzie-Dąbie * Powierzchnia użytkowa: 140 m² * Powierzchnia działki: 778 m² * Dodatkowo: bud...

Zobacz ogłoszenie
10
dom wolnostojący, 4 pokoje Częstochowa Kawodrza Dolna

925 000

100

4 pok.

Na sprzedaż energooszczędny, przytulny 4-pokojowy dom wolnostojący z funkcjonującym warsztatem samochodowym w spokojnej dzielnicy na działce o łącznej powierzchni 1268 m². Okolica charakteryzuje się luźną zabudową jednorodzinną i niskim natężeniem ruchu, co zapewnia komfort i prywatność na co dzień....

Zobacz ogłoszenie
9
dom wolnostojący, 3 pokoje Częstochowa Lisiniec, ul. Płocka

999 000

110

3 pok.

Na sprzedaż przestronny, funkcjonalny dom jednorodzinny położony w spokojnej i zielonej okolicy, z doskonałym dostępem do infrastruktury miejskiej. Nieruchomość oferuje wysoki standard wykończenia oraz liczne udogodnienia, które zapewnią komfort i wygodę przyszłym właścicielom. Szczegóły nieruchomo...

Zobacz ogłoszenie
20
dom wolnostojący, 6 pokoi Częstochowa Północ

998 000

145

6 pok.

Przestronny, komfortowy dom jednorodzinny o powierzchni użytkowej 145,79 m² plus piwnica o powierzchni 49,62 m², usytuowany w spokojnej i prestiżowej dzielnicy Północ/Kiedrzyn w Częstochowie. Nieruchomość gotowa do zamieszkania, położona na pięknej, ogrodzonej działce o powierzchni 1134 m². UKŁAD P...

Zobacz ogłoszenie
16
dom wolnostojący, 4 pokoje Częstochowa Grabówka, ul. Flisacka

1 270 000

150

4 pok.

DWA DOMY wolnostojące - na jednej działce - sprzedam BEZ POŚREDNIKÓW. PIERWSZY DOM o powierzchnai 150 m kw. DRUGI DOM o powierzchni 50 m kw. OBA DOMY stoją na tej samej działce o powierzchni 895 m kw usytuowanej w Częstochowie - dzielnica Kolonia Grabówka z osobną numeracją przy ul. Flisackiej 5 ...

Zobacz ogłoszenie
19
dom wolnostojący, 4 pokoje Częstochowa Kiedrzyn, ul. Sucharskiego

1 200 000

130

4 pok.

Komfortowy dom parterowy z piękną działką o pow. 1595 m2 w Częstochowie w dzielnicy Kiedrzyn. Dom parterowy o powierzchni użytkowej ok. 130 m2, w skład którego wchodzi przytulny salon połączony z jadalnią i kuchnią oraz 3 przestronne pokoje, w chwili obecnej urządzone jako sypialnia rodziców i dwa...

Zobacz ogłoszenie