Dom na sprzedaż bez pośredników
Justynów  

bliźniak Justynów. Zdjęcie 1

Dom na sprzedaż bez pośredników Justynów

850 000
6 343 zł/m²
134
Justynów - lokalizacja przybliżona
Bezpośrednio od właściciela

Jeśli nie potrzebujesz pośrednika, zaoszczędzisz około 25 500 zł. Potrzebujesz wsparcia? Skorzystaj z pomocy agenta.

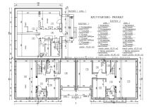
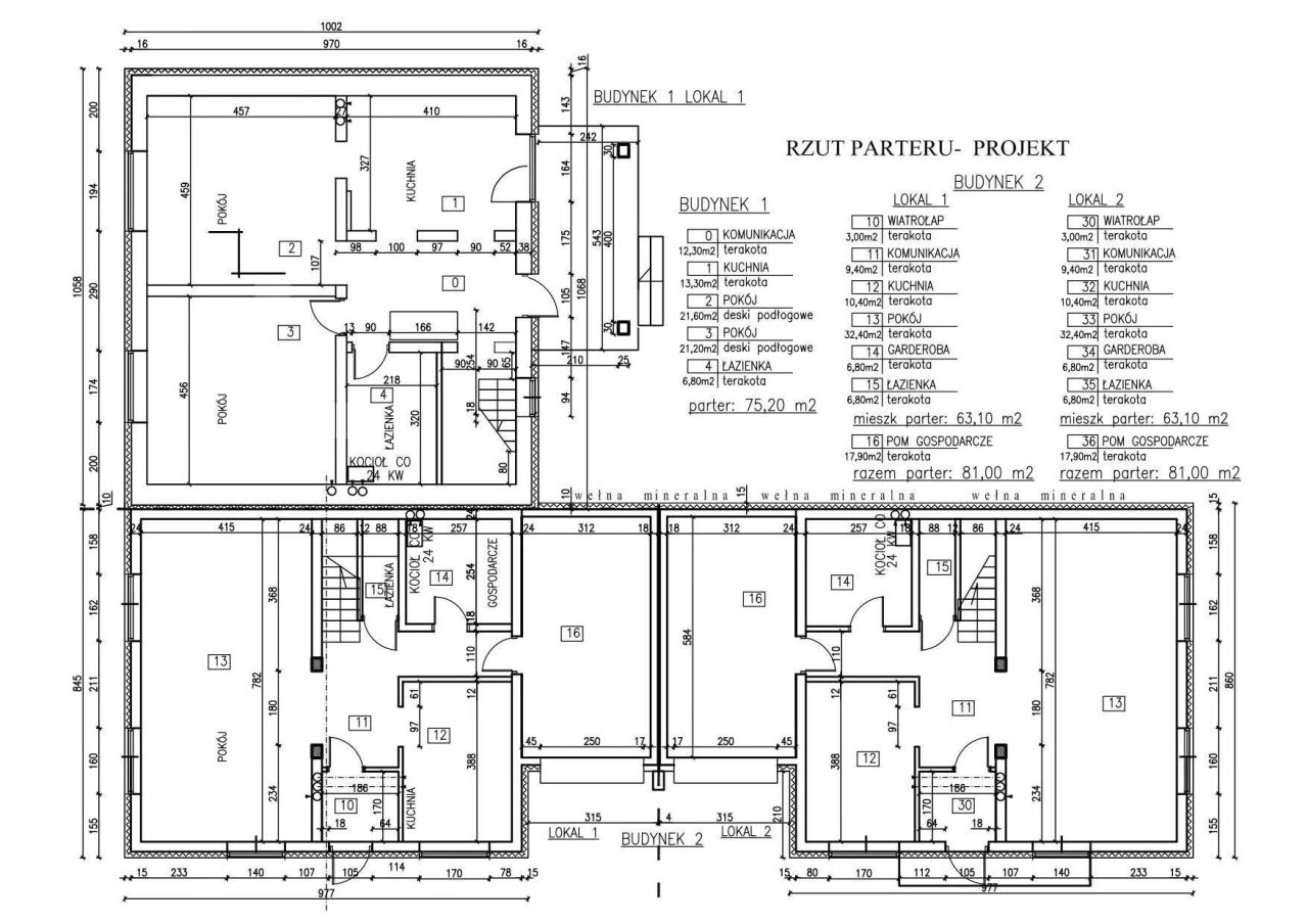
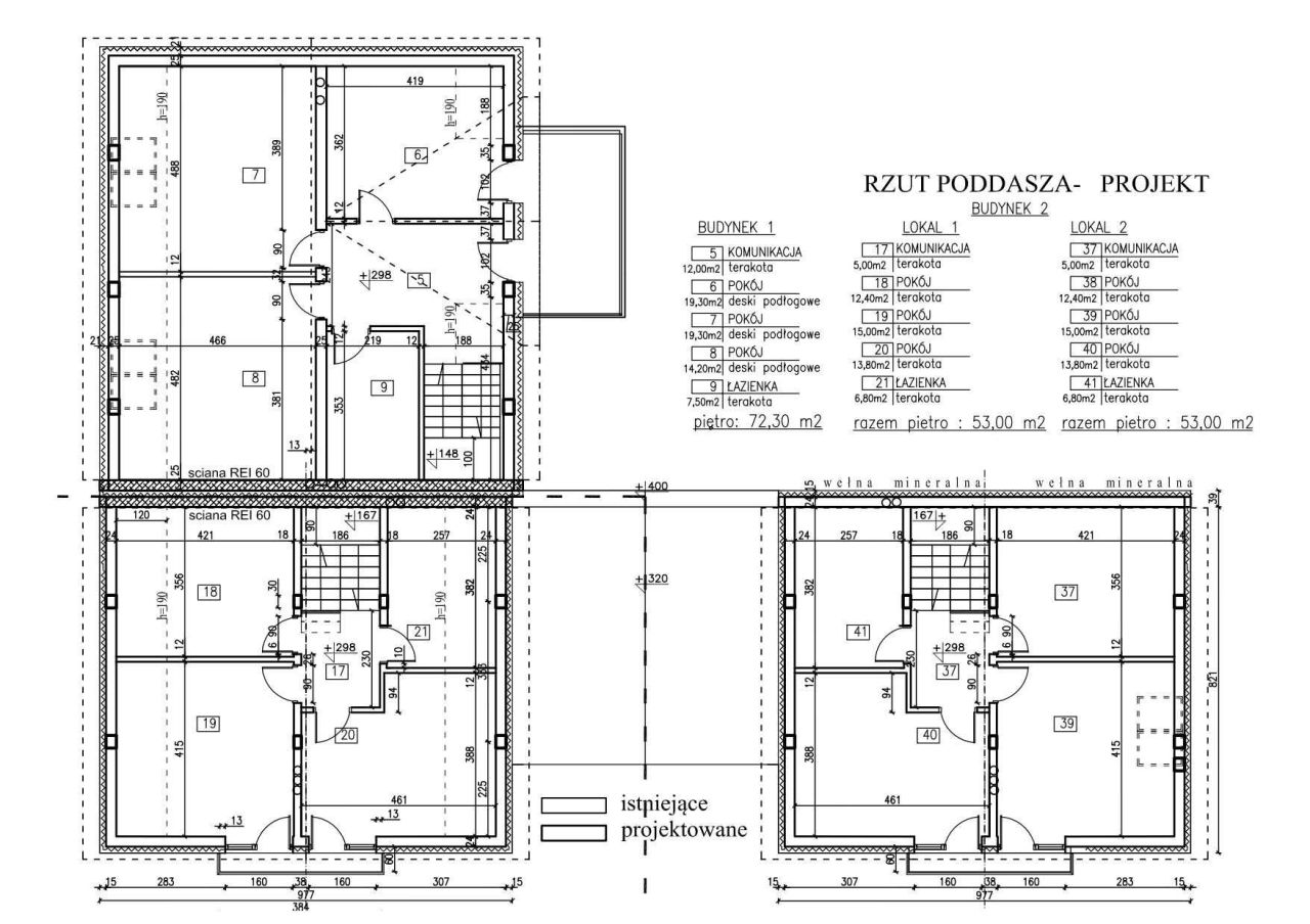
Na sprzedaż 3 domy jednorodzinne w miejscowości Justynów k. Andrespola.

Budynki są obecnie w stanie surowym otwartym, przykryte dachem, jak na zdjęciach. Budowa jest w trakcie realizacji, co daje możliwość dostosowania budynków do indywidualnych potrzeb kupującego po wcześniejszym uzgodnieniu szczegółów.

BUDYNEK 1:
- pow. użytkowa: 147,5 m2
- pow. działki: 447 m2
- niezależny wjazd na działkę od strony ulicy Głównej
- media w budynku: prąd, woda, kanalizacja, gaz, internet, światłowód

BUDYNEK 2 (Dwa niezależne segmenty w zabudowie bliźniaczej):
- pow. użytkowa segmentu 1: 134 m2
- pow. działki segmentu 1: 287 m2
- pow. użytkowa segmentu 2: 134 m2
- pow. działki segmentu 2: 287 m2
- niezależne wjazdy do każdego z budynków od strony ulicy Makowej
- media w budynku: prąd, woda, kanalizacja, gaz, internet, światłowód

KONSTRUKCJA I WYPOSAŻENIE BUDYNKÓW:
- Ławy Fundamentowe: pełny monolit, wylane betonem klasy C20/25.
- Ściany fundamentowe: wymurowane z bloczka betonowego, ocieplone styropianem i zaizolowane przeciwwilgociowo.
- Ściany nośne: wymurowane z pustaka ceramicznego grubości 25 cm.
- Ściany działowe parteru: wymurowane z pustaka ceramicznego, ściany działowe poddasza z bloczka gazobetonowego.
- Stropy oraz belki nadprożowe: monolityczne, wylane betonem C25/30.
- Konstrukcja dachu: drewniana, odeskowana, pokryta papą bitumiczną.
- Kominy: systemowe renomowanej firmy SCHIEDEL, przystosowane do pieców gazowych.

CENA:
Cena każdego z domów po doprowadzeniu do stanu deweloperskiego to 850 000 zł.
Jest również możliwość kupna domów w obecnym stanie i samodzielnego dokończenia budowy.

W celu uzyskania dodatkowych informacji zachęcamy do kontaktu telefonicznego.

  • Oferta z rynku pierwotnego
  • Justynów, gmina Andrespol, powiat łódzki wschodni  
  • Na sprzedaż bliźniak o powierzchni 134 m²  
  • Sizing Streamline Icon: https://streamlinehq.com
    Działka 287 m²  
  • Ogrzewanie gazowe
  • Dach papa
  • Media kanalizacja, gaz
  • Oferta bezpośrednio od właściciela dodana ponad miesiąc temu i zaktualizowana ponad tydzień temu
Ta nieruchomość może być Twoja od.. sprawdź
170000 zł (20%) Okres spłaty: 30 lat

Podobne domy na sprzedaż

10
bliźniak, 5 pokoi Justynów, ul. Piaskowa

700 000

109

5 pok.

Nowoczesny i komfortowy dom dla 4-5 osobowej rodziny. Wybudowany w 2023 roku. Układ pomieszczeń sprzyja komunikacji, a jednoczesnie posiada wydzieloną część intymną, brak jest zbędnych i niewykorzystantch przestrzeni. Strefa dzienna to: salon z kuchnią i jadalnią spiżarnia komfortowa łazienka ...

Zobacz ogłoszenie
12
dom wolnostojący, 4 pokoje Justynów

1 000 000

180

4 pok.

Dom jednorodzinny wolnostojący - Justynów - 180 m² - działka 700 m² Cena: 1 000 000 zł Na sprzedaż dom jednorodzinny wolnostojący, położony w Justynowie, w otoczeniu zabudowy jednorodzinnej. Podstawowe informacje: Rok budowy: lata 80. Elewacja i dach po remoncie: 2018 r. Powierzchnia użytkowa dom...

Zobacz ogłoszenie
1
dom wolnostojący, 6 pokoi Gałków Mały, ul. Borowiecka

890 000

160

6 pok.

Na sprzedaż dom jednorodzinny o powierzchni użytkowej 161.9 m2. W świetnej lokalizacji w Gałkowie Małym przy ul. Borowieckiej 21, otoczony zielenią w pobliżu lasu. Niedaleko znajduje się przystanek autobusowy i stacja PKP. Usytuowany ok. 1500m od sklepów, apteki, przychodni lekarskiej, kościoła, szk...

Zobacz ogłoszenie
9
dom wolnostojący, 4 pokoje Bedoń Przykościelny

900 000

113

4 pok.

Sprzedam dom parterowy w urokliwym miejscu. LOKALIZACJA: - Spokojna okolica. - Dom przy lasku, parku z placem zabaw. - Niedaleko autostrady. - Blisko do stacji kolejowej, z której dojazd do Łodzi Fabrycznej to 15 minut. - Blisko przystanek autobusowy. NIERUCHOMOŚĆ: - 4 pokoje. - Duża łazienka. - O...

Zobacz ogłoszenie
6
dom wolnostojący, 4 pokoje Różyca

795 000

90

4 pok.

Witam, Do zaoferowania mam piękny dom parterowy o powierzchni zabudowy 111m² oraz powierzchni użytkowej ok 90 m² zbudowany na bazie projektu Dom w Kruszczykach 22, firmy Archon, składający się z 3 pokoi, dużego salonu z jadalnią, kuchni, 2 łazienek, pomieszczenia technicznego (kotłowni, pralni) ora...

Zobacz ogłoszenie
17
bliźniak, 4 pokoje Wiśniowa Góra

950 000

125

4 pok.

Poszukujesz komfortowego miejsca do zamieszkania w spokojnej, zielonej okolicy z doskonałym dojazdem do centrum miasta? Mamy dla Ciebie idealną ofertę! Oferujemy na sprzedaż przestronny dom o powierzchni 125 m², usytuowany na działce o powierzchni 467 m², pełnej zieleni i zapewniającej prywatność. ...

Zobacz ogłoszenie