Dom na sprzedaż bez pośredników
Krzywiec  

bliźniak Krzywiec. Zdjęcie 1

Dom na sprzedaż bez pośredników Krzywiec

839 000
6 454 zł/m²
130
Krzywiec - lokalizacja przybliżona
Bezpośrednio od właściciela

Jeśli nie potrzebujesz pośrednika, zaoszczędzisz około 25 200 zł. Potrzebujesz wsparcia? Skorzystaj z pomocy agenta.

Na sprzedaż OSTATNI DOM 130m2 w stylu nowoczesnej STODOŁY.

Dom z działką o powierzchni 513m2 !!!

Domy wykonane z cegły leier 25P+W, ocieplone styropianem 20cm. Na zewnątrz tynk silikonowo - silkatowy, połączony z deską kompozytową drewnianą. Dach wykonany z blachy płaskiej na rąbek. Okna trzyszybowe firmy Drutex.

W środku wykonano instalację elektryczną oraz hydrauliczną. Rozprowadzony został internet, alarm oraz TV. W domu zostały wykonane tynki gipsowe oraz wylewki. Na górze płyty karton-gips, ocieplone PODWÓJNIE wełną mineralną.

Dom o podwyższonym standardzie deweloperskim - ogrzewanie podłogowe w całym budynku.

Ogrzewanie POMPĄ CIEPŁA Kaisai 7 kW SPLIT.

Dookoła domu została ułożona kostka brukowa imitująca płyty tarasowe (podjazd oraz tarasy).

Zostało wykonane ogrodzenie panelowe firmy WIŚNIOWSKI, ocynkowane i malowane proszkowo.

Bramy garażowe wyposażone w silnik, bramy wjazdowe z możliwością podłączenia automatu.

Doprowadzone zostały media: woda, prąd.

Kanalizacja - szambo 10m3.

Na dom wystawiana faktura VAT. Podana cena brutto.

Kupujący zwolniony z opłaty PCC 2%.

DOMY GOTOWE !!!

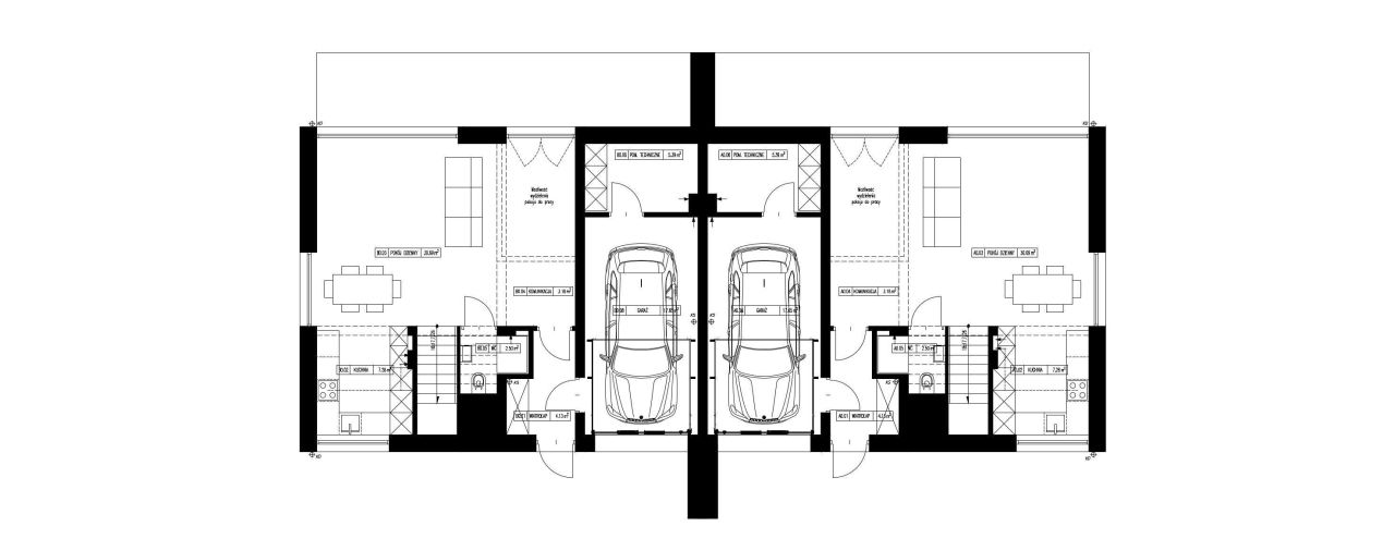
Parter:
1. Wiatrołap 4,13 m²
2. Hol + schody 9,83 m²
3. Kuchnia 7,28 m²
4. Pokój dzienny 30,69 m²
5. Łazienka 2,50 m²
6. Kotłownia 5,39 m²
7. Garaż 17,65 m²

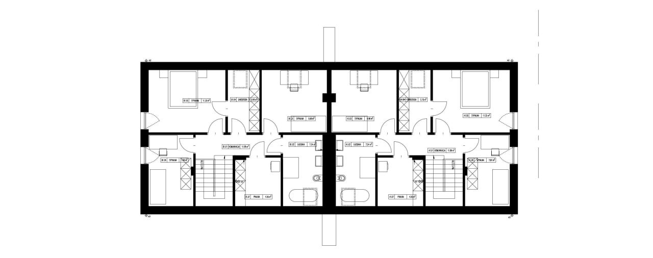
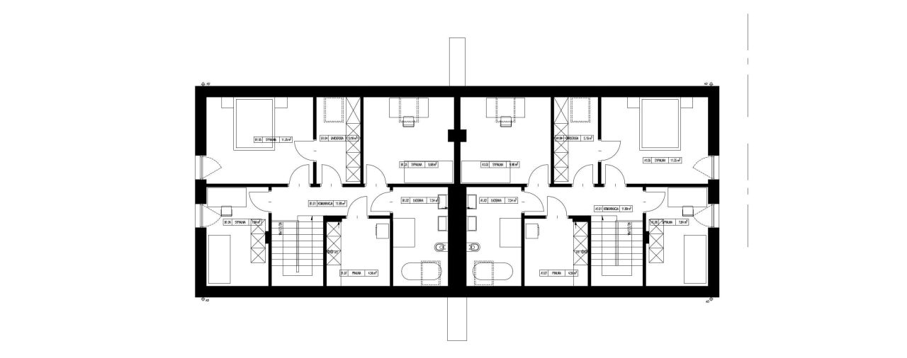
Poddasze:
1. Korytarz 11,59 m²
2. Sypialnia 11,35 m²
3. Sypialnia 9,98 m²
4. Sypialnia 7,84 m²
5. Garderoba 5,16 m²
6. Pralnia 4,56 m²
7. Łazienka 7,54 m²

CENA 839 000 zł brutto DO NEGOCJACJI !!!

Kontakt: Tomek, sprzedaż bezpośrednia !!!

  • Oferta z rynku pierwotnego
  • Krzywiec, gmina Aleksandrów Łódzki, powiat zgierski  
  • Na sprzedaż bliźniak o powierzchni 130 m²  
  • Sizing Streamline Icon: https://streamlinehq.com
    Działka 513 m²  
  • Budynek w stanie do wykończenia  
  • Taras, garaż  
  • Ogrzewanie pompa ciepła
  • Materiał budowy cegła
  • Dach blacha
  • Oferta bezpośrednio od właściciela dodana ponad tydzień temu i zaktualizowana wczoraj
Ta nieruchomość może być Twoja od.. sprawdź
168000 zł (20%) Okres spłaty: 30 lat

Podobne domy na sprzedaż

19
budynek wielorodzinny, 7 pokoi Aleksandrów Łódzki, ul. Krótka

789 000

170

7 pok.

Do sprzedania dom w bardzo dobrej lokalizacji. W Aleksandrowie Łódzkim, bardzo blisko Łodzi, a zarazem przy bocznej, spokojnej uliczce. Życzliwi i bezproblemowi sąsiedzi. Nieruchomość składa się z dwóch budynków: domu mieszkalnego o powierzchni 170m2, oraz budynku gospodarczego - 288m2 (wykorzystyw...

Zobacz ogłoszenie
8
dom wolnostojący Placydów

870 000

130

Sprzedam dom jednorodzinny, parterowy o powierzchni użytkowej 130 m2 i powierzchni działki 800 m2. Dom w stanie deweloperskim. Media: - Szambo betonowe. - Woda z sieci miejskiej. - Prąd. - 100% ogrzewania podłogowego, kocioł na pellet (instalacja w pełni kompletna). Posesja jest ogrodzona (płot b...

Zobacz ogłoszenie
13
dom szeregowy, 4 pokoje Aleksandrów Łódzki, ul. Kalinowa

779 000

110

4 pok.

Sprzedaż bezpośrednia od właściciela. Prezentujemy bardzo funkcjonalny, nowy dom w zabudowie szeregowej w kameralnym osiedlu - idealny dla rodziny 4-6 osobowej! Dom o powierzchni 110 m², środkowy, wybudowany z wysokiej jakości materiałów, takich jak beton komórkowy i dach z dachówki. Posiada 4 pok...

Zobacz ogłoszenie
8
dom wolnostojący Kolonia Brużyca

850 000

130

Na sprzedaż: Dom z dużą działką i infrastrukturą inwestycyjną, Kolonia Brużyca, gm. Aleksandrów Łódzki. Oferuję do sprzedaży nieruchomość zabudowaną domem jednorodzinnym o powierzchni użytkowej ok. 130 m², położoną na działce o powierzchni 1 618 m². DOM (rok budowy: 2002 r.) • Parter ok. 60 m²: sa...

Zobacz ogłoszenie
3
dom wolnostojący, 3 pokoje Krzywiec, ul. Konstantego Okołowicza

650 000

120

3 pok.

Dom caloroczny 120m z dzialka 2500 m.Murowany,podpiwniczony ze strychem uzytkowym.Dach dwuspadowy pokryty blacha,sciany ocieplone styropianem wewnatrz muru.Kuchnia,lazienka i 3 pokoje ,mozna zrobic 4 pokoj.Media:woda z wodociagu,oczyszczalnia ekologiczna,przylacze gazu sieciowego oraz przylacze elek...

Zobacz ogłoszenie
20
dom wolnostojący, 4 pokoje Aleksandrów Łódzki, ul. Placydowska

870 000

130

4 pok.

Dom bez barier na granicy miasta i natury! Marzysz o spokojnym życiu w nowoczesnym, parterowym domu, gdzie z jednej strony masz wygody miasta, a z drugiej — zieleń, łąki i las? Ten nowy, przestronny dom o powierzchni 130 m² zlokalizowany w Aleksandrowie Łodzkim, to idealne połączenie funkcjonalności...

Zobacz ogłoszenie