Nieruchomość komercyjna do wynajęcia bez pośredników
ul. Jana Kasprowicza Warszawa Bielany

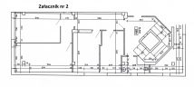
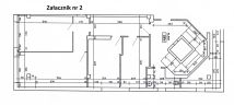
Biuro Warszawa Bielany, ul. Jana Kasprowicza. Zdjęcie 1

Nieruchomość komercyjna do wynajęcia bez pośredników Warszawa Bielany ul. Jana Kasprowicza

6 500
65 zł/m²
100
Warszawa Bielany, Jana Kasprowicza - lokalizacja przybliżona
Bezpośrednio od właściciela

Do wynajęcia powierzchnia biurowa w budynku tuż przy stacji metra Stare Bielany. Różne powierzchnie od 100 m² do 420 m². Cena 65 zł netto za m² + opłaty eksploatacyjne.

  • ul. Jana Kasprowicza, Warszawa Bielany  
  • Do wynajęcia biuro o powierzchni 100 m²  
  • Dostępne do wynajęcia od zaraz
  • Oferta bezpośrednio od właściciela dodana ponad tydzień temu

Podobne nieruchomości komercyjne na wynajem

3
Lokal Warszawa Bielany, ul. Josepha Conrada

7 995

50

Oferuję lokal usługowy na wynajem o powierzchni 50 m². Znajduje się na parterze w budynku wolnostojącym. Lokal jest dostępny od 1 grudnia 2025 roku. Wyposażony jest w witrynę, ogrzewanie oraz dostęp do mediów: woda, prąd i kanalizacja. Dodatkowo, lokal posiada rolety zabezpieczające oraz parking. ...

Zobacz ogłoszenie
5
Lokal Warszawa Bielany, ul. Stefana Żeromskiego

6 100

40

Do wynajęcia: lokal handlowo-usługowy o pow.40 m2 na parterze budynku mieszkalnego na warszawskich Bielanach, w okolicach ul. Żeromskiego poleca Agencja Nieruchomości Property Office Bez prowizji Lokal handlowo-usługowy z możliwością prowadzenia gastronomii lub salonu kosmetycznego. Open space z łaz...

Zobacz ogłoszenie
4
Lokal Warszawa Bielany, al. Zjednoczenia

7 000

50

Odstąpię gotowy, działający biznes - Bistro w sercu Starych Bielan! Lokal, z odebraną kuchnią, sprzętem, meblami, meblami ogrodowymi, zastawą i wszystkim, co potrzebne do prowadzenia biznesu gastronomicznego. Lokal 50m2 na Starych Bielanach, przy Al. Zjednoczenia, tuż obok metra i uczelni. Składa ...

Zobacz ogłoszenie
12
Lokal Warszawa Bielany, ul. Josepha Conrada

6 950

170

Odstąpią lokal pod kuchnię cateringową / piekarnię tortilla. W lokalu była prowadzona piekarnia która specjalizuje się w wypiekach lawasza (tortilla) i bułeczek dla kebabu. Lokal mieści się w Warszawie (Warszawa - Bielany). Lokal użytkowy ma powierzchnię 170 m2 z wydzieloną łazienką (2 szt). W l...

Zobacz ogłoszenie
8
Biuro Warszawa Bielany, ul. Arkuszowa

5 500

105

Proszę o kontakt po godzinie 15 lub wiadomość SMS. Oddzwonię. W tym ogłoszeniu oferuję najem 105m2 bliźniak na Bielanach, Arkuszowa 40. Dom składa się z czterech pokoi, łazienki, WC, kuchni i przedpokoju. Wnętrza wykończone są w wysokim standardzie, z drewnianymi drzwiami w całym domu. Poprzez dom...

Zobacz ogłoszenie
8
Biuro Warszawa Bielany, ul. Stefana Żeromskiego

5 800

62

Do wynajęcia: lokal biurowy o pow.62 m2 na parterze budynku mieszkalnego na warszawskich Bielanach, w okolicach ul. Żeromskiego poleca Agencja Nieruchomości Property Office  Bez prowizji Oferowany lokal znajduje się na wysokim parterze budynku mieszkalnego. Powierzchnia w podziale na : dwa duże poko...

Zobacz ogłoszenie