Nieruchomość komercyjna na sprzedaż bez pośredników
ul. Dworcowa Gliwice Śródmieście

Biuro Gliwice Śródmieście, ul. Dworcowa. Zdjęcie 1

Nieruchomość komercyjna na sprzedaż bez pośredników Gliwice Śródmieście ul. Dworcowa

2 435 400
9 900 zł/m²
246
Gliwice Śródmieście, Dworcowa - lokalizacja przybliżona
Bezpośrednio od właściciela

Jeśli nie potrzebujesz pośrednika, zaoszczędzisz około 73 100 zł. Potrzebujesz wsparcia? Skorzystaj z pomocy agenta.

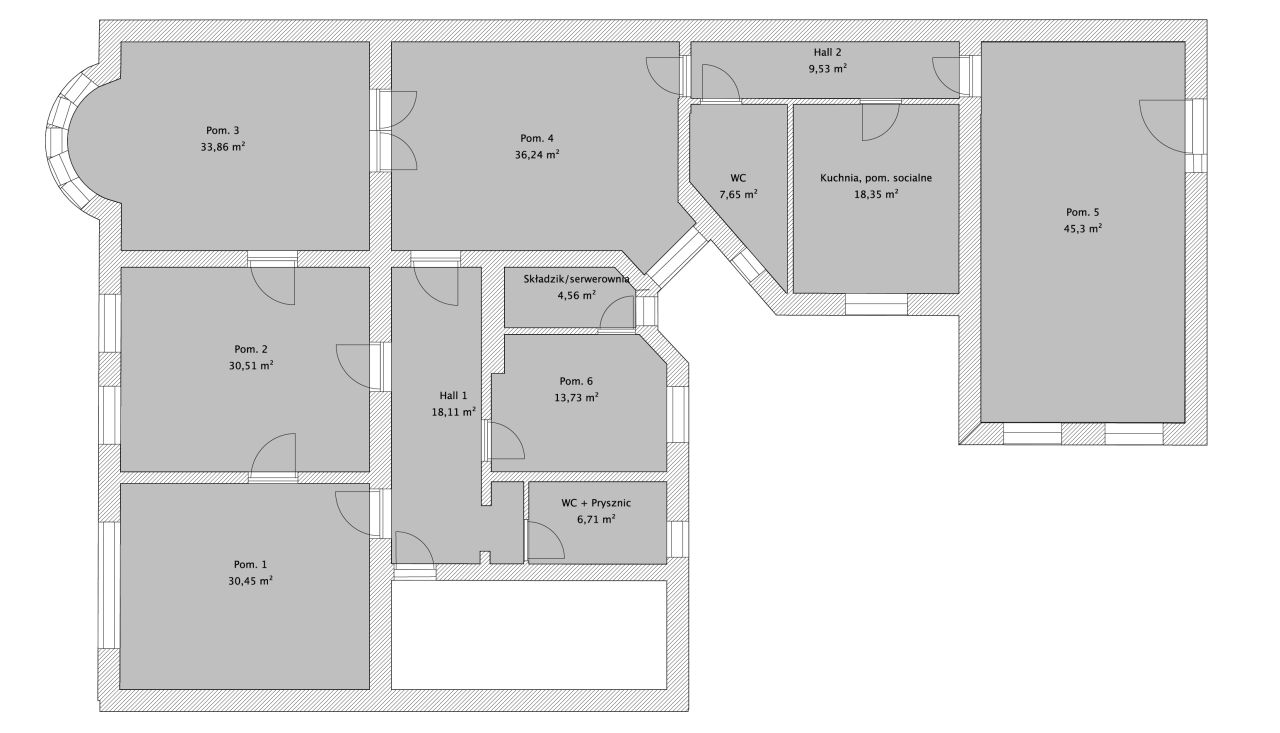
Lokal biurowy, idealny na kancelarię, biuro rachunkowe, szkolenia, coworking, gabinety lekarskie (na parterze znajduje się przychodnia) lub apartamenty:
- I piętro (lokal zajmuje całe piętro),
- 5 niezależnych pomieszczeń biurowych (13m2, 30m2*3, 45m2) + 1 przechodnie (36m2),
- hall wejściowy z zaplanowanym stanowiskiem recepcyjnym i aneksem kuchennym, ze względu na swój rozmiar (18m2) może także służyć jako poczekalnia,
- duża umeblowana kuchnia
- toalety *2, w tym jedna z kabiną prysznicową,
- składzik/serwerownia,
- okna plastikowe, poza zabytkowym oknem witrażowym w pom 3.
- estetyczna, niedawno remontowana, klatka schodowa,
- klimatyzacja,
- okablowanie sieci komputerowej kat 5e, z przygotowanymi miejscami pod puszki podłogowe,
- okablowanie przygotowane pod monitoring i system alarmowy,
- system automatyki budynkowej (tzw. smart home) - sterowanie ogrzewaniem i oświetleniem, z możliwością rozbudowy,
- instalacja elektryczna przygotowana do zainstalowania niezależnych podliczników do poszczególnych pomieszczeń,
- wentylacja mechaniczna z rekuperacją - rozprowadzona, przygotowana do zainstalowania centrali wentylacyjnej,
- ogrzewanie centralne miejskie - niezależny licznik ciepła dla lokalu,
- podłogi - panele podłogowe Krono, AC6
- sufity obniżone na 2,8m
- ładna klatka schodowa, po remoncie,
- do lokalu przynależy 1 miejsce parkingowe na podwórzu kamienicy, wjazd zamknięty szlabanem, w okolicy parkingi miejskie oraz parking strzeżony (100m)

Własna domena internetowa i strona www w pakiecie - dworcowa43.pl

Lokal przeszedł remont kapitalny z wymianą tynków, podłóg i wszystkich instalacji etapowo od 2020-2023 r.

Widniejące na zdjęciach meble biurowe mogą zostać na wyposażeniu.

  • ul. Dworcowa, Gliwice Śródmieście  
  • Na sprzedaż biuro o powierzchni 246 m²  
  • Cena do negocjacji  
  • Oferta bezpośrednio od właściciela dodana ponad miesiąc temu
Ta nieruchomość może być Twoja od.. sprawdź
487000 zł (20%) Okres spłaty: 30 lat

Podobne nieruchomości komercyjne na sprzedaż

4
Lokal Gliwice, ul. Krótka

1 999 999

176

Sprzedam lokal użytkowy wraz z najemcą znajdujący się na starówce Gliwice koło Rynku o powierzchni 176,34 , lokal dwupoziomowy wejście do lokalu od ulicy Krótkiej 

Zobacz ogłoszenie
1
Lokal Gliwice

1 490 000

400

Na sprzedaż oferujemy nieruchomość inwestycyjną zlokalizowaną przy w Gliwicach. Działka o powierzchni 784 m² zabudowana jest trzykondygnacyjnym budynkiem o powierzchni ok. 400 m², częściowo podpiwniczonym. Budynek został ocieplony, wymieniono dach, okna oraz zamontowano instalację fotowoltaiczną. W...

Zobacz ogłoszenie
8
Hala/magazyn Gliwice Sośnica, ul. Stefana Żeromskiego

3 395 000

1152

Do sprzedania działka inwestycyjna Gliwice-Sośnica o powierzchni 5 851 m2 przy ulicy Żeromskiego 52. Zgodnie z aktualnie obowiązującym miejscowym planem zagospodarowania przestrzennego, zatwierdzonym Uchwałą Rady Miejskiej w Gliwicach Nr XXXV/1062/2010 z dnia 10 listopada 2010 r. w sprawie miejscow...

Zobacz ogłoszenie
5
Lokal Gliwice Śródmieście, ul. Zwycięstwa

3 000 000

208

Główna ulica handlowa miasta. Odległość od Rynku czy też samego Urzędu Miasta wynosi ok. 200-250 m, od wjazdu na Drogową Trasę Średnicową (droga łącząca główne miasta aglomeracji) wynosi około 500 m, natomiast od najbliższych przystanków komunikacji miejskiej około 20 m i około 200 m od Urzędu Miast...

Zobacz ogłoszenie
4
Lokal Gliwice, ul. bł. Czesława

2 350 000

400

SPRZEDAM OBIEKT Z OGROMNYM POTENCJAŁEM. Nieruchomość ok. 400 m2 w na działce niecałe 1000m2. Budynek piętrowy, murowany z cegły nadający się na prowadzenie wszelkiej działalności może być siedziba firmy, biurowiec, przychodnia, zakład produkcyjny, usługowy, magazyn, , przedszkole, żłobek, szkoła ję...

Zobacz ogłoszenie
10
Lokal Gliwice Śródmieście, ul. Kaczyniec

1 650 000

252

Na sprzedaż lokal użytkowy o powierzchni 252,46 m² usytuowany jest od frontu na parterze kamienicy przy ul. Kaczyniec 30 w Gliwicach, w ścisłym centrum miasta, na  Starówce, 250 m od Rynku. Lokal nadaje się m.in. na kancelarię, biuro, gabinety lekarskie. Lokal składa się z 10 pomieszczeń i korytarz...

Zobacz ogłoszenie