Nieruchomość komercyjna na sprzedaż bez pośredników
ul. Warszawska Siewierz

Hala/magazyn Siewierz, ul. Warszawska. Zdjęcie 1

Nieruchomość komercyjna na sprzedaż bez pośredników Siewierz ul. Warszawska

4 500 000
646 zł/m²
6967
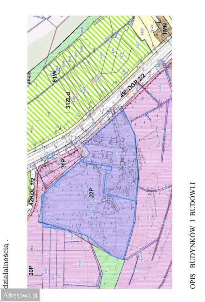
Siewierz, Warszawska - lokalizacja przybliżona
Bezpośrednio od właściciela

Jeśli nie potrzebujesz pośrednika, zaoszczędzisz około 135 000 zł. Potrzebujesz wsparcia? Skorzystaj z pomocy agenta.

Nieruchomość przemysłowa Siewierz ulica Warszawska 89. Bezpośredni zjazd z E75. Użytkowanie wieczyste. Cena netto.  Własne ujęcie wody. Stacja trafo.

  • ul. Warszawska, Siewierz, powiat będziński  
  • Na sprzedaż hala/magazyn o powierzchni 6967 m²  
  • Oferta bezpośrednio od właściciela dodana ponad miesiąc temu
Ta nieruchomość może być Twoja od.. sprawdź
900000 zł (20%) Okres spłaty: 30 lat

Podobne nieruchomości komercyjne na sprzedaż

22
Hotel/pensjonat Będzin Gzichów, ul. Partyzantów

3 950 000

580

Dobrze prosperujący obiekt hotelowy z zapleczem gastronomicznym, własnym parkingiem,własną produkcją energii elektrycznej /fotowoltaika,solary,pompa ciepła,klimatyzacja /działka 804 m2 sprzedam. Powód sprzedaży - od 15 lat mieszkam w Hiszpanii gzie prowadzę podobną działalność. Zdięcia oglądać na Bo...

Zobacz ogłoszenie
13
Hotel/pensjonat Siewierz Sulików

3 300 000

740

Na sprzedaż prężnie działający i w pełni wyposażony obiekt agroturystyczny w Siewierzu, zaledwie 12 km od międzynarodowego lotniska Katowice-Pyrzowice. To doskonała lokalizacja w sąsiedztwie aglomeracji śląskiej, z dogodnym dojazdem do miast takich jak: Katowice, Dąbrowa Górnicza, Sosnowiec, Będzin...

Zobacz ogłoszenie