Nieruchomość komercyjna na sprzedaż bez pośredników
Orłowice  

Lokal Orłowice. Zdjęcie 1

Nieruchomość komercyjna na sprzedaż bez pośredników Orłowice

400 000
500 zł/m²
800
Orłowice - lokalizacja przybliżona
Bezpośrednio od właściciela

Jeśli nie potrzebujesz pośrednika, zaoszczędzisz około 12 000 zł. Potrzebujesz wsparcia? Skorzystaj z pomocy agenta.

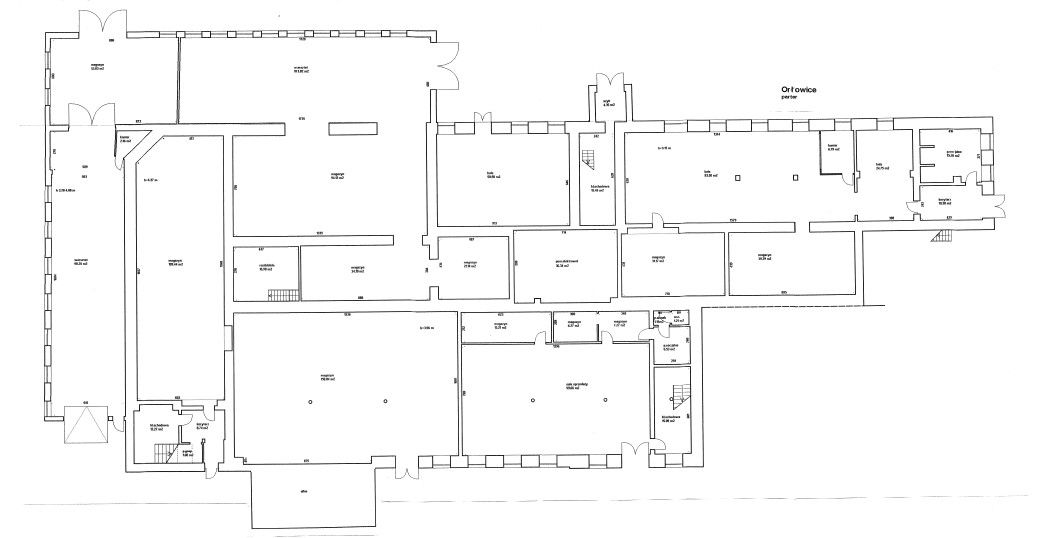
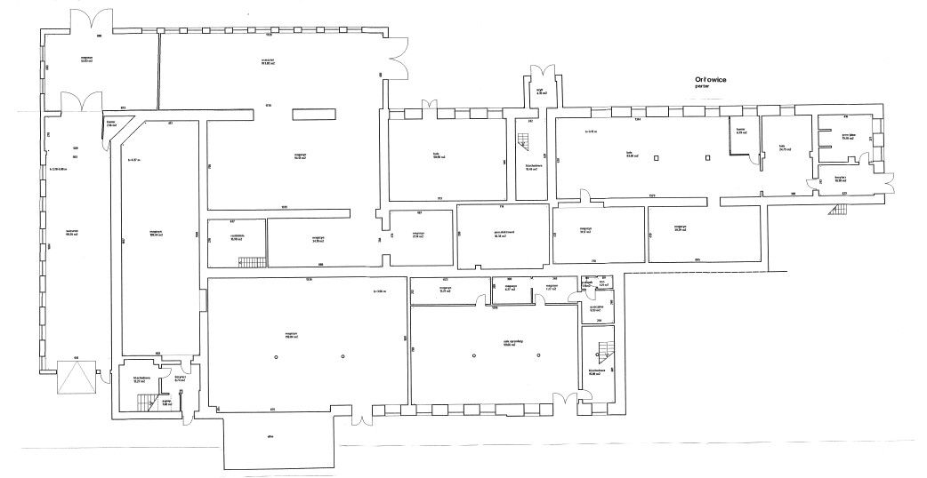
Charakterystyka lokalu:
1 pomieszczenie na 1 piętrze pow. 800m² ,

Lokal może być zaadoptowany pod produkcję , magazyny lub warsztat itp.

wejście z ulicy,
instalacje: instalacja elektryczna, okna: stalowe, brama wjazdowa

Jest to część dużego budynku, w którym jest 12 różnych pomieszczeń na 2 kondygnacjach od 100m² do 1000m²

Sprzedam budynek w całosci, bądź poszczególne lokale , które mają osobne księgi wieczyste.
Zakup pomieszczeń w cenie od 400 do 1000 zł za 1m2 w zależności od powierzchni.
Możliwa opcja wynajmu z wykupem .
Lokal do remontu i własnej adaptacji - cena w ogłoszeniu dotyczy największej hali o pow. 800m2, która mieści się na pietrze.
Rozkład lokalu:
Budynek piętrowy , rozkład jak w załączonych planach
piwnica 200 m²
Media:
prąd, woda, siła, kanalizacja

Lokalizacja
Adres:
Orłowice 66G, koło Świeradów Zdrój
Otoczenie:
obiekty przemysłowe, rzeka, góry, cicho

  • Orłowice, gmina Mirsk, powiat lwówecki  
  • Na sprzedaż lokal o powierzchni 800 m² na działce o powierzchni 100 m²  
  • Oferta bezpośrednio od właściciela dodana ponad miesiąc temu
Ta nieruchomość może być Twoja od.. sprawdź
80000 zł (20%) Okres spłaty: 30 lat

Podobne nieruchomości komercyjne na sprzedaż

17
Lokal Lwówek Śląski, pl. Wolności

365 000

60

Lokal handlowo-gastronomiczno-usługowy położony jest w ścisłym centrum Lwówka Śląskiego, przy pl. Wolności 12. Od 2007 roku jestem jedynym właścicielem tego lokalu o powierzchni 60,30 m2. Składa się z: sali sprzedaży, pomieszczenia magazynowego (korytarz) i pomieszczenia socjalnego + WC. Obiekt posi...

Zobacz ogłoszenie
3
Hala/magazyn Lubomierz

429 000

1000

Sprzedam działkę 60 arów z wiatą , dwoma magazynami około 1000 metrów kwadratowych i wagą po składzie opału i materiałów budowlanych w Lubomirzu.

Zobacz ogłoszenie
3
Nieruchomość komercyjna Pławna Górna

450 000

280

Witam. Mam do sprzedania działające Muzeum Przesiedleńców . Są to dwa wolnostojące budynki . Główny budynek jest odrestaurowany w bardzo solidny sposób.Mur pruski, sklepienia łukowe i wiele innych. Na parterze znajduje się 5 pomieszczeń oraz mała piwnica, na pierwszym pietrze jest 6 pomieszczeń i ho...

Zobacz ogłoszenie
3
Hala/magazyn Mirsk

330 000

200

Przedmiotem sprzedaży jest HALA/WARSZTAT i DZIALKA/ogrodzona . W skład wchodzi (hala/warsztat 200m2 + grunt, już w trakcie podziału ) _ Działka, powierzchnia jak zaznaczenie na ostatnim zdjęciu _ Zdjęcie poglądowe/przykładowe podziału. Lokalizacja prawidłowa, dokładna jak foto z drona. Prze...

Zobacz ogłoszenie