Mieszkanie do wynajęcia bez pośredników
ul. Wilcza Warszawa Śródmieście

NOWA OFERTA
Mieszkanie 3-pokojowe Warszawa Śródmieście, ul. Wilcza. Zdjęcie 1

Mieszkanie do wynajęcia bez pośredników Warszawa Śródmieście ul. Wilcza · 5 piętro

4 500
68 zł/m²
66
3 pok.
Warszawa Śródmieście, Wilcza - lokalizacja przybliżona
Bezpośrednio od właściciela

Wynajmę od zaraz! Świetnie skomunikowane, 66-metrowe mieszkanie w samym centrum miasta, ul. Wilcza przy ul. Emilii Plater. Rok budowy 1995.

Czynsz 4.500 zł plus czynsz administracyjny wg rachunku od wspólnoty, obejmujący ryczałtowe koszty, m.in. za CO, ciepłą i zimną wodę, ochronę fizyczną 24/7 (na chwilę obecną 2.182 zł).

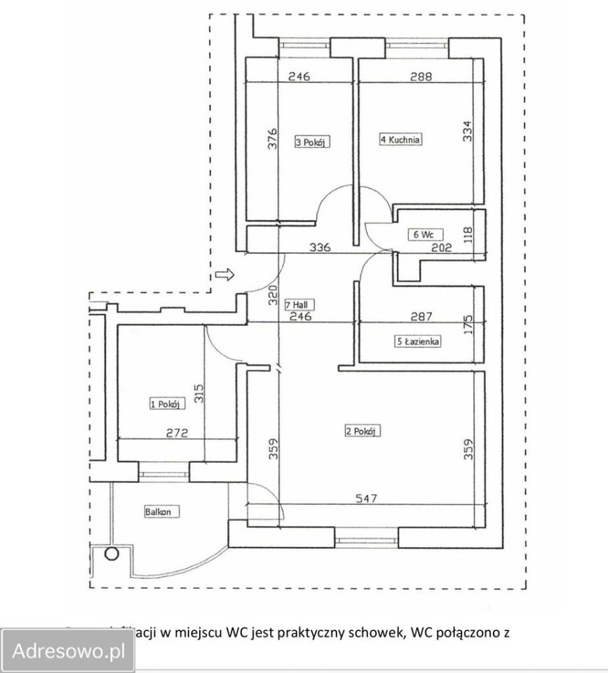
Trzy pokoje, duża widna kuchnia, przestronny hol, balkon. Oddzielna garderoba i dwie wbudowane szafy typu komandor zapewniają bardzo dużo miejsca do przechowywania.

Mieszkanie dwustronne, orientacja N-S, co daje stały dostęp światła i możliwość przewietrzenia pomieszczeń. Dzięki oknom wychodzącym na wewnętrzny dziedziniec, mieszkanie jest ciche.

Budynek z windą, strzeżony (stała ochrona). Na każdym piętrze jedynie dwa mieszkania, co daje rzadki komfort. Do mieszkania przynależy piwnica. Podziemne miejsce parkingowe z wydzielonym podestem dla rowerów (uchwyty) - możliwe do wynajęcia za dodatkową opłatą.

W promieniu kilku minut spacerem znane i lubiane restauracje, Hala Koszyki, Hotel Nobu. 280 m - przystanek tramwajowy. Metro, autobusy, hulajnogi i ścieżki rowerowe - wszystko pod ręką.

Mieszkanie przed 3 laty przeszło generalny remont - wymiana instalacji elektrycznej, hydraulicznej, całkowity remont kuchni i łazienki, wymiana okien na dźwiękoszczelne, cyklinowanie parkietu. Mieszkanie było przygotowane "pod siebie", ostatnie lata zamieszkiwane przez Właścicieli. Mieszkanie wyposażone w meble.

Do wynajęcia mieszkanie w całości. Wynajem w formie umowy najmu okazjonalnego lub dla firmy.

  • Do wynajęcia mieszkanie 3-pokojowe o powierzchni 66 m² balkon, piwnica, garaż/miejsce parkingowe, osobna kuchnia
  • 5 piętro w 6-piętrowej kamienicy z windą
  • Dostępne do wynajęcia od 2026-03-06
  • Warszawa, Śródmieście ul. Wilcza
  • Mieszkanie w stanie do zamieszkania okna plastikowe
  • Opłaty 2200 zł/miesiąc
  • Money Wallet 1 Streamline Icon: https://streamlinehq.com
    Kaucja 6000 zł
  • Oferta bezpośrednio od właściciela dodana dodana dzisiaj

Podobne mieszkania na wynajem

12
Mieszkanie 2-pokojowe Warszawa Śródmieście, ul. Hoża

4 750

40

2 pok.

(English below) Do wynajęcia 2-pokojowe mieszkanie przy ul. Hożej, w samym centrum Warszawy. 40,4 m² w kamienicy z windą, na 3 piętrze. Wysokość pomieszczeń 3,8 m daje poczucie przestrzeni i światła, rzadkie w tej części miasta. Układ mieszkania jest funkcjonalny: salon z aneksem kuchennym oraz o...

Zobacz ogłoszenie
9
Mieszkanie 2-pokojowe Warszawa Śródmieście, ul. Ogrodowa

4 500

49

2 pok.

Biuro nieruchomości MD Home ma przyjemność zaprezentować w piękne 2 pokojowe mieszkanie o powierzchni 50m2 znajdujący się w prestiżowej lokalizacji przy ul. Ogrodowej na pograniczu Śródmieścia i Woli. Lokal usytuowany jest na 2-piętrze w 12 piętrowym apartamentowcu z windą. Mieszkanie znajd...

Zobacz ogłoszenie
18
Mieszkanie 2-pokojowe Warszawa Śródmieście, ul. Aleje Jerozolimskie

4 500

58

2 pok.

Wyjątkowa propozycja dla osób pragnących w pełni korzystać z wszelkich możliwości i udogodnień, jakie daje zamieszkanie w centrum stolicy i jednocześnie oczekujących komfortu, wyciszenia i spokoju po pełnym wyzwań dniu. Doskonale skomunikowane z każdą częścią miasta, z szerokim zapleczem handlowo-u...

Zobacz ogłoszenie
12
Mieszkanie 2-pokojowe Warszawa Śródmieście, ul. Długa

4 500

46

2 pok.

If you need an offer in a language other than Polish, please contact us. MIESZKANIE PRZY OGRODZIE KRASIŃSKICH | EKSKLUZYWNA OKOLICA | 2 POKOJE | KAMIENICA FORESTIERA | MURANÓW |  Prezentujemy Państwu niezwykle klimatyczne i przestronne mieszkanie - 47 metrów zaprojektowanej i urządzonej przestrzen...

Zobacz ogłoszenie
14
Mieszkanie 3-pokojowe Warszawa Śródmieście, ul. Zygmunta Słomińskiego

4 600

68

3 pok.

Na wynajem: Funkcjonalny lokal biurowy po generalnym remoncie w prestiżowej lokalizacji - Śródmieście / Dworzec Gdański / Arkadia Z przyjemnością prezentuję ofertę wynajmu lokalu biurowego o powierzchni 93,42 m², położonego przy ul. Zygmunta Słomińskiego 17, w bezpośrednim sąsiedztwie metra Dworzec ...

Zobacz ogłoszenie
9
Mieszkanie 2-pokojowe Warszawa Śródmieście, ul. Żurawia

4 500

56

2 pok.

Do wynajęcia: mieszkanie 2-pokojowe przy ul. Żurawiej 2, Warszawa Lokalizacja: ul. Żurawia 2, 3. piętro w narożnej kamienicy z 1865-66 roku (projekt Adolf Woliński). Budynek przeszedł w 2025 roku remont elewacji oraz klatek schodowych. Mieszkanie: • Powierzchnia: 56,6 m² • Układ: salon + sypialnia...

Zobacz ogłoszenie