Mieszkanie do wynajęcia bez pośredników
ul. Synów Pułku 2 Warszawa Bemowo

NOWA OFERTA
Mieszkanie 2-pokojowe Warszawa Bemowo, ul. Synów Pułku. Zdjęcie 1

Mieszkanie do wynajęcia bez pośredników Warszawa Bemowo ul. Synów Pułku 2 · 6 piętro

3 100
103 zł/m²
30
2 pok.
Warszawa Bemowo, Synów Pułku 2 - lokalizacja dokładna
Bezpośrednio od właściciela

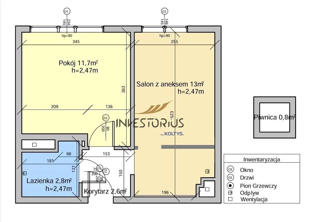
Do wynajęcia 2-pokojowe mieszkanie o powierzchni 30 m2, zlokalizowane przy ulicy Synów Pułku 2 na warszawskich Jelonkach.

Mieszkanie znajduje się na 6. piętrze w 10-piętrowym bloku.

Składa się z:
- małej, oddzielnej kuchni (około 5 m2)
- dwóch oddzielnych pokoi (około 11 m2 i 9 m2)
- łazienki z wanną
- przedpokoju

Mieszkanie jest wyposażone i umeblowane zgodnie z widocznym na zdjęciach stanem.

Komunikacja:
Przystanek autobusowy i tramwajowy (P+R Połczyńska lub Synów Pułku) znajduje się w odległości około 400 metrów od budynku, zapewniając bezpośredni dojazd do Śródmieścia.
Stacja metra Bemowo oddalona jest o 3 przystanki tramwajowe.

Rodzaj umowy: umowa najmu okazjonalnego.

Koszty:
Łączny koszt wynajmu wynosi 3100 zł miesięcznie.
Czynsz najmu: 2300 zł + czynsz do spółdzielni dla 1 osoby: 800 zł (w tym opłaty za zużycie prądu i gazu do 100 zł miesięcznie).
Kaucja: 3100 zł.

Dodatkowe informacje:
Zwierzęta nie są akceptowane. Mieszkanie przeznaczone dla osób niepalących.

  • Do wynajęcia mieszkanie 2-pokojowe o powierzchni 30 m² osobna kuchnia
  • 6 piętro w 10-piętrowym bloku  
  • Warszawa, Bemowo ul. Synów Pułku
  • Money Wallet 1 Streamline Icon: https://streamlinehq.com
    Kaucja 3100 zł
  • Oferta bezpośrednio od właściciela dodana dodana dzisiaj

Podobne mieszkania na wynajem

12
Mieszkanie 2-pokojowe Warszawa Bemowo, ul. Bolkowska

2 900

38

2 pok.

Mieszkanie do wynajęcia na Bemowie - Górcach, 38mkw, 9 piętro z windą. Składa się z przedpokoju, oddzielnej kuchni, łazienki, pokoju dziennego oraz aneksu sypialnego, garderoby i balkonu. Świetna lokalizacja : stacja Metro Bemowo -200 m oraz dobra komunikacja autobusowa i tramwajowa, Lidl - 100 m, Ż...

Zobacz ogłoszenie
15
Mieszkanie 2-pokojowe Warszawa Bemowo, ul. Rozłogi

3 000

41

2 pok.

Witam, BIUROM NIERUCHOMOŚCI DZIĘKUJEMY - WYNAJEM BEZPOŚREDNI. Do wynajęcia mieszkanie 2-pokojowe o pow. 41m2. Salon z aneksem kuchennym, sypialnia, łazienka i przedpokój. Do mieszkania przynależy miejsce postojowe w garażu podziemnym, które można dodatkowo wynająć. Mieszkanie do zamieszkania od 1...

Zobacz ogłoszenie
8
Mieszkanie 2-pokojowe Warszawa Bemowo

3 300

33

2 pok.

Oferuję bezpośrednio do wynajęcia nowoczesne mieszkanie o powierzchni 33,3 m2, które znajduje się na 2. piętrze apartamentowca na prestiżowym osiedlu Metro Zachód firmy Dom Development. Okna na południe.. Wyposażenie: - Nowoczesny sprzęt AGD/TV - Klimatyzacja Dodatkowe udogodnienia: - Winda z poz...

Zobacz ogłoszenie
16
Mieszkanie 2-pokojowe Warszawa Bemowo, ul. Szeligowska

2 900

37

2 pok.

Do wynajęcia nowe, umeblowane, dwupokojowe mieszkanie o powierzchni 37m2 wraz z miejscem postojowym oraz komórką lokatorską. Czynsz 2900 pln + opłaty licznikowe oraz czynsz do wspólnoty • Lokalizacja: Bemowo, Chrzanów, ul. Szeligowska 35 • Piętro 2, winda • Ekspozycja wschodnia • Salon z ankesem...

Zobacz ogłoszenie
1
Mieszkanie 2-pokojowe Warszawa Bemowo, ul. Jana Kazimierza

3 100

32

2 pok.

Wynajmę mieszkanie na ul. Jana Kazimierza w nowym budownictwie. W mieszkaniu są 2 pokoje, kuchnia, korytarz, łazienka, 33 m2. Mieszkanie umeblowane. Idealne dla pary lub singla. Okolica cicha i spokojna. Dodatkowo, jeżeli ktoś ma auto, jest możliwość wynajęcia garażu (płatny 250 zł miesięcznie). D...

Zobacz ogłoszenie
7
Mieszkanie 2-pokojowe Warszawa Bemowo, ul. Wrocławska

3 000

33

2 pok.

Wynajmę mieszkanie od 1 lutego 2026r. Liczba pokoi 2 . W dobrej lokalizacji niedaleko metra. Mieszkanie przyjazne dla pary . Czynsz mieszkania 3400 zł plus media plus kaucja.

Zobacz ogłoszenie