Mieszkanie do wynajęcia bez pośredników
ul. Warszawska Sosnowiec Centrum

NOWA OFERTA
Mieszkanie 1-pokojowe Sosnowiec Centrum, ul. Warszawska. Zdjęcie 1

Mieszkanie do wynajęcia bez pośredników Sosnowiec Centrum ul. Warszawska · 1 piętro

1 300
45 zł/m²
29
1 pok.
Sosnowiec Centrum, Warszawska - lokalizacja przybliżona
Bezpośrednio od właściciela

Do wynajęcia słoneczna kawalerka w centrum Sosnowca. Mieszkanie jest po remoncie: łazienka, kuchnia, podłogi, okna, drzwi, sprzęty AGD, meble.
Umeblowane są kuchnia i łazienka. Pokoje do własnej aranżacji.
Mieszkanie idealne dla jednej osoby lub pary.
Mieszkanie gotowe do wprowadzenia się od zaraz.

Wynajem bezpośrednio od wynajmującego, bez dodatkowych opłat dla pośrednika.

Mieszkanie o pow. 29m2 położone w centrum Sosnowca przy ul. Warszawskiej (obok C.H. Plaza).
Budynek posiada monitoring, windę, domofon. Klatka schodowa jest zamykana, a na piętrze znajduje się wspólny korytarz.

Mieszkanie znajduje się na pierwszym, "wysokim" piętrze w budynku po termomodernizacji. Okna wychodzą na południe.

Lokal po remoncie:
- nowe meble w kuchni
- nowe meble w łazience
- nowa wanna
- nowa lodówka oraz pralka
- nowe okna z roletami wyciemniającymi
- na podłogach panele i płytki
- nowe drzwi antywłamaniowe

We wnęce w przedpokoju znajduje się szafa z przesuwanymi drzwiami.

Ogrzewanie: Miejskie centralne ogrzewanie.
Gaz: Zasilanie miejskie.
Woda: Zimna woda (ciepła z junkersa).

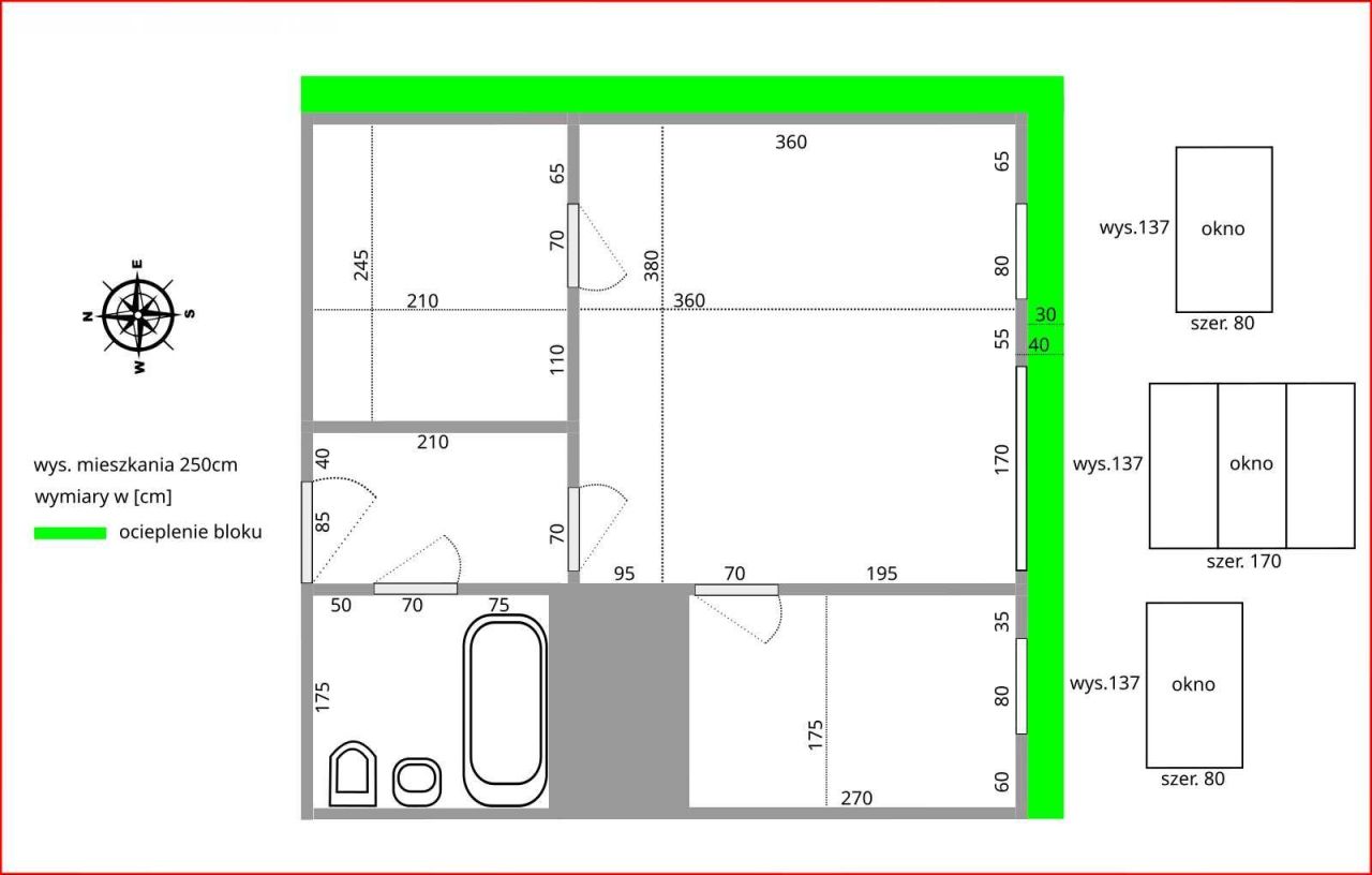
UKŁAD POMIESZCZEŃ:
Pomieszczenia wraz z kierunkami świata zobrazowane na dołączonej grafice.
- Ustawny pokój (z oknami)
- Mały pokój (bez okien)
- Widna kuchnia (umeblowana, lodówka, kuchenka z piekarnikiem, okap, zlewozmywak dwukomorowy)
- Przedpokój (pojemna garderobiana szafa z przesuwanymi drzwiami)
- Łazienka z toaletą (wanna, umywalka, pralka, szafki łazienkowe, suszarka na pranie)

LOKALIZACJA:
- W pobliżu dworzec główny PKP (450m), przystanki autobusowe i tramwajowe (150-400m), kino, teatr (100-200m).
- W bezpośrednim sąsiedztwie targ, sklepy, punkty usługowe, restauracje, kawiarnie, apteki, centrum handlowe Plaza.
- W pobliżu przedszkole, szkoła podstawowa, przychodnia, stomatologia.

KOMUNIKACJA:
- Miejsce dobrze skomunikowane (pociąg, autobus, tramwaj).
- Blisko trasy S86 i 79 i 94.
- Przykładowo: samochodem do centrum Katowic 9km, Będzina 7km, Dąbrowy Górniczej 8km.

OPŁATY:
- Czynsz najmu (odstępne): 1300 zł/mc.
- Czynsz administracyjny do spółdzielni: ok. 500 zł/mc (przy 1 osobie). W kwocie tej znajduje się zaliczka na CO i za wodę, winda oraz śmieci dla 1 osoby.
Dodatkowo płatny gaz i prąd według zużycia.
TV oraz internet - możliwy do instalacji we własnym zakresie.
- Kaucja zabezpieczająca: 3000 zł (zwracana po zakończeniu i rozliczeniu najmu).
- Umowa najmu okazjonalnego (koszt notariusza ponosi wynajmujący) na rok, z możliwością przedłużenia okresu wynajmu.

Zainteresowanych zapraszam do kontaktu po godzinie 16:30.

  • Do wynajęcia mieszkanie 1-pokojowe o powierzchni 29 m²  
  • 1 piętro w budynku z windą
  • Dostępne do wynajęcia od zaraz
  • Sosnowiec, Centrum ul. Warszawska
  • Opłaty 500 zł/miesiąc
  • Money Wallet 1 Streamline Icon: https://streamlinehq.com
    Kaucja 3000 zł
  • Wyposażenie pralka, lodówka, kuchenka, piekarnik
  • Oferta bezpośrednio od właściciela dodana dodana dzisiaj

Podobne mieszkania na wynajem

8
Mieszkanie 1-pokojowe Sosnowiec Klimontów, ul. Gabrieli Zapolskiej

1 650

32

1 pok.

Wynajmę przestronną kawalerkę w Sosnowcu przy ul. Gabrieli Zapolskiej 16. Kontakt w sprawie ogłoszenia tylko w dni robocze od 10:00 - 18:00. Gdybym nie odbierał, proszę o wiadomość SMS - oddzwonię jak tylko będzie to możliwe. Proszę o wcześniejsze przygotowanie informacji, którego ogłoszenia dotycz...

Zobacz ogłoszenie
7
Mieszkanie 2-pokojowe Sosnowiec Pogoń, ul. Mariacka

1 700

36

2 pok.

Oferuję do wynajęcia 2-pokojowe mieszkanie o powierzchni 36 m². Znajduje się na 3. piętrze w kamienicy w świetnie skomunikowanej dzielnicy Pogoń. Mieszkanie jest umeblowane. Wnętrze utrzymane w jasnych barwach, co sprawia, że jest przytulne i przestronne. Bardzo atrakcyjna lokalizacja, blisko do ...

Zobacz ogłoszenie