Mieszkanie do wynajęcia bez pośredników
ul. Piotra Bardowskiego 12 Bielsko-Biała Leszczyny

Mieszkanie 3-pokojowe Bielsko-Biała Leszczyny, ul. Piotra Bardowskiego. Zdjęcie 1

Mieszkanie do wynajęcia bez pośredników Bielsko-Biała Leszczyny ul. Piotra Bardowskiego 12 · 4 piętro

2 200
35 zł/m²
62
3 pok.
Bielsko-Biała Leszczyny, Piotra Bardowskiego 12 - lokalizacja dokładna
Bezpośrednio od właściciela

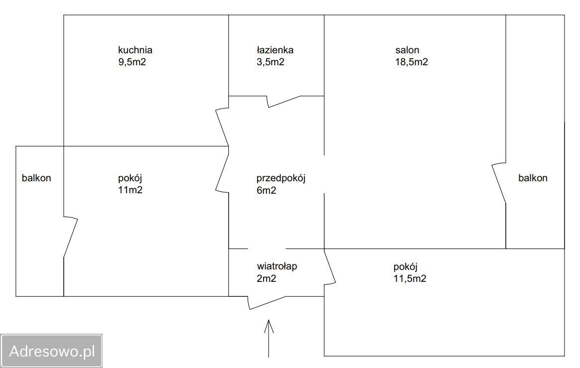
Funkcjonalne mieszkanie o pow. 62 m2, położone na najwyższej kondygnacji IV-piętrowego budynku przy ul. Bardowskiego 12.

Jasny salon od południa z dużym balkonem z widokiem na góry, od Magurki po Szyndzielnię. Dwa niezależne pokoje mogą pełnić funkcję biura, sypialni lub pokoju dziecięcego. Jeden z pokoi posiada wyjście na drugi balkon.
Do mieszkania należy piwnica o pow. 17 m2.

W 2026 roku czynsz wynosi 1150 zł (w tym zimna i ciepła woda, ścieki, gaz (!), centralne ogrzewanie, fundusz remontowy i koszty administracji). Do tego tylko prąd wg zużycia.
Mieszkanie jest dostępne od zaraz. Kaucja zwrotna 4.000 zł. Preferowana umowa na co najmniej 12 miesięcy.

Budynek jest ogrodzony, posiada wewnętrzne podwórko, bramę na pilota i dwie bramki z domofonem.
Spokojna i zadbana okolica, w pobliżu sklepy spożywcze Odido oraz Globi. Krótki spacer do centrum handlowego Gemini lub na tereny rekreacyjne wzdłuż Białki.

  • Do wynajęcia mieszkanie 3-pokojowe o powierzchni 62 m² balkon, piwnica, osobna kuchnia
  • 4 piętro w 4-piętrowym bloku bez windy
  • Dostępne do wynajęcia od zaraz
  • Bielsko-Biała, Leszczyny ul. Piotra Bardowskiego 12
  • Mieszkanie w stanie do zamieszkania okna plastikowe
  • Opłaty 1150 zł/miesiąc
  • Money Wallet 1 Streamline Icon: https://streamlinehq.com
    Kaucja 4000 zł
  • Umeblowanie w pełni
  • Wyposażenie kuchenka, lodówka, mikrofalówka, piekarnik, pralka, telewizor, zmywarka
  • Oferta bezpośrednio od właściciela dodana ponad miesiąc temu i zaktualizowana ponad tydzień temu

Podobne mieszkania na wynajem

6
Mieszkanie 3-pokojowe Bielsko-Biała Aleksandrowice, ul. Jesionowa

1 950

53

3 pok.

Do wynajęcia przestrzenne, po remoncie, 3 pokojowe mieszkanie ( dwa pokoje częściowo połączone) ( 53 m2) położone na drugim piętrze w Bielsku-Białej na Osiedlu Kopernika. Mieszkanie wyposażone i umeblowane, kuchnia – zabudowa na wymiar. Opłaty: odstępne – 1950 zł , opłaty do spółdzielni w zależnośc...

Zobacz ogłoszenie
13
Mieszkanie 3-pokojowe Bielsko-Biała Śródmieście, ul. Inwalidów

2 400

69

3 pok.

Mieszkanie znajduje się w kamienicy na ul. Inwalidów w Bielsku-Białej. Jest po remoncie. Jego główną zaletą jest lokalizacja: - 3 min pieszo do Teatru Polskiego - 8 min pieszo na rynek główny - 7 min pieszo na Plac Chrobrego - 15 min do Galerii Sfera Jest blisko do wszelkich szkół, komunikacji mie...

Zobacz ogłoszenie
30
Mieszkanie 2-pokojowe Bielsko-Biała

2 200

40

2 pok.

Mamy przyjemność zaprezentować na wynajem dwupokojowe mieszkanie z ogródkiem na zamkniętym osiedlu Diamentowe Apartamenty w Bielsku-Białej! Nieruchomość o powierzchni 40,21 m 2 mieści się na parterze w nowoczesnym 2- piętrowym budynku, a w jej skład wchodzi: - przedpokój, - p...

Zobacz ogłoszenie
8
Mieszkanie 3-pokojowe Bielsko-Biała, ul. Jacka Malczewskiego

2 200

45

3 pok.

Do wynajęcia komfortowe mieszkanie o powierzchni 45 m², położone w Bielsku-Białej przy ul. Malczewskiego, na os. Słonecznym, na parterze. Lokal składa się z przestronnego salonu z aneksem kuchennym, oddzielnej sypialni oraz dodatkowego pokoju, który może pełnić funkcję biura lub pokoju gościnnego. ...

Zobacz ogłoszenie
8
Mieszkanie 2-pokojowe Bielsko-Biała Śródmieście

2 200

38

2 pok.

Oferuję mieszkanie na wynajem w centrum Bielska-Białej. Mieszkanie ma 38 m², jest po remoncie i w pełni umeblowane. Znajduje się na drugim piętrze kamienicy i posiada wysokiej jakości wykończenie. Duże okna i balkon zapewniają dostęp do naturalnego światła. Kuchnia wyposażona jest w urządzenia wyso...

Zobacz ogłoszenie
8
Mieszkanie 2-pokojowe Bielsko-Biała, ul. Kazimierza Pułaskiego

2 200

60

2 pok.

Na wynajem atrakcyjne, przestronne mieszkanie o powierzchni ok. 60 m², położone w spokojnej, widokowej okolicy tuż przy centrum miasta. Idealne dla osób ceniących wygodę, funkcjonalny układ oraz świetną lokalizację. Układ mieszkania: • jasny salon z aneksem kuchennym • oddzielny pokój • łazienka • ...

Zobacz ogłoszenie