Mieszkanie na sprzedaż bez pośredników
ul. Lubelska Rzeszów

Mieszkanie 2-pokojowe Rzeszów, ul. Lubelska. Zdjęcie 1

Mieszkanie na sprzedaż bez pośredników Rzeszów ul. Lubelska · 2 piętro

620 000
12 917 zł/m²
48
2 pok.
Rzeszów, Lubelska - lokalizacja przybliżona
Bezpośrednio od właściciela

Jeśli nie potrzebujesz pośrednika, zaoszczędzisz około 18 600 zł. Potrzebujesz wsparcia? Skorzystaj z pomocy agenta.

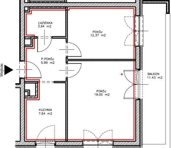
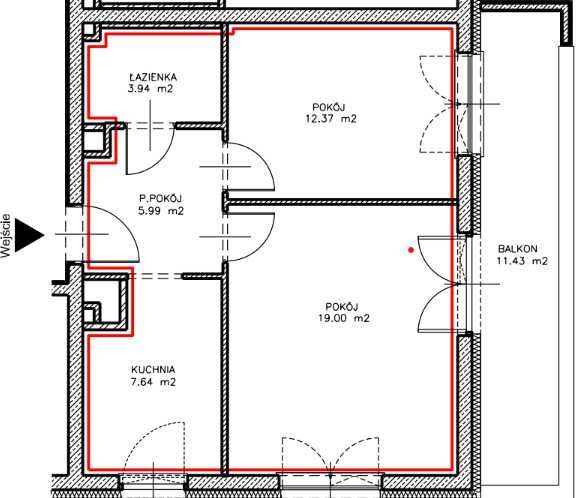
Na sprzedaż 2-pokojowe mieszkanie o powierzchni 48,94 m², położone na 2. piętrze w bloku z windą przy ulicy Lubelskiej w Rzeszowie (Skyres).

Dużym atutem mieszkania jest lokalizacja. W pobliżu znajduje się m.in.: szkoła, przedszkole, sklepy, szpital, apteka, z szybkim dostępem do centrum miasta, jak i lotniska w Jasionce.

Pokoje oddzielne, ustawne i jasne. Kuchnia z możliwością połączenia z większym pokojem.

ROZKŁAD MIESZKANIA:
• Przedpokój: 5,99 m²
• Kuchnia: 7,64 m²
• Pokój: 19,00 m²
• Pokój: 12,37 m²
• Łazienka: 3,94 m²
• Balkon: 11,43 m²

Do mieszkania przynależy miejsce postojowe.

OPŁATY MIESIĘCZNE:
• Czynsz: ok. 700 zł / 2 os., w tym ogrzewanie i woda z sieci miejskiej.
• Miejsce postojowe: 175 zł.
• Dodatkowo płatny tylko prąd według zużycia.

CENA:
• Cena sprzedaży: 620 000 zł.

Do mieszkania przynależy miejsce postojowe w garażu podziemnym (oddzielna KW) - dodatkowo płatne 40 000 zł

  • Na sprzedaż mieszkanie 2-pokojowe o powierzchni 48 m² balkon, możliwość dokupienia garażu, osobna kuchnia
  • 2 piętro w 10-piętrowym bloku z windą, rok budowy 2018
  • Rzeszów ul. Lubelska
  • Mieszkanie w bardzo dobrym stanie okna plastikowe
  • Odrębna własność z księgą wieczystą  
  • Oferta bezpośrednio od właściciela dodana ponad miesiąc temu i zaktualizowana ponad tydzień temu
Ta nieruchomość może być Twoja od.. sprawdź
124000 zł (20%) Okres spłaty: 30 lat

Podobne mieszkania na sprzedaż

14
Mieszkanie 3-pokojowe Rzeszów, ul. Lucjana Siemieńskiego

640 000

55

3 pok.

Biuro nieruchomości Pierwsze Piętro prezentuje 3-pokojowe mieszkanie z dwoma balkonami, komórką lokatorską oraz miejscem postojowym w garażu podziemnym. Mieszkanie znajduje się na osiedlu mieszkaniowym "Osiedle nad Wisłokiem", w zacisznej okolicy, przy ul. Lucjana Siemieńskiego w Rzeszowie.Umowa na ...

Zobacz ogłoszenie
14
Mieszkanie 4-pokojowe Rzeszów, ul. Strażacka

599 000

66

4 pok.

Biuro Nieruchomości Pierwsze Piętro z przyjemnością prezentuje przestronne, funkcjonalne mieszkanie zlokalizowane w spokojnej i dobrze skomunikowanej części Rzeszowa ? przy ulicy Strażackiej. To wyjątkowa oferta łącząca komfort, funkcjonalność oraz atrakcyjną lokalizację. Mieszkanie doskonale sprawd...

Zobacz ogłoszenie
14
Mieszkanie 4-pokojowe Rzeszów, ul. Witolda

632 000

57

4 pok.

4-POKOJOWE MIESZKANIE z 2 ŁAZIENKAMI oraz Z PIĘKNYM WIDOKIEM BLISKO CENTRUM MIASTA Lokalizacja: Rzeszów ul. Witolda Ilość pokoi: 4 Ilość łazienek: 2 Metraż: 57,31 mkw. Piętro: 7 - piękny widok 3 minuty do al. Rejtana, 7 minut do ścisłego CENTRUM ! UKŁAD POMIESZCZEŃ: - salon z aneksem kuchennym /2...

Zobacz ogłoszenie
12
Mieszkanie 3-pokojowe Rzeszów, ul. Stefana Okrzei

619 000

43

3 pok.

Biuro nieruchomości Pierwsze Piętro prezentuje mieszkanie po kapitalnym remoncie, usytuowane w kamienicy w ścisłym centrum Rzeszowa, przy ul. Stefana Okrzei. Z uwagi na lokalizację jest to doskonała propozycja zarówno dla osób szukających mieszkania inwestycyjnego (wynajem długoterminowy oraz krótko...

Zobacz ogłoszenie
7
Mieszkanie 3-pokojowe Rzeszów, ul. Lubelska

610 000

53

3 pok.

Opis budynku: Rok budowy: 2016 Ilość pięter: 5/5 Rodzaj ogrzewania: Miejskie Lokalizacja: Rzeszów, ul. Lubelska. Mieszkanie składa się z: - salonu z aneksem kuchennym, - sypialni, - pokoju, - łazienki, - WC, - przedpokoju. Metraż całkowity: 53 m2. Dodatkowo do mieszkania przynależy komórka lokator...

Zobacz ogłoszenie
8
Mieszkanie 3-pokojowe Rzeszów, ul. Krajobrazowa

619 000

59

3 pok.

Wyłącznie w ofercie biura Estaton przedstawiamy Państwu trzypokojowe mieszkanie o powierzchni 59,5 m2 zlokalizowane przy ulicy Krajobrazowej na osiedlu Projektant w Rzeszowie. Osiedle to spokojna i zielona część Rzeszowa, z nowoczesną zabudową, pełną infrastruktura i wygodnym dojazdem do centrum. O...

Zobacz ogłoszenie