Mieszkanie na sprzedaż
ul. Legionistów Rzeszów

Mieszkanie 5-pokojowe Rzeszów, ul. Legionistów. Zdjęcie 1
Mieszkanie 5-pokojowe Rzeszów, ul. Legionistów. Zdjęcie 2
Mieszkanie 5-pokojowe Rzeszów, ul. Legionistów. Zdjęcie 3
Mieszkanie 5-pokojowe Rzeszów, ul. Legionistów. Zdjęcie 4
Mieszkanie 5-pokojowe Rzeszów, ul. Legionistów. Zdjęcie 5
Mieszkanie 5-pokojowe Rzeszów, ul. Legionistów. Zdjęcie 6
Mieszkanie 5-pokojowe Rzeszów, ul. Legionistów. Zdjęcie 7
Mieszkanie 5-pokojowe Rzeszów, ul. Legionistów. Zdjęcie 8

Mieszkanie na sprzedaż Rzeszów ul. Legionistów · 1 piętro

929 000
8 760 zł/m²
106
5 pok.
Rzeszów, Legionistów - lokalizacja przybliżona

Właściciel powierzył sprzedaż nieruchomości pośrednikowi. Możesz zadzwonić lub napisać do agenta za darmo.

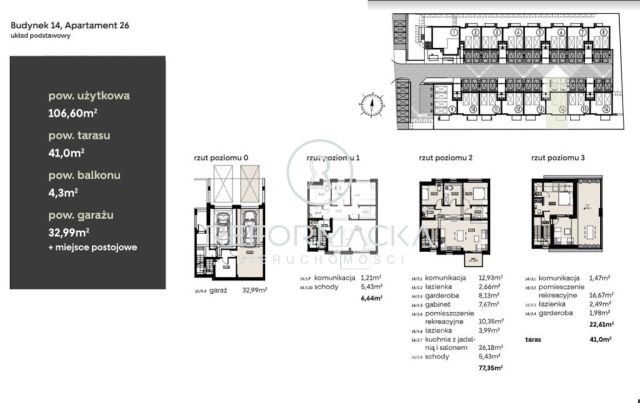
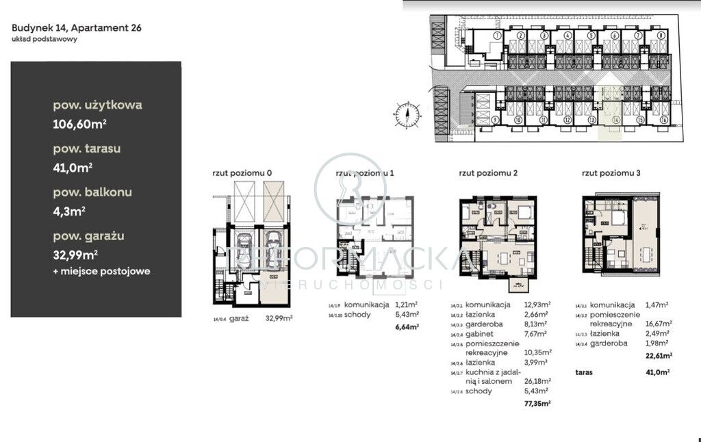
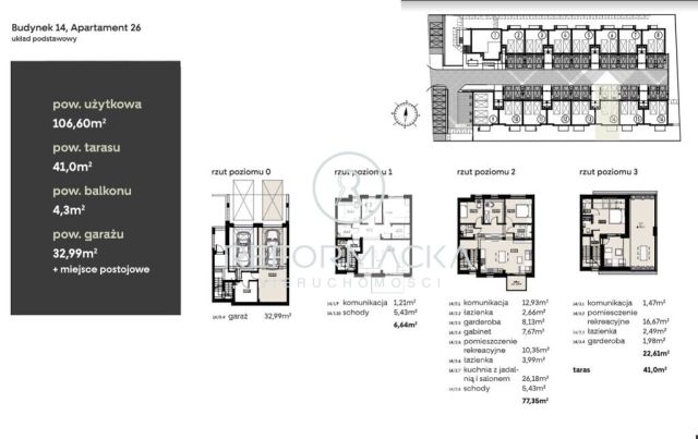
Biuro Reformacka Nieruchomości ma przyjemność zaprezentować 5 pokojowy, dwupoziomowy apartament o powierzchni 106,6 m2, wchodzący w skład wyjątkowej inwestycji w standardzie premium. Koncepcja zakłada budowę dwóch zespołów szeregowych w których znajdować się będą przestronne lokale na parterach z własnymi ogrodami, oraz nowoczesne dwupoziomowe apartamenty z tarasem na dachu. Każde z mieszkań dysponowało będzie niezależnym garażem i pomieszczeniem gospodarczym.

Zalety nieruchomości:
- funkcjonalny i przemyślany układ pomieszczeń
- zastosowani wysokiej jakości materiałów
- innowacyjne rozwiązania i dbałość o wykonawstwo
- ogrzewanie podłogowe na całej powierzchni + drabinka w łazience
- kocioł gazowy dwufunkcyjne Viessmann
- sufity podwieszane, ściany i sufity wyszpachlowane, zagruntowane, gotowe do malowania
- przygotowanie kanału do fotowoltaiki wraz z panelami o mocy pomiędzy 4-6 KW
- instalacja do klimatyzacji (bez montażu urządzeń)
- instalacja do rolet (bez montażu urządzeń)
- zagospodarowanie terenu: podjazdy, podejścia, tarasy na gruncie wykonane w kostki brukowej, droga wewnętrzna hydrofuga, ogrodzenia między segmentami panelowe w kolorze grafit - drewno, nasadzenia roślin wykonane według projektu

Parametry nieruchomości:
Poziom 0:
garaż -32,99 m2
POZIOM 1:
schody i komunikacja 6,64 m2
Poziom 2:
salon z aneksem kuchennym - 26,18 m2
sypialnia - 10,35 m2
pokój - 8,13 m2
łazienka - 2,66 m2
pokój - 7,67 m2
łazienka - 3,99 m2
komunikacja - 12,93 m2
schody - 5,43 m2
Poziom 3:
komunikacja 1,47m2
pomieszczenie rekreacyjne - 16,67 m2
łazienka - 2,49 m2
garderoba - 1,98m2

Do nieruchomości przynależą:
- taras - 41 m2
- balkon 4,3 m2
- garaż - 32,99 m2
- miejsce postojowe

Lokalizacja:
- 10 km od Rzeszowskiego Rynku
- szybki dojazd ul. Sikorskiego

W pobliżu:
- 50 m przystanek komunikacji miejskiej
- liczne tereny tereny rekreacyjne, ścieżki rowerowe oraz piesze.
- ok 1 km - przedszkole, szkoła podstawowa, kościół, centrum handlowe, sklep wielobranżowy.

Inwestycja gotowa
Prezentowane ogłoszenie dotyczy apartamentu nr. 26 w budynku 14

Zapraszam do kontaktu w celu umówienia się na prezentację.

Jeżeli jesteście Państwo zainteresowani uzyskaniem kredytu na powyższą nieruchomość to pragniemy poinformować, że posiadamy własny dział finansowy świadczący bezpłatną, kompleksową obsługę Klienta. Nasi eksperci bezpłatnie pomogą w wyborze najlepszej formy finansowania oraz przeprowadzą przez cały proces kredytowy. Współpracujemy z większością instytucji finansowych i banków. Każda nieruchomość badana jest pod kątem prawnym i finansowym, aby zapewnić Naszym Klientom bezpieczny zakup oraz sprzedaż.

Powyższa oferta ma jedynie charakter informacyjny i nie stanowi oferty handlowej w rozumieniu Art. 66 § 1 Kodeksu Cywilnego.

  • Na sprzedaż mieszkanie 5-pokojowe o powierzchni 106,05 m² balkon, piwnica, aneks kuchenny
  • 1 piętro w 2-piętrowym apartamentowcu rok budowy 2024
  • Rzeszów ul. Legionistów
  • Mieszkanie w stanie do remontu okna plastikowe
  • Ogłoszenie biura nieruchomości  
  • Oferta dodana ponad miesiąc temu i zaktualizowana dzisiaj
Ta nieruchomość może być Twoja od.. sprawdź
186000 zł (20%) Okres spłaty: 30 lat

Podobne mieszkania na sprzedaż

10
Mieszkanie 5-pokojowe Rzeszów, ul. Legionistów

859 000

102

5 pok.

Biuro Reformacka Nieruchomości przedstawia 5 pokojowy, dwupoziomowy apartament o powierzchni 102,34 m2, wchodzący w skład wyjątkowej inwestycji w standardzie premium. Koncepcja zakłada budowę dwóch zespołów szeregowych w których znajdować się będą przestronne lokale na parterach z własnymi ogrodami,...

Zobacz ogłoszenie
12
Mieszkanie 4-pokojowe Rzeszów, ul. św. Rocha

879 000

82

4 pok.

Nowe

Wyłacznie w ofercie biura Estaton przedstawiamy Państwu czteropokojowe mieszkanie o powierzchni użytkowej 83,03 m2 zlokalizowane przy ulicy Św. Rocha w Rzeszowie. Mieszkanie położone przy ul. Św. Rocha w dzielnicy Słocina – w spokojnej i zielonej części Rzeszowa charakteryzującej się cisza i komfort...

Zobacz ogłoszenie
8
Mieszkanie 4-pokojowe Rzeszów

999 000

87

4 pok.

Oferuję do sprzedaży 4 pokojowe, dwupoziomowe mieszkanie w niskiej zabudowie szeregowej o powierzchni 87 mkw. (po podłodze 100 mkw.). Dodatkowo mieszkanie posiada przestronny taras (18 mkw.) oraz dwa balkony, a także jedno prywatne miejsce postojowe i dodatkowe miejsca przy zabudowie. Mieszkanie z...

Zobacz ogłoszenie
10
Mieszkanie 6-pokojowe Rzeszów, ul. Stefana Starzyńskiego

839 000

98

6 pok.

Nowe

GOTOWIEC INWESTYCYJNY - Wysoka Rentowność Biuro Estaton ma przyjemność przedstawić Państwu sześciopokojowe mieszkanie o powierzchni 98,90 m2, zlokalizowane przy ulicy Starzyńskiego w Rzeszowie. Mieszkanie przeszło kapitalny remont 5 lat temu. Nieruchomość z racji swojego układu to idealna inwestycj...

Zobacz ogłoszenie
18
Mieszkanie 4-pokojowe Rzeszów, ul. Krośnieńska

950 000

78

4 pok.

Biuro nieruchomości Pierwsze Piętro prezentuje przestronne, w pełni wyposażone i umeblowane mieszkanie z trzema balkonami oraz piwnicą. Nieruchomość usytuowana w Rzeszowie, w cichej i spokojnej okolicy, przy ul. Krośnieńskiej, os.Projektant.Cechy nieruchomości:- mieszkanie o powierzchni 78,5 m2 oraz...

Zobacz ogłoszenie
7
Mieszkanie 5-pokojowe Rzeszów, ul. Legionistów

949 000

105

5 pok.

Biuro Reformacka Nieruchomości przedstawia 5 pokojowy, dwupoziomowy apartament o powierzchni 105 m2, wchodzący w skład wyjątkowej inwestycji w standardzie premium. Koncepcja zakłada budowę dwóch zespołów szeregowych w których znajdować się będą przestronne lokale na parterach z własnymi ogrodami, or...

Zobacz ogłoszenie