+5zdjęć
Sprzedaż. Mieszkanie 2 pokojowe, nowe do wykończenia stan deweloperski. Ustawne mieszkanie, dwustronne, Wolne od zaraz.
ul. Graniczna, łatwy dojazd do centrum.
- Oferta z rynku pierwotnego
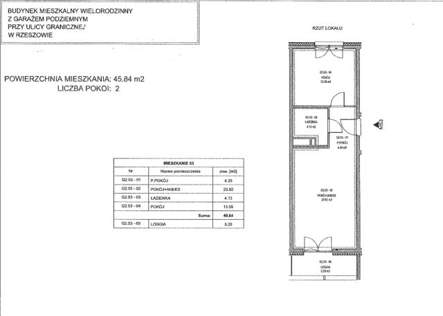
- Na sprzedaż mieszkanie 2-pokojowe o powierzchni 46 m²
- 13 piętro w 13-piętrowym bloku z windą z 2024 roku
- Rzeszów, Śródmieście, ul. Graniczna
- Balkon, aneks kuchenny
- Mieszkanie do wykończenia, okna plastikowe
- Odrębna własność z księgą wieczystą
- Ogłoszenie biura nieruchomości Właściciel postanowił powierzyć ofertę agencji nieruchomości.