Rzeszów Słocina
ul. Henryka Wieniawskiego
2-pokojowe mieszkanie na sprzedaż Bez pośrednika

Mieszkanie 2-pokojowe Rzeszów Słocina, ul. Henryka Wieniawskiego
Cena
455 000
Powierzchnia
42,11 m²
Cena za m²
10 805
Piętro
2
Rok budowy
2012
Rzeszów Słocina · 455 000 zł

Ogłoszenie właściciela - bez pośredników

Mieszkanie 2-pokojowe Rzeszów Słocina, ul. Henryka Wieniawskiego. Zdjęcie 1
NOWA OFERTA dodana 23 godziny temu
Mieszkanie 2-pokojowe Rzeszów Słocina, ul. Henryka Wieniawskiego. Zdjęcie 1

Bez pośrednika. Oszczędzasz 13 700 zł na prowizji pośrednika!

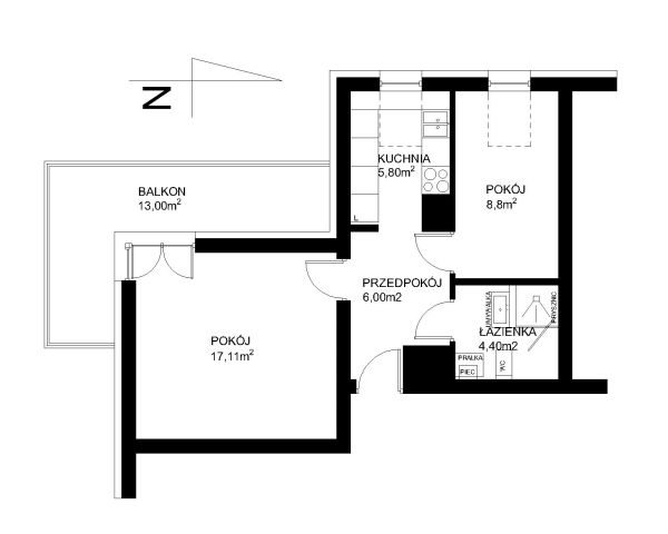
Cena dotyczy mieszkania dodatkowo płatne miejsce postojowe w garażu i komórka lokatorska w cenie 40 000 zł . Mieszkanie dostępne od zaraz. Dobry rozkład mieszkania dwa odrębne pokoje z osobną kuchnią pozwalają przeznaczyć mieszkanie pod inwestycję . Dogodna lokalizacja przy nowo budowanym wjeździe na łącznik Wieniawskiego z Armii Krajowej
Pełna infrastruktura, w pobliżu przystanek ZTM Rzeszów

  • Na sprzedaż mieszkanie 2-pokojowe o powierzchni 42,11 m²
  • 2 piętro w 2-piętrowym bloku bez windy z 2012 roku
  • Rzeszów, Słocina, ul. Henryka Wieniawskiego
  • Balkon, piwnica, miejsce w hali garażowej, osobna kuchnia
  • Mieszkanie w stanie do odświeżenia, okna plastikowe
  • Odrębna własność z księgą wieczystą
  • Wyposażenie: internet, klimatyzacja, kuchenka, lodówka, piekarnik, pralka
  • Cena do negocjacji
  • Oferta dodana bezpośrednio przez właściciela wczoraj
Wróć
Największa baza ogłoszeń bez pośredników
Zarejestruj się, aby przejść dalej
lub

Kontynuując akceptujesz
Regulamin i Politykę prywatności

Masz już konto na adresowo.pl?
Zaloguj się

Mamy dla Ciebie kredyt hipoteczny z niską ratą! Chcesz poznać szczegóły?

Kontakt z VeloBank:
- ofertę, wniosek i decyzję o przyznaniu kredytu w procesie online,
- wsparcie eksperta hipotecznego na każdym kroku,
- kredyt do 90% wartości nieruchomości.





Wyrażam zgodę na przetwarzanie moich danych osobowych zawartych w formularzu na stronie adresowo.pl przez VeloBank S.A. z siedzibą w Warszawie przy Rondo Ignacego Daszyńskiego 2C (Bank), a tym samym na ich przetwarzanie, w tym profilowanie, przez Bank w celu marketingu produktów i usług Banku za pośrednictwem rozmowy telefonicznej i sms. Zgoda może być w każdej chwili wycofana. Cofnięcie zgody nie ma wpływu na zgodność z prawem przetwarzania danych przed jej wycofaniem.