Mieszkanie na sprzedaż bez pośredników
ul. Abrahama Puck

Mieszkanie 4-pokojowe Puck, ul. Abrahama. Zdjęcie 1

Mieszkanie na sprzedaż bez pośredników Puck ul. Abrahama · 2 piętro

818 800
9 098 zł/m²
90
4 pok.
Puck, Abrahama - lokalizacja przybliżona
Bezpośrednio od właściciela

Jeśli nie potrzebujesz pośrednika, zaoszczędzisz około 24 600 zł. Potrzebujesz wsparcia? Skorzystaj z pomocy agenta.

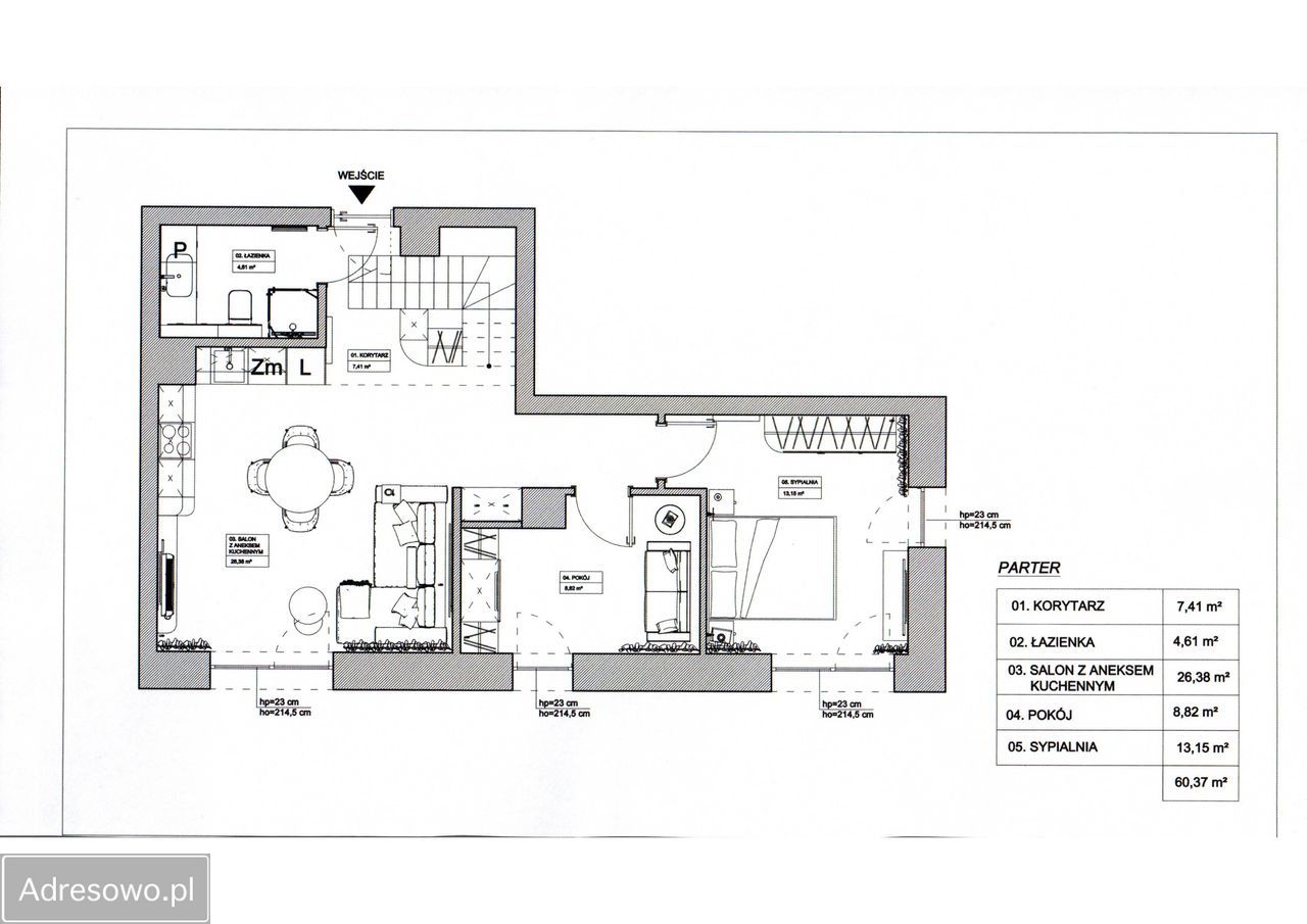
Mieszkanie mieści się przy spokojnej ulicy Abrahama w apartamentowcu z 2024 roku, w pięknej nadmorskiej miejscowości Puck. Jest bardzo przestronne i ma funkcjonalny układ.

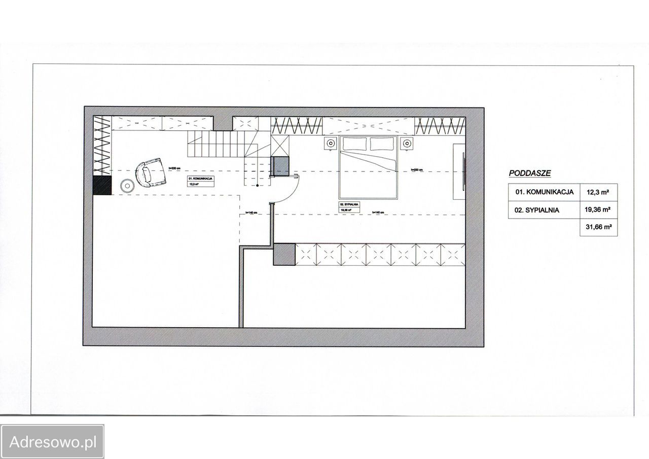
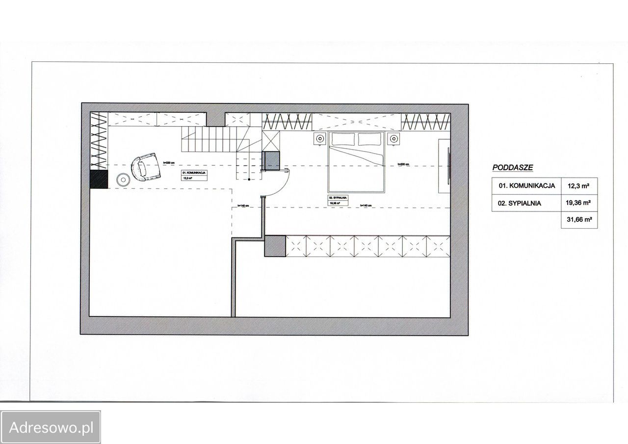
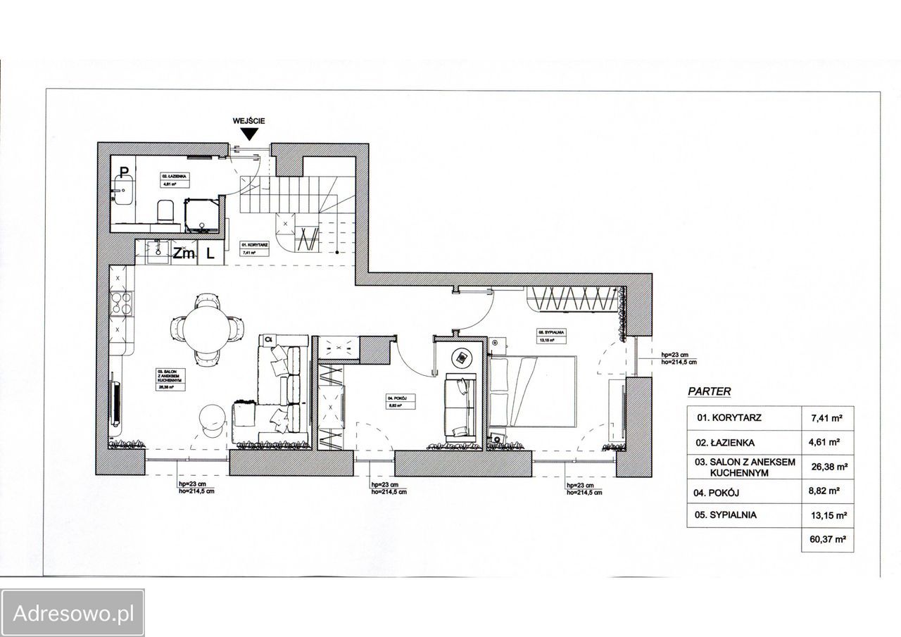
Mieszkanie jest dwupoziomowe, na drugim piętrze znajduje się przestronna antresola z dodatkowym pokojem oraz przestrzenią na urządzenie np. biblioteki, miejsca do pracy czy garderoby.

* Parter: 60,37 m²
* Piętro: 31,66 m²

Z każdego pokoju prowadzą wyjścia na ogromny 35-metrowy taras, z pozycją południowo-zachodnią, dzięki czemu jest bardzo słoneczne i ciepłe.

W mieszkaniu wykonana jest elektryka i hydraulika zgodnie z projektem oraz schody prowadzące na antresolę. Ogrzewanie podłogowe w całym mieszkaniu, z osobnymi pętlami na pomieszczenia umożliwiające indywidualne sterowanie ogrzewaniem. Drzwi antywłamaniowe, okna trzyszybowe.

W każdym budynku jest tylko 16 mieszkań. Mimo niskiej zabudowy (dwa piętra), w budynku jest winda, którą można zjechać na poziom 0 do hali garażowej. Osiedle jest monitorowane.

Niewątpliwie jednym z największych atutów nieruchomości jest lokalizacja. W zasięgu spaceru znajdują się wszystkie udogodnienia i atrakcje. Obok osiedla jest Polo Market, sklep Żabka, a niedaleko szkoły, dworzec PKP i PKS, przychodnia, szpital oraz inne lokale handlowo-usługowe. W zasięgu krótkiego spaceru znajduje się Zatoka Pucka, plaża, molo, nowa marina oraz starówka Pucka.

W cenie mieszkania projekt oraz duża komórka lokatorska. Możliwość zakupu mieszkania wraz z dwoma miejscami postojowymi w hali garażowej w cenie 35 tys. zł za jedno miejsce.

Załączone zdjęcia przedstawiają projekt mieszkania oraz przykładowe wizualizacje.

Serdecznie zapraszam na prezentację.

  • Oferta z rynku pierwotnego
  • Na sprzedaż dwupoziomowe mieszkanie 4-pokojowe o powierzchni 90 m² taras, piwnica
  • 2 piętro w 2-piętrowym bloku z windą, rok budowy 2024
  • Puck ul. Abrahama
  • Odrębna własność z księgą wieczystą  
  • Oferta bezpośrednio od właściciela dodana ponad miesiąc temu i zaktualizowana ponad tydzień temu
Ta nieruchomość może być Twoja od.. sprawdź
164000 zł (20%) Okres spłaty: 30 lat

Podobne mieszkania na sprzedaż

9
Mieszkanie 3-pokojowe Puck, ul. Pogodna

505 221

60

3 pok.

Nowe mieszkanie 3-pokojowe o powierzchni 60,87 m² w inwestycji Osiedle Pogodne w Pucku dewelopera WILLBUD, na parterze pod adresem ul. Pogodna, Puck, powiat pucki. Planowany termin oddania to II kwartał 2026 roku. Osiedle Pogodne w Pucku— komfort życia nad morzem Nasza inwestycja to nowoczesne b...

Zobacz ogłoszenie
13
Mieszkanie 4-pokojowe Mosty, ul. Kasztanowa

764 900

74

4 pok.

0% prowizji! Sprzedaż bezpośrednia. Mieszkanie 73 m², Kuchnia wyposażona w pełen zestaw AGD. Mieszkanie składa się z: • salonu z aneksem kuchennym (18,23 m²), • sypialni (12,48 m²), • sypialni (9,13 m²), • sypialni (8,33 m²), • łazienki (4,5m²) z prysznicem, • klatka schodowa (7,20 m²) Lokal bezczy...

Zobacz ogłoszenie
8
Mieszkanie 4-pokojowe Władysławowo Cetniewo

820 000

120

4 pok.

Sprzedam słoneczne mieszkanie ok. 120 m2 we Władysławowie Cetniewo, blisko plaży, ok. 10 min pieszo Aleją Gwiazd. Mieszkanie zlokalizowane na przeciwko Parku Miejskiego, na wysokim parterze budynku jednorodzinnego, własna księga wieczysta. Do lokalu przynależy 50% udziału w działce, piwnicy, poddas...

Zobacz ogłoszenie
8
Mieszkanie 3-pokojowe Pogórze, ul. Teodora Śliwińskiego

749 000

67

3 pok.

Komfortowa przestrzeń blisko morza | 3 pokoje | Pogórze, gm. Kosakowo Na sprzedaż jasne, przestronne mieszkanie, położone na Osiedlu Morskim w Pogórzu - miejscu, które łączy spokój nadmorskiej okolicy z szybkim dostępem do Gdyni i pełnej infrastruktury miejskiej. To propozycja dla osób, które szuka...

Zobacz ogłoszenie
9
Mieszkanie 3-pokojowe Pogórze, ul. Tadeusza Kościuszki

750 000

72

3 pok.

Przestronne 3-pokojowe mieszkanie na „Osiedlu Morskim” w Pogórzu! Zapraszamy do zapoznania się z ofertą sprzedaży narożnego mieszkania o powierzchni 72,37 m², położonego w znakomitej lokalizacji na pograniczu Kosakowa i Gdyni, na popularnym „Osiedlu Morskim”. Budynek posiada przestronną klatkę schod...

Zobacz ogłoszenie
14
Mieszkanie 3-pokojowe Puck, ul. Piotra Dunina

529 000

58

3 pok.

Na sprzedaż mieszkanie w Pucku, przy ul.Piotra Dunina, w szybko rozwijającej się okolicy sąsiadującej z centrum miasta.  Informacje -800 metrów( 10 minut do plaży) -800 metrów do centrum Pucka -3 pokoje  -58m2 -nowa instalacja gazowa 2024  -wymieniona instalacja elektryczna  -zabudowa kuchni i wypos...

Zobacz ogłoszenie