Mieszkanie na sprzedaż bez pośredników
ul. Koszarowa Oleśnica

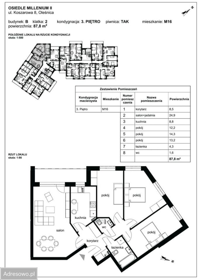
Mieszkanie 4-pokojowe Oleśnica, ul. Koszarowa. Zdjęcie 1

Mieszkanie na sprzedaż bez pośredników Oleśnica ul. Koszarowa · 3 piętro

1 089 000
12 375 zł/m²
88
4 pok.
Oleśnica, Koszarowa - lokalizacja przybliżona
Bezpośrednio od właściciela

Jeśli nie potrzebujesz pośrednika, zaoszczędzisz około 32 700 zł. Potrzebujesz wsparcia? Skorzystaj z pomocy agenta.

Są mieszkania poprawne - i są takie, które robią wrażenie od pierwszego kroku.
Ta nieruchomość należy zdecydowanie do drugiej kategorii.

Na sprzedaż wyjątkowy apartament o powierzchni 88 m², położony na prestiżowym, zamkniętym osiedlu Millenium 2 przy ul. Koszarowej w Oleśnicy.
Mieszkanie zostało zaprojektowane przez projektanta wnętrz i wykończone w standardzie premium, z myślą o osobach, które oczekują jakości, funkcjonalności i ponadczasowej estetyki.
To propozycja dla wymagających — gotowa do zamieszkania od pierwszego dnia, sprzedawana z pełnym wyposażeniem.

Wnętrze, które pracuje na Twój komfort
Każdy element mieszkania został przemyślany:
zabudowy meblowe na wymiar w całym mieszkaniu,
wysokiej klasy materiały w tym płytki Max Fliz, podłogi Quick step, wykładzina Arte, drzwi Porta Desire, klimatyzacja Haier Flexis Plus Black Matt 5 kW, wanna z kamienia, elementy zabudowy szklanej, pełne wyposażenie RTV i AGD (część sprzętów objęta 5-letnią, rozszerzoną gwarancją), narożnik wypoczynkowy firmy Polipol.

Ogromnym atutem są dwie pełnowymiarowe łazienki - jedna z prysznicem, druga z wanną - rozwiązanie rzadko spotykane nawet w apartamentach tej klasy.
Na uwagę zasługuje również osobna kuchnia, dziś coraz trudniejsza do znalezienia w nowym budownictwie.

Przemyślany układ pomieszczeń:
Salon: 24,9 m² - przestronny, idealny do codziennego życia i spotkań
Kuchnia: 8,8 m² - osobna, funkcjonalna
Korytarz: 8,5 m² - dwie duże szafy
Łazienka: 4,3 m²
Łazienka: 2,8 m² (zmieniona względem pierwotnego projektu - dostosowana do indywidualnych potrzeb)
Sypialnia 1: 11 m² - garderoba (możliwość przeniesienia zabudowy do piwnicy)
Sypialnia 2: 13,2 m²
Sypialnia 3: 14,3 m²

Dodatkowo:
loggia 7 m² - idealna na poranną kawę lub wieczorny relaks,
piwnica 14 m² - wyjątkowo duża, na poziomie -1 z wygodnym dostępem windą

Osiedle i lokalizacja
Osiedle zamknięte, strzeżone, z wjazdem za szlabanem.
Na każdą nieruchomość przypadają dwa miejsca parkingowe (nieprzypisane).
Otoczenie to cisza, zieleń, stawy, kompleks Atol, szkoły, sklepy które tworzą atmosferę spokoju i prywatności, a jednocześnie zapewniają wygodny dostęp do infrastruktury miejskiej.

Dla kogo?
To idealna propozycja:
dla rodziny,
dla osób pracujących zdalnie i ceniących przestrzeń,
dla klientów segmentu premium, którzy nie chcą kompromisów ani remontów.

  • Na sprzedaż mieszkanie 4-pokojowe o powierzchni 88 m² balkon, piwnica, osobna kuchnia
  • 3 piętro w 4-piętrowym bloku z windą, rok budowy 2020
  • Oleśnica ul. Koszarowa
  • Mieszkanie w stanie do zamieszkania  
  • Odrębna własność z księgą wieczystą  
  • Wyposażenie klimatyzacja
  • Oferta bezpośrednio od właściciela dodana ponad miesiąc temu i zaktualizowana ponad tydzień temu
Ta nieruchomość może być Twoja od.. sprawdź
218000 zł (20%) Okres spłaty: 30 lat

Podobne mieszkania na sprzedaż

16
Mieszkanie 4-pokojowe Oleśnica, ul. Klonowa

715 000

62

4 pok.

ul. Klonowa, Oleśnica Nowoczesne, po gruntownym remoncie, bardzo ładne czteropokojowe mieszkanie o pow. 62 mkw. z balkonem w bloku z 1985 roku z pięknym widokiem na okolicę. Mieszkanie znajduje się na ósmym piętrze w budynku dziesięciopiętrowym składa się z pokoju połączonego z kuchnią, trzech nieza...

Zobacz ogłoszenie
8
Mieszkanie 4-pokojowe Oleśnica

695 000

72

4 pok.

Sprzedaż bezposrednia - brak prowizji dla kupujacego Na sprzedaż mieszkanie po kapitalnym remoncie, niezamieszkane. Jezeli poszukujesz nieruchomości, która łączy nowoczesną aranżacje wnętrz, wysoką funkcjonalność oraz bardzo dobrą lokalizacje, ta oferta bedzie idealnym wyborem. Najwazniejsze atut...

Zobacz ogłoszenie
8
Mieszkanie 3-pokojowe Oleśnica, ul. Brzozowa

739 000

76

3 pok.

Do sprzedania mieszkanie w Oleśnicy w wyjątkowej lokalizacji na ul. Brzozowej. Na osiedlu znajdującym się koło kompleksu rekreacyjnego Atol (basen, kort tenisowy, lodowisko). W odległości 200 metrów piękny park, stawy, ścieżki spacerowe, sklepy. Lokalizacja tego miejsca jest jedną z piękniejszych w ...

Zobacz ogłoszenie
8
Mieszkanie 3-pokojowe Oleśnica, ul. mjr. Henryka Sucharskiego

680 000

61

3 pok.

Sprzedam mieszkanie na Serbinowie przy ul. Sucharskiego. Znajduje się ono na 2. piętrze w bloku 4-piętrowym. Po modernizacji zakończonej w 2015 r. zyskało zupełnie inny wygląd. Wymieniono również wszystkie instalacje: elektryczną, wodną, kanalizacyjną i gazową. Do mieszkania prowadzi przedpokój, w ...

Zobacz ogłoszenie
10
Mieszkanie 3-pokojowe Oleśnica, ul. Brzozowa

750 000

73

3 pok.

Lokal o powierzchni użytkowej 73.5 m² (80 m² po podłodze). - Podłogi w całym lokalu wykonane z gresu polerowanego. - Wszystkie drzwi wewnętrzne premium, lakierowane z litego drewna. - Lakierowane meble na wymiar w kuchni, łazience i ubikacji. - Dwa klimatyzatory, góra i dół. - Sprzęt AGD producentó...

Zobacz ogłoszenie