Mieszkanie na sprzedaż bez pośredników
Miłkowo  

Mieszkanie 2-pokojowe Miłkowo. Zdjęcie 1

Mieszkanie na sprzedaż bez pośredników Miłkowo brak adresu · parter

235 000
4 519 zł/m²
52
2 pok.
Miłkowo - lokalizacja przybliżona
Bezpośrednio od właściciela

Jeśli nie potrzebujesz pośrednika, zaoszczędzisz około 7 100 zł. Potrzebujesz wsparcia? Skorzystaj z pomocy agenta.

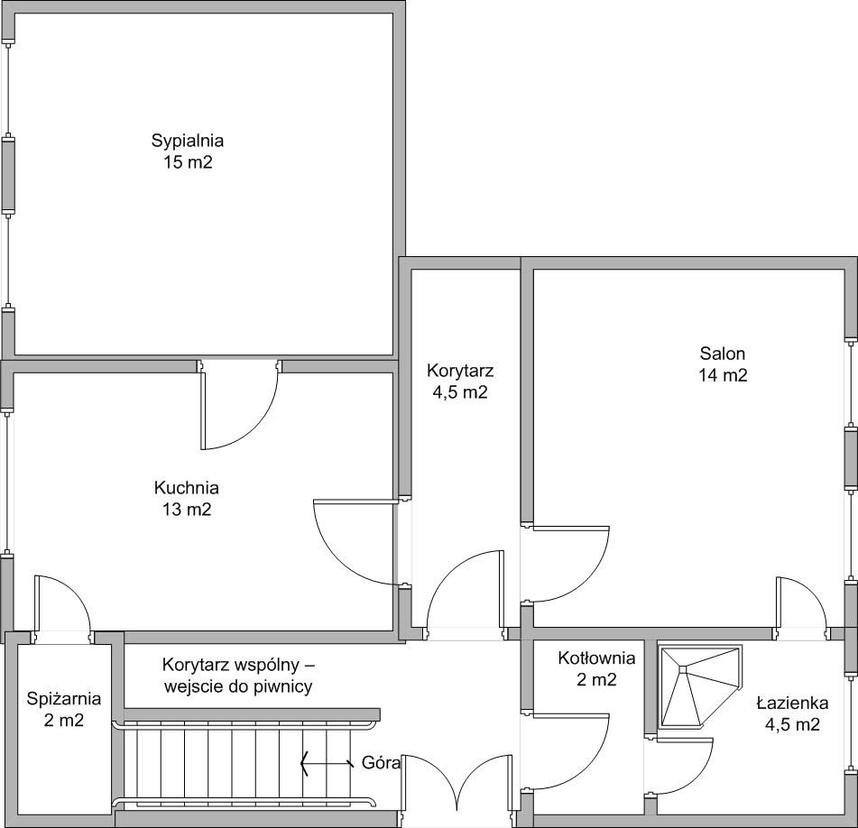
Bezczynszowe mieszkanie na parterze budynku po starej, zabytkowej szkole z czerwonej cegły. Składa się z dwóch pokoi, kuchni ze spiżarnią, przedpokoju, łazienki. Ogrzewanie samodzielne piecem węglowym- kotłownia CO. W jednym z pokoi znajduje się dodatkowo czynny piec kaflowy. Do mieszkania należy piwnica i garaż. Pod oknami ogrodzony, własny ogród. Na całym budynku został niedawno wyremontowany dach, który pokryto dachówką karpiówką. Wejście do budynku wspólne na dwa mieszkania.

  • Na sprzedaż mieszkanie 2-pokojowe o powierzchni 52 m² piwnica, garaż, ogródek
  • Parter w 1-piętrowym domu wielorodzinnym bez windy, rok budowy 1900
  • Miłkowo  
  • Mieszkanie w stanie do odświeżenia okna plastikowe
  • Odrębna własność z księgą wieczystą  
  • Cena do negocjacji  
  • Oferta bezpośrednio od właściciela dodana ponad miesiąc temu i zaktualizowana ponad tydzień temu
Ta nieruchomość może być Twoja od.. sprawdź
47000 zł (20%) Okres spłaty: 30 lat

Podobne mieszkania na sprzedaż

8
Mieszkanie 2-pokojowe Wieleń

195 000

52

2 pok.

Dzień dobry, Na sprzedaż nieruchomość o powierzchni 52 metrów kwadratowych w bezpośrednim sąsiedztwie rzeki Noteć. Mieszkanie umiejscowione jest na 1. piętrze w mini bloku. Nad mieszkaniem znajduje się tylko strych, który również jest do dyspozycji, ale nie wchodzi w skład nieruchomości. Mieszkanie...

Zobacz ogłoszenie
8
Mieszkanie 3-pokojowe Czarnków, ul. Sikorskiego

250 000

48

3 pok.

Sprzedam przytulne mieszkanie własnościowe: III piętro, 3 pokoje, kuchnia, łazienka, balkon. Lokal mieszkalny położony na parterze budynku mieszkalnego wielorodzinnego, posiadający powierzchnię użytkową 48 m² przy ul. Sikorskiego 38. Budynek wielorodzinny, IV-piętrowy, podpiwniczony z parkingiem. ...

Zobacz ogłoszenie
8
Mieszkanie 2-pokojowe Trzcianka, os. Juliusza Słowackiego

239 000

45

2 pok.

Sprzedam mieszkanie 45m2 Dwa pokoje ,osobna kuchnia ,łazienka,balkon,piwnica.Mieszkanie znajduje się na 4 piętrze z ładnym widokiem. W bliskiej odległości pełna infrastruktura szkoły, sklepy ,itp Os Słowackiego Wiecej informacji pod nr info pod tel. Cena 239.000 tys do negocjacji

Zobacz ogłoszenie
8
Mieszkanie 2-pokojowe Trzcianka

275 000

37

2 pok.

Jasne, ciepłe, dwupokojowe mieszkanie po generalnym remoncie - gotowe do zamieszkania! Na sprzedaż wyjątkowe mieszkanie 37m2, usytuowane na 3 piętrze w spokojnej i zielonej okolicy, a jednocześnie blisko centrum. Idealne dla rodziny, pary lub jako inwestycja pod wynajem. Najważniejsze atuty: - mie...

Zobacz ogłoszenie
9
Mieszkanie 2-pokojowe Trzcianka, ul. 27 Stycznia

235 000

48

2 pok.

Mieszkanie na sprzedaż o powierzchni 48,2 m², znajduje się na parterze dwupiętrowego bloku. Oferuje dwa pokoje, korytarz, oddzielną kuchnię oraz piwnicę. Mieszkanie po generalnym remoncie, umeblowane i wyposażone w niezbędne urządzenia. Gotowe do zamieszkania od zaraz. Pełne przeniesienie prawa w...

Zobacz ogłoszenie
5
Mieszkanie 3-pokojowe Drawsko

270 000

61

3 pok.

Sprzedam 3-pokojowe mieszkanie z balkonem + garaż, piwnica i działka - Drawsko (bez pośredników). Na sprzedaż duże, słoneczne i wygodne mieszkanie 3-pokojowe z balkonem typu loggia, położone w miejscowości Drawsko. Sprzedaż bez pośredników. Mieszkanie o powierzchni 61,3 m² znajduje się na drugim p...

Zobacz ogłoszenie