Mieszkanie na sprzedaż bez pośredników
ul. Mikołaja Kopernika Konstantynów Łódzki Centrum

Mieszkanie 2-pokojowe Konstantynów Łódzki Centrum, ul. Mikołaja Kopernika. Zdjęcie 1

Mieszkanie na sprzedaż bez pośredników Konstantynów Łódzki Centrum ul. Mikołaja Kopernika · parter

275 000
6 333 zł/m²
43
2 pok.
Konstantynów Łódzki Centrum, Mikołaja Kopernika - lokalizacja przybliżona
Bezpośrednio od właściciela

Jeśli nie potrzebujesz pośrednika, zaoszczędzisz około 8 300 zł. Potrzebujesz wsparcia? Skorzystaj z pomocy agenta.

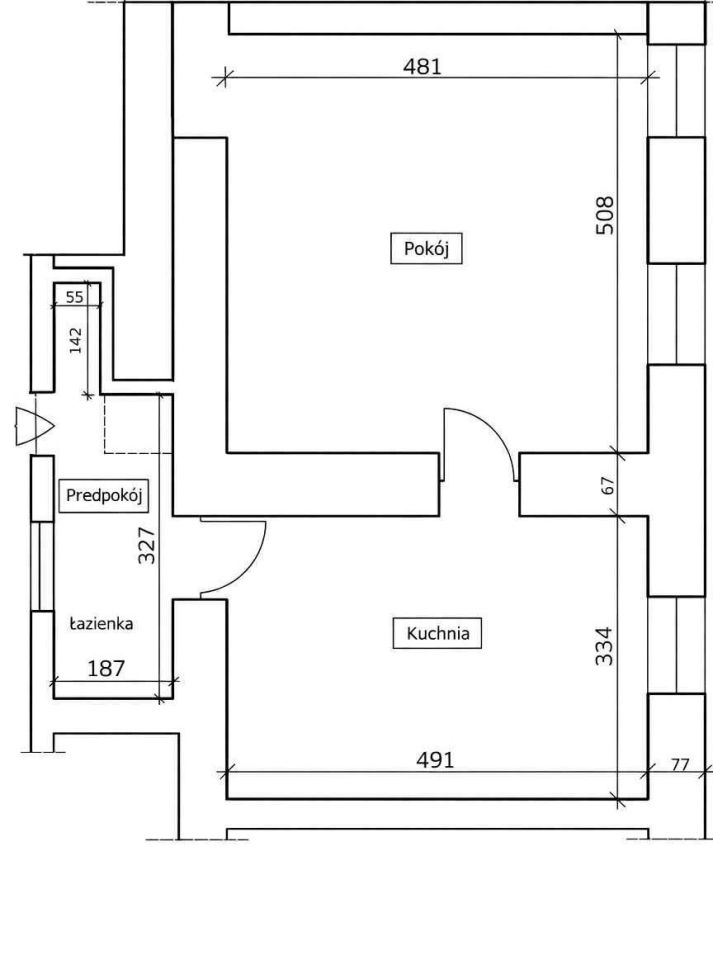
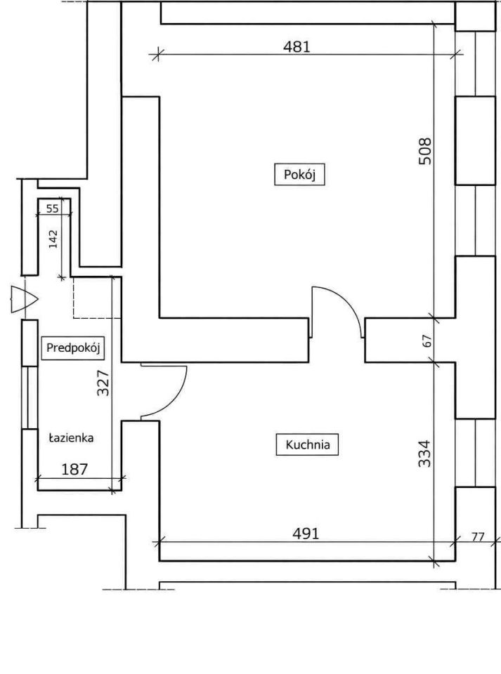
Na sprzedaż mieszkanie o powierzchni 43,42 m², składające się z przestronnego pokoju z aneksem kuchennym, przedpokoju oraz łazienki.

Łazienka znajduje się bezpośrednio przy wejściu do mieszkania (w obrębie lokalu). Istnieje możliwość zmiany jej lokalizacji, co daje duży potencjał aranżacyjny i pozwala na dostosowanie przestrzeni do własnych potrzeb.

Mieszkanie zostało odświeżone – ściany zostały pomalowane, a na podłogach położono nowe panele, dzięki czemu lokal jest gotowy do zamieszkania lub dalszej aranżacji według własnego pomysłu.

Lokal posiada ogrzewanie miejskie. W mieszkaniu brak instalacji gazowej. Ciepła woda nie jest podłączona z sieci miejskiej – istnieje możliwość zastosowania indywidualnego źródła (np. bojlera elektrycznego).

Nieruchomość oferuje duży potencjał aranżacyjny i stanowi świetną propozycję zarówno jako mieszkanie na start, jak i inwestycja pod wynajem. Zachęcam do własnej aranżacji i stworzenia przestrzeni dopasowanej do indywidualnych potrzeb.

Stan prawny uregulowany. Pomagam w uzyskaniu kredytu, jeśli istnieje taka potrzeba.

  • Na sprzedaż mieszkanie 2-pokojowe o powierzchni 43,42 m² piwnica, zewnętrzne miejsce parkingowe, aneks kuchenny
  • Parter w 2-piętrowym domu wielorodzinnym bez windy, rok budowy 1960
  • Konstantynów Łódzki, Centrum ul. Mikołaja Kopernika
  • Mieszkanie w stanie do remontu okna plastikowe
  • Odrębna własność z księgą wieczystą  
  • Oferta bezpośrednio od właściciela dodana ponad miesiąc temu i zaktualizowana ponad tydzień temu
Ta nieruchomość może być Twoja od.. sprawdź
55000 zł (20%) Okres spłaty: 30 lat

Podobne mieszkania na sprzedaż

9
Mieszkanie 3-pokojowe Konstantynów Łódzki, ul. marsz. Józefa Piłsudskiego

367 500

49

3 pok.

Na sprzedaż słoneczne i przytulne, 3-pokojowe mieszkanie o powierzchni 48,50 metrów kwadratowych, mieszczące się na 3. piętrze w 4-piętrowym bloku w Konstantynowie Łódzkim. Mieszkanie jest przestronne i ustawne. W jego skład wchodzi salon, sypialnia, pokój, oddzielna kuchnia, łazienka, WC i przedpo...

Zobacz ogłoszenie
6
Mieszkanie 2-pokojowe Konstantynów Łódzki Centrum, ul. Ignacego Daszyńskiego

224 000

32

2 pok.

Na sprzedaż przytulne mieszkanie o powierzchni 32 m² w bloku z lat 60-tych. Mieszkanie znajduje się na pierwszym piętrze w dwukondygnacyjnym bloku, z własnym ogródkiem oraz wydzielonym, osobnym wejściem. Bezpośredni parking pod mieszkaniem. Bardzo dobra lokalizacja w centrum miasta: w promieniu 20...

Zobacz ogłoszenie
8
Mieszkanie 2-pokojowe Konstantynów Łódzki, ul. Łódzka

220 000

41

2 pok.

Sprzedam mieszkanie w atrakcyjnej lokalizacji. Opis: Mam do zaoferowania słoneczne mieszkanie o powierzchni 41,5 m², położone na 1. piętrze w kamienicy przy ul. Łódzkiej w Konstantynowie Łódzkim. Mieszkanie idealne dla rodziny. Blisko Łodzi. Szczegóły: Metraż: 41,5m² Wysokość mieszkania: około 3,6...

Zobacz ogłoszenie
10
Mieszkanie 2-pokojowe Konstantynów Łódzki Centrum, ul. Łódzka

319 000

42

2 pok.

Sprzedam Oferuję do sprzedaży mieszkania z pełną własnością, do zamieszkania po generalnym remoncie . Znajduje się na 1 piętrze w zadbanej kamienicy ,z centralnym ogrzewaniem miejski . Teren ogrodzony z bramą na pilota i miejscami parkingowymi oraz komórką . Powierzchnia wynosi 42,6 m². Mieszkan...

Zobacz ogłoszenie
17
Mieszkanie 1-pokojowe Konstantynów Łódzki, ul. marsz. Józefa Piłsudskiego

267 360

36

1 pok.

 NA SPRZEDAŻ MIESZKANIE KONSTANTYNÓW ŁÓDZKI, PIERWSZE PIĘTRO!!         Miło mi przedstawić  ofertę mieszkania znajdującego się w samym centrum Konstantynowa Łódzkiego,  które łączy funkcjonalność z niepowtarzalnym  ciepłym klimatem.          Już od wejścia czuć wyjątkową atmosferę - przestronne,  pi...

Zobacz ogłoszenie
11
Mieszkanie 2-pokojowe Konstantynów Łódzki Centrum, ul. marsz. Józefa Piłsudskiego

369 000

48

2 pok.

Na sprzedaż funkcjonalne mieszkanie 2-pokojowe z niezależnymi (nieprzechodnimi) pokojami. Lokal znajduje się na 2. piętrze i posiada osobną łazienkę oraz toaletę. Atuty: duży balkon 2 szafy w zabudowie wyremontowana instalacja elektryczna Mieszkanie wygodne i gotowe do zamieszkania. Zapraszam do ...

Zobacz ogłoszenie