Ogłoszenie usunięte

Czechowice-Dziedzice

4-pokojowe mieszkanie na sprzedaż Bez pośrednika

Czechowice-Dziedzice · 450 000 zł

Ogłoszenie właściciela - bez pośredników

Mieszkanie 4-pokojowe Czechowice-Dziedzice. Zdjęcie 1
Mieszkanie 4-pokojowe Czechowice-Dziedzice. Zdjęcie 1

Bez pośrednika. Oszczędzasz 13 500 zł na prowizji pośrednika!

Witam,
mam na sprzedaż mieszkanie w ścisłym centrum Czechowic-Dziedzic. Wszystko w obrębie 500 m.

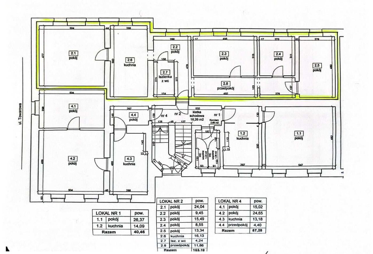
Mieszkanie do generalnego remontu o dużym metrażu 103 m2, z możliwością podziału na dwa lokale (wcześniej były dwa lokale). Zwykle zakupione mieszkania i tak są remontowane, tutaj można zrobić własną aranżację.

Mieszkanie bardzo dobrze zlokalizowane, idealne do inwestycji pod wynajem po podziale na dwa lokale.

Mieszkanie znajduje się na parterze.
Ogrzewanie miejskie.
Wspólnota mieszkaniowa.
Dużo miejsca do parkowania na terenie zamkniętym.

Mieszkanie wolne od zaraz, nie jest niczym obciążone, jeden właściciel.

Mieszkanie sprzedaję bez pośredników.
Cena do negocjacji.

Układ mieszkania jak na zamieszczonych zdjęciach. Zdjęć z wnętrza nie udostępniam, można umówić się na oględziny dla zainteresowanych.

Jeżeli dzwonisz w sprawie ogłoszenia, proszę wysłać SMS, abym ewentualnie mógł oddzwonić, gdybym nie miał możliwości odbioru lub zasięgu.

  • Na sprzedaż mieszkanie 4-pokojowe o powierzchni 103 m²
  • parter w 2-piętrowym bloku
  • Czechowice-Dziedzice
  • Mieszkanie w stanie do remontu
ponad miesiąc temu
8
Mieszkanie 3-pokojowe Czechowice-Dziedzice, ul. Mieczysława Michałowicza

Czechowice-Dziedzice ul. Mieczysława Michałowicza Mieszkanie na sprzedaż

3 pokoje 68 2 piętro Bez pośrednika
500 000
7 353 zł / m²
ponad miesiąc temu
22
Mieszkanie 5-pokojowe Czechowice-Dziedzice, ul. Klasztorna

Czechowice-Dziedzice ul. Klasztorna Mieszkanie na sprzedaż

5 pokoi 99 1 piętro Bez pośrednika
499 000
5 063 zł / m²
ponad miesiąc temu
10
Mieszkanie 3-pokojowe Czechowice-Dziedzice, ul. Ignacego Łukasiewicza

Czechowice-Dziedzice ul. Ignacego Łukasiewicza Mieszkanie na sprzedaż

3 pokoje 78 2 piętro Bez pośrednika
325 000
4 194 zł / m²
5 dni temu
9
Mieszkanie 3-pokojowe Czechowice-Dziedzice, ul. Łagodna

Czechowice-Dziedzice ul. Łagodna Mieszkanie na sprzedaż

3 pokoje 68 4 piętro Bez pośrednika
610 000
8 947 zł / m²
ponad tydzień temu
15
Mieszkanie 4-pokojowe Jaworze, ul. Zdrojowa

Jaworze ul. Zdrojowa Mieszkanie na sprzedaż

4 pokoje 119 1 piętro
469 000
3 941 zł / m²
ponad miesiąc temu
8
Mieszkanie 2-pokojowe Czechowice-Dziedzice, ul. Studencka

Czechowice-Dziedzice ul. Studencka Mieszkanie na sprzedaż

2 pokoje 88 2 piętro Bez pośrednika
580 000
6 591 zł / m²