Mieszkanie na sprzedaż bez pośredników
Brzeg  

Mieszkanie 3-pokojowe Brzeg. Zdjęcie 1

Mieszkanie na sprzedaż bez pośredników Brzeg brak adresu · 3 piętro

333 000
7 085 zł/m²
47
3 pok.
Brzeg - lokalizacja przybliżona
Bezpośrednio od właściciela

Jeśli nie potrzebujesz pośrednika, zaoszczędzisz około 10 000 zł. Potrzebujesz wsparcia? Skorzystaj z pomocy agenta.

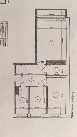
Na sprzedaż dwustronne mieszkanie o powierzchni 47 m², położone na 3. piętrze w budynku mieszkalnym w Brzegu (rejon Rybacka / Mickiewicza).

Układ mieszkania:
Salon,
Dwa oddzielne pokoje,
Osobna kuchnia,
Łazienka,
Przedpokój,
Piwnica - ok. 3,3 m²

Mieszkanie jest dwustronne, bardzo funkcjonalne, bez przechodnich pokoi. Dobry rozkład pozwala na wygodne użytkowanie zarówno przez rodzinę, jak i najemców.

Stan i informacje dodatkowe:
Mieszkanie jest aktualnie wynajmowane - możliwość przejęcia najmu.
Mili, spokojni sąsiedzi.
Niskie koszty utrzymania - 750 zł (wszystko).
Duży potencjał inwestycyjny.

Lokalizacja:
Spokojna, dobrze skomunikowana część Brzegu.
W pobliżu sklepy, szkoły, punkty usługowe i komunikacja.

SPRZEDAŻ LUB ZAMIANA
Rozważę zamianę na:
halę magazynową,
magazyn,
warsztat,
inną nieruchomość użytkową.
Możliwa dopłata w jedną lub drugą stronę. Interesują mnie konkretne propozycje.

  • Na sprzedaż mieszkanie 3-pokojowe o powierzchni 47 m² piwnica, osobna kuchnia
  • 3 piętro w bloku  
  • Brzeg  
  • Oferta bezpośrednio od właściciela dodana ponad miesiąc temu i zaktualizowana ponad tydzień temu
Ta nieruchomość może być Twoja od.. sprawdź
67000 zł (20%) Okres spłaty: 30 lat

Podobne mieszkania na sprzedaż

8
Mieszkanie 3-pokojowe Brzeg, ul. Piwowarska

359 000

59

3 pok.

Sprzedam mieszkanie własnościowe na ul. PIWOWARSKIEJ (wieżowiec). Mieszkanie składa się z 3 pokoi, łazienki, ubikacji, przedpokoju, balkonu. Do mieszkania przynależy piwnica. Parking znajduje się przed klatką, a także z tyłu budynku - ogrodzony, otwierany z prywatnych tel. Ogłoszenie prywatne, be...

Zobacz ogłoszenie
6
Mieszkanie 2-pokojowe Brzeg, ul. Stare Koszary

295 000

50

2 pok.

Sprzedam mieszkanie 50m, 2 pokoje, II piętro. Mieszkanie po remoncie, wymieniona instalacja elektryczna, plastikowe okna. Ogrzewanie gazowe - roczny piec dwufunkcyjny. W pobliżu przedszkole, szkoły, sklepy, plac zabaw dla dzieci.  Spokojne miejsce zlokalizowane przy ulicy Stare Koszary. Sprzedaż b...

Zobacz ogłoszenie
7
Mieszkanie 3-pokojowe Brzeg, ul. Chocimska

410 000

64

3 pok.

Na sprzedaż mieszkanie na 1 piętrze w 12-piętrowym bloku z windą z 1995 roku Mieszkanie w dobrym stanie, okna plastikowe Mieszkanie spółdzielcze własnościowe w Brzegu ul. Chocimska wieżowiec. Mieszkanie 64 M2 dwustronne z balkonem typu loggia ok. 5m2. Do mieszkania przynależy piwnica ok 3m2 oraz na ...

Zobacz ogłoszenie
3
Mieszkanie 1-pokojowe Brzeg, ul. Bohaterów Westerplatte

299 999

31

1 pok.

Polecamy Państwu na sprzedaż 3 - pokojowy apartament o powierzchni 31,70 mieszczący się na 2 piętrze IV piętrowego budynku w inwestycji w Brzegu przy ul. Westerplatte, od dewelopera z ugruntowaną pozycją na rynku nieruchomości działającego w branży od 2014 roku odznaczającego się tym iż wykorzystuj...

Zobacz ogłoszenie
3
Mieszkanie 3-pokojowe Brzeg

399 961

54

3 pok.

Polecamy Państwu na sprzedaż 3 - pokojowy apartament o powierzchni 54,35 mieszczący się na 3 piętrze IV piętrowego budynku w inwestycji w Brzegu przy ul. Westerplatte, od dewelopera z ugruntowaną pozycją na rynku nieruchomości działającego w branży od 2014 roku odznaczającego się tym iż wykorzystuj...

Zobacz ogłoszenie
4
Mieszkanie 2-pokojowe Brzeg

370 000

46

2 pok.

Polecamy Państwu na sprzedaż 2- pokojowy apartament Premium o powierzchni 46,25 mieszczący się na 3 piętrze IV piętrowego budynku w inwestycji która liczy 61 mieszkań oraz dwa lokale usługowe w Brzegu przy ul. Trzech Kotwic, od dewelopera z ugruntowaną pozycją na rynku nieruchomości działającego w ...

Zobacz ogłoszenie