Poświętne
ul. Pułtuska
lokal na sprzedaż Bez pośrednika

Lokal Poświętne, ul. Pułtuska
Cena
119 000
Powierzchnia
70
Cena za m²
1 700
Poświętne · 119 000 zł

Ogłoszenie właściciela - bez pośredników

Lokal Poświętne, ul. Pułtuska. Zdjęcie 1
Lokal Poświętne, ul. Pułtuska. Zdjęcie 1

Bez pośrednika. Oszczędzasz 3 600 zł na prowizji pośrednika!

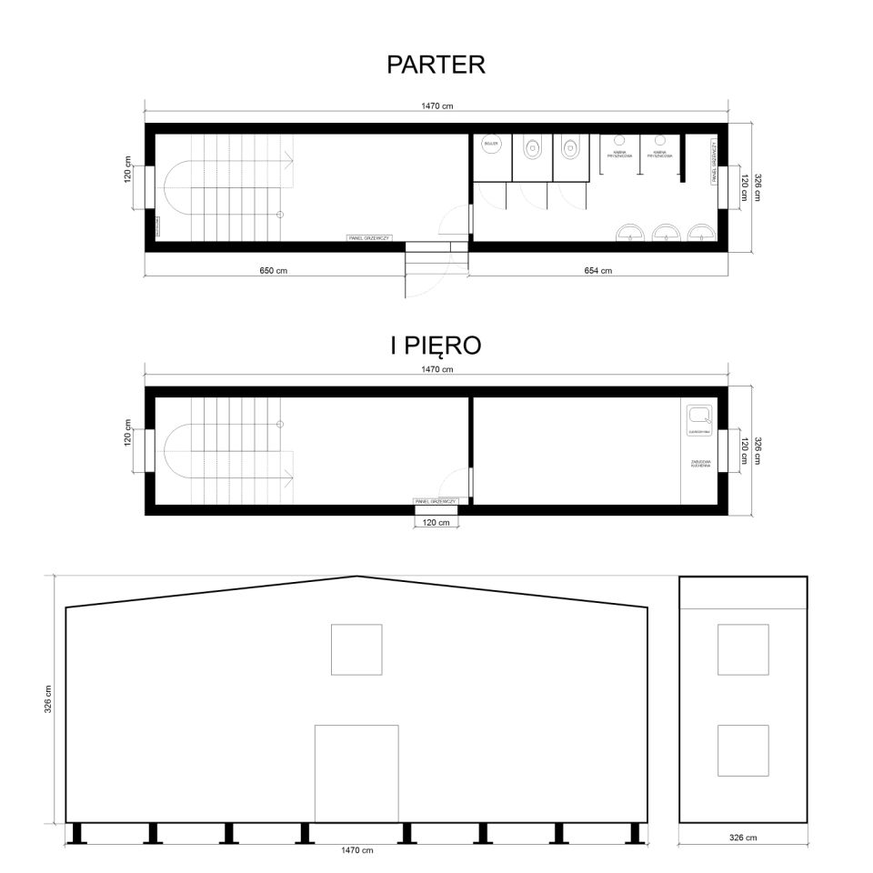
Na sprzedaż nowoczesny dwukondygnacyjny budynek modułowy, idealny jako biuro, zaplecze socjalne, szatnia, punkt obsługi lub zaplecze budowy. Obiekt w bardzo dobrym stanie technicznym – czysty, suchy, gotowy do demontażu i ponownego montażu w nowej lokalizacji.
Specyfikacja:
• Powierzchnia zabudowy: ok. 70 m²
• Konstrukcja stalowa, elewacja z płyt warstwowych
• Dwie kondygnacje połączone klatką schodową z balustradami metalowymi
• Pomieszczenia biurowe i zaplecze socjalne na piętrze
• Pomieszczenie sanitarne z kabinami WC, umywalkami i miejscem na prysznice
• Okna PCV zapewniające dobre doświetlenie wnętrz
• Sufity podwieszane z oświetleniem LED
• Podłogi w płytkach gresowych
• Ogrzewanie elektryczne konwektorowe
• Instalacja elektryczna i wodno-kanalizacyjna sprawna
• Drzwi stalowe zewnętrzne i gładkie drzwi wewnętrzne
Układ pomieszczeń:
Parter:
• Przedsionek / wejście główne
• Pomieszczenie socjalne z zabudową kuchenną
• Toalety i natryski
• Klatka schodowa z balustradą metalową
Piętro:
• Dwa pomieszczenia
• Możliwość adaptacji pod dowolne przeznaczenie

Lokalizacja:
Obiekt obecnie znajduje się na terenie przemysłowym, z wygodnym dojazdem dla ciężarówek i HDS.
________________________________________
Idealny do wykorzystania jako:
• biuro firmy produkcyjnej lub budowlanej,
• zaplecze magazynowe,
• kontener socjalny,
• zaplecze budowy lub tymczasowy punkt obsługi klienta.

  • ul. Pułtuska, Poświętne, gmina Płońsk, powiat płoński
  • Na sprzedaż lokal o powierzchni 70 m²
  • Oferta dodana bezpośrednio przez właściciela ponad miesiąc temu i zaktualizowana ponad tydzień temu
Wróć
Największa baza ogłoszeń bez pośredników
Zarejestruj się, aby przejść dalej
lub

Kontynuując akceptujesz
Regulamin i Politykę prywatności

Masz już konto na adresowo.pl?
Zaloguj się

Mamy dla Ciebie kredyt hipoteczny z niską ratą! Chcesz poznać szczegóły?

Kontakt z VeloBank:
- ofertę, wniosek i decyzję o przyznaniu kredytu w procesie online,
- wsparcie eksperta hipotecznego na każdym kroku,
- kredyt do 90% wartości nieruchomości.





Wyrażam zgodę na przetwarzanie moich danych osobowych zawartych w formularzu na stronie adresowo.pl przez VeloBank S.A. z siedzibą w Warszawie przy Rondo Ignacego Daszyńskiego 2C (Bank), a tym samym na ich przetwarzanie, w tym profilowanie, przez Bank w celu marketingu produktów i usług Banku za pośrednictwem rozmowy telefonicznej i sms. Zgoda może być w każdej chwili wycofana. Cofnięcie zgody nie ma wpływu na zgodność z prawem przetwarzania danych przed jej wycofaniem.