Nieruchomość komercyjna na sprzedaż bez pośredników
ul. Wolności Mieroszów Centrum

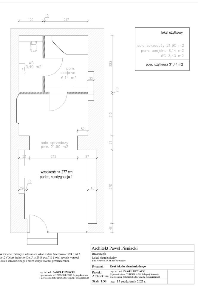
Lokal Mieroszów Centrum, ul. Wolności. Zdjęcie 1

Nieruchomość komercyjna na sprzedaż bez pośredników Mieroszów Centrum ul. Wolności

60 000
1 908 zł/m²
31
Mieroszów Centrum, Wolności - lokalizacja przybliżona
Bezpośrednio od właściciela

Jeśli nie potrzebujesz pośrednika, zaoszczędzisz około 1 800 zł. Potrzebujesz wsparcia? Skorzystaj z pomocy agenta.

Do sprzedania lub wynajęcia lokal użytkowy w dobrej lokalizacji idealny na zakład fryzjerski/kosmetyczny.
Lokal w trakcie remontu.

Lokal bez długów i obciążeń.

  • ul. Wolności, Mieroszów Centrum, powiat wałbrzyski  
  • Na sprzedaż lokal o powierzchni 31,44 m²  
  • Cena do negocjacji  
  • Oferta bezpośrednio od właściciela dodana ponad miesiąc temu i zaktualizowana ponad tydzień temu
Ta nieruchomość może być Twoja od.. sprawdź
12000 zł (20%) Okres spłaty: 30 lat

Podobne nieruchomości komercyjne na sprzedaż

10
Lokal Boguszów-Gorce Boguszów, ul. Główna

70 000

42

Gotowy sklep zoologiczno - wędkarski Sprzedam lokal użytkowy o powierzchni 42,6 m2, zlokalizowany przy ul. Głównej (drodze wojewódzkiej nr 367) w Boguszowie-Gorcach. Obecnie w lokalu prowadzony jest sklep zoologiczno - wędkarski. Cena sprzedaży obejmuje istniejące umeblowanie lokalu. Dla zaintereso...

Zobacz ogłoszenie
4
Garaż/miejsce parkingowe Boguszów-Gorce Boguszów, ul. Kolejowa

46 999

17

OKAZJA Sprzedam garaże (17 m²) x 4, położone w ciągu innych budynków, przy ruchliwej ulicy Kolejowej w Boguszowie. Istnieje możliwość zakupu nieruchomości jako jeden budynek z perspektywą na rozbudowę w górę lub zakup minimum 2 garaży (2 x 17 m²). OPIS SZCZEGÓŁOWY: - Budynek został oddany do uży...

Zobacz ogłoszenie
7
Lokal Wałbrzych, ul. marsz. Józefa Piłsudskiego

72 000

17

Na sprzedaż prezentujemy lokal użytkowy przy ul. Pilsudzkiego 43 - wejście od ul.Kubeckiego. Lokal posiada witrynę oraz wejście od ulicy. Lokal idealny pod działalność kosmetyczną, usługową, małą gastronomię. W pobliżu szkoła średnia, szpital.  Lokal jest w trakcie remontu. Nabywca może wykończyć wg...

Zobacz ogłoszenie
6
Lokal Wałbrzych Nowe Miasto, ul. marsz. Józefa Piłsudskiego

80 000

12

Na sprzedaż ładny lokal użytkowy z nowoczesnym remontem. - Lokalizacja: w dzielnicy Nowe Miasto, przy ulicy Piłsudskiego. - Powierzchnia: 12,3 m². - Układ: lokal składa się z części handlowo-usługowej oraz wyposażonego WC. - Przeznaczenie: lokal gotowy do użytku w działalności gospodarczej jako biu...

Zobacz ogłoszenie
1
Lokal Wałbrzych Śródmieście, ul. Henryka Sienkiewicza

60 000

7

Mały lokal , w którym prowadzona była przez ponad 20 lat kwiaciarnia. Znajduje sie w centrum Starego Miasta.

Zobacz ogłoszenie
7
Lokal Wałbrzych Śródmieście, al. Wyzwolenia

78 000

21

Sprzedam lokal użytkowy o powierzchni 21m2 składający się z dwóch pomieszczeń (sala+wc).Ogrzewanie elektryczne ,miejsce parkingowe przed sklepem. Lokalizacja sródmieście aleja Wyzwolenia 32(obok Starostwo powiatowe ,wodociągi, 2 L.O.)Więcej informacji pod numerem telefonu.

Zobacz ogłoszenie