Nieruchomość komercyjna na sprzedaż bez pośredników
ul. Głogowska Chocianów

Lokal Chocianów, ul. Głogowska. Zdjęcie 1

Nieruchomość komercyjna na sprzedaż bez pośredników Chocianów ul. Głogowska

341 000
4 400 zł/m²
77
Chocianów, Głogowska - lokalizacja przybliżona
Bezpośrednio od właściciela

Jeśli nie potrzebujesz pośrednika, zaoszczędzisz około 10 200 zł. Potrzebujesz wsparcia? Skorzystaj z pomocy agenta.

Witam!



Przedstawiam ofertę sprzedaży lokalu o powierzchni 77.50 m2 w nowym budynku przy ul. Głogowskiej w Chocianowie. Nieruchomość sprzedawana bezpośrednio przez dewelopera.



BUDYNEK
Oddanie budynku do użytkowania planowane jest na III/IV kwartał 2023 roku. Teren zewnętrzny zostanie zagospodarowany wraz z ciągami pieszo-jezdnymi i parkingami, placem zabaw oraz terenami zielonymi zgodnie z wizualizacjami.



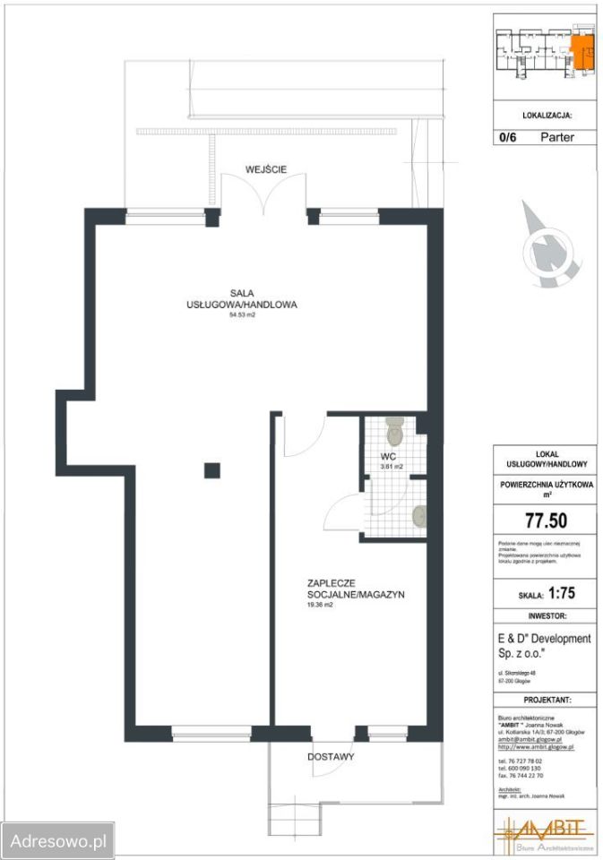
LOKAL
Lokal znajduje się na parterze budynku i składa się na nie:
• open space,
• wydzielone pomieszczenie,
• WC.



DODATKOWE INFORMACJE
• sprzedawane w stanie deweloperskim,
• ekspozycja na północ oraz południe,
• energooszczędne okna PCV,
• drzwi wejściowe antywłamaniowe wyposażone w zamki patentowe,
• do lokalu przypisana jest piwnica (część magazynowa) w cenie - 500 PLN brutto za m2.



CENA - 341 000 PLN brutto



* brak podatku PCC



W razie pytań jestem dostępny.

  • ul. Głogowska, Chocianów, powiat polkowicki  
  • Na sprzedaż lokal o powierzchni 77,50 m²  
  • Oferta bezpośrednio od właściciela dodana ponad miesiąc temu i zaktualizowana ponad tydzień temu
Ta nieruchomość może być Twoja od.. sprawdź
68000 zł (20%) Okres spłaty: 30 lat

Podobne nieruchomości komercyjne na sprzedaż

5
Lokal Polkowice

399 000

73

Sprzedam lokal handlowo-usługowy o łącznej powierzchni 73,70m2 znajdujący się w Rynku w Polkowicach. Lokal składa się z parteru o powierzchni 45 m2 na którym znajduje się sala sprzedaży+ WC+własne zejście do zaplecza które znajduje się w jasnej, ciepłej kondygnacji która znajduje się na poziomie -1 ...

Zobacz ogłoszenie
9
Lokal Polkowice, ul. Fryderyka Chopina

345 000

57

Sprzedam lokal użytkowy na działalność handlową, usługową, biurową itp. o pow. 57,12 m2. Lokal położony przy głównym deptaku na osiedlu CENTRUM, przy którym znajdują się sklepy i lokale usługowe. Bliskość parkingu. Lokal posiada: - główne pomieszczenie o pow. 40 m2, - pomieszczenie socjalne o pow....

Zobacz ogłoszenie
15
Lokal Chocianów, pl. Wolności

249 999

47

Do kupienia lokal handlowo-usługowy w centrum Chocianowa o powierzchni 47m2. Lokal składa się z sali sprzedaży (ok 28m2) toalety, pomieszczenia przechodniego i magazynu (ok 13m2).   Opłaty: zarządca i  wywóz śmieci ok 180zł/mies. woda i prąd według zużycia internet- możliwość podłączenia   Możliwość...

Zobacz ogłoszenie
8
Lokal Chocianów, pl. Wolności

250 000

41

na sprzedaż lokal w centrum chocianowa Pl. Wolności 3. Duża witryna wychodząca na rynek miasta. Lokal w ciagłym wynajmie Lokal bezczynszowy - niskie koszty do wspólnoty mieszkaniowej. więcej pod telefonem.

Zobacz ogłoszenie
12
Lokal Chocianów, ul. Stefana Żeromskiego

312 500

125

Lokal użytkowy po aptece, parter plus piętro. Parter 72 m, piętro 53 m. Na parterze znajduje się ganek oraz 4 inne pomieszczenia. Ubikacja również znajduje się na parterze. Z parteru wejście do dwóch piwnic. Na piętrze znajduje się 5 pomieszczeń, w tym osobna łazienka i ubikacja. Rampa załadunkowa...

Zobacz ogłoszenie