Nieruchomość komercyjna na sprzedaż bez pośredników
ul. Henryka Nitschmanna Elbląg Centrum

Lokal Elbląg Centrum, ul. Henryka Nitschmanna. Zdjęcie 1

Nieruchomość komercyjna na sprzedaż bez pośredników Elbląg Centrum ul. Henryka Nitschmanna

949 000
5 454 zł/m²
174
Elbląg Centrum, Henryka Nitschmanna - lokalizacja przybliżona
Bezpośrednio od właściciela

Jeśli nie potrzebujesz pośrednika, zaoszczędzisz około 28 500 zł. Potrzebujesz wsparcia? Skorzystaj z pomocy agenta.

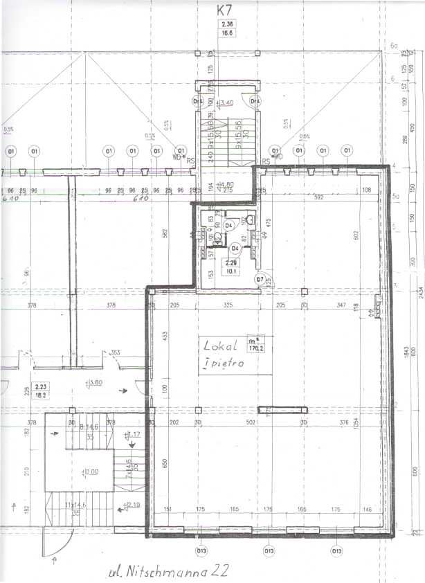
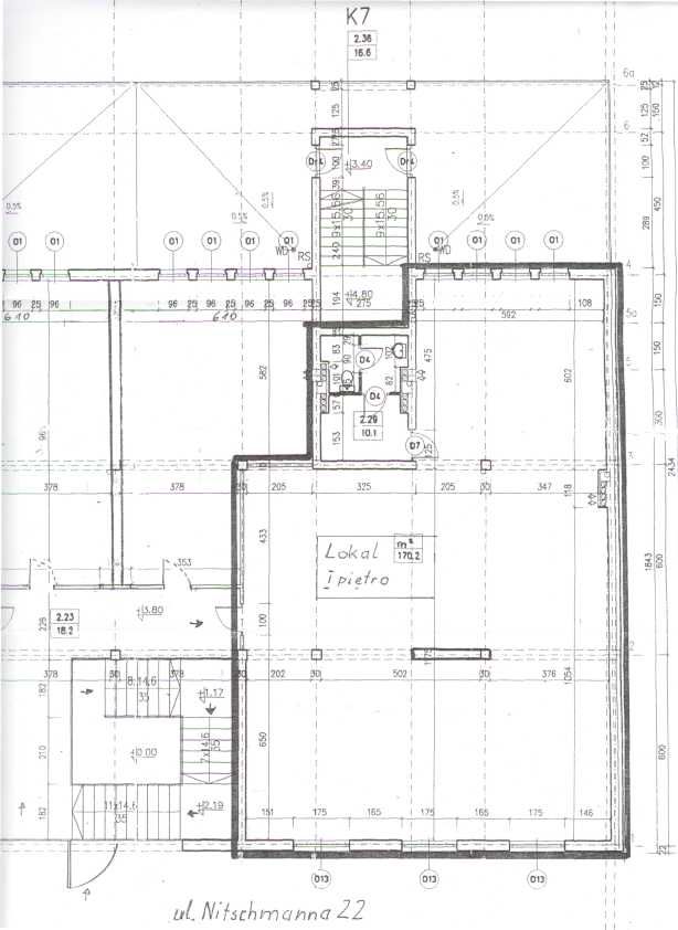
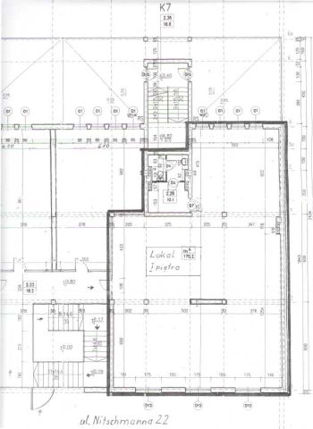
Lokal użytkowy o powierzchni 174 m2 w centrum miasta. Doskonała lokalizacja , w pobliżu UM Elbląg, Sąd Rejonowy, duże parkingi. Możliwa adaptacja na kilka pomieszczeń.

lokalizacja : ul. Nitschmanna 22 ( 20m od ulicy Hetmańskiej)
położenie : I piętro
opis wykończenia lokalu:
ściany - płyty gips. karton
sufit - podwieszany płyty gips karton
podłoga - płytki gres.
zasilanie - 220V;380V
liczniki - c.o. i c.w.u.
pomieszczenie socjalne + wc
Lokal jest własnością prywatną, w budynku zarządzanym przez wspólnotę mieszkaniową.

  • ul. Henryka Nitschmanna, Elbląg Centrum  
  • Na sprzedaż lokal o powierzchni 174 m²  
  • Cena do negocjacji  
  • Świadectwo Energetyczne SCHE/****/***/2024 EU: 72.59, EK: 110.3, EP: 91.7, Jednostkowa wielkość emisji: 0.0322
  • Oferta bezpośrednio od właściciela dodana ponad miesiąc temu
Ta nieruchomość może być Twoja od.. sprawdź
190000 zł (20%) Okres spłaty: 30 lat

Podobne nieruchomości komercyjne na sprzedaż

7
Lokal Elbląg Centrum, ul. 1 Maja

890 000

202

Sprzedam lokal użytkowy o łącznej powierzchni 202,80 m2, usytuowany na III piętrze budynku administracyjno-usługowo-handlowego, położonego w centrum Elbląga, w pasażu ul. 1 Maja. Lokal składa się z: - 8 pomieszczeń, - korytarza, - pomieszczenia technicznego, - WC. Wysokość pomieszczeń powyżej 2,2....

Zobacz ogłoszenie
1
Lokal Elbląg, ul. Studzienna

650 000

112

Na sprzedaż lokal gastronomiczny o powierzchni 112 m², położony w sercu elbląskiej starówki. Restauracja działa nieprzerwanie od 2011 roku i przez 13 lat zyskała status miejsca kultowego - zarówno wśród mieszkańców, jak i turystów z Polski i zagranicy. Cena sprzedaży: 650 000 zł (5 800 zł/m²) Loka...

Zobacz ogłoszenie
8
Lokal Elbląg Centrum, ul. Hetmańska

835 000

128

Szukasz prestiżowego lokalu użytkowego w centrum Elbląga? Zależy Ci na dogodnym dostępie dla Klientów? Chcesz mieć lokal w dobrej dzielnicy. Jeśli tak, ta oferta jest właśnie dla Ciebie! NA SPRZEDAŻ LOKAL powierzchnia: 128 m2 cena: 835 000 zł. (6523 zł./m2) kondygnacja: parter własność bez obci...

Zobacz ogłoszenie
18
Lokal Elbląg, pl. Dworcowy

661 000

66

Sprzedam bezpośrednio lokal użytkowy w Elblągu przy Placu Dworcowym 3a o powierzchni 66.1 m2, ostatnio użytkowany jako gabinet lekarski. Składa się z: - poczekalni(18,19 m2), - gabinetu nr 1 (18,12 m2), - gabinetu nr 2 (15,49 m2), - pomieszczenia gospodarczego (2,59 m2) oraz dwóch toalet. Loka...

Zobacz ogłoszenie
7
Lokal Elbląg, ul. Żuławska

720 000

277

Na sprzedaż Budynek usługowy o pow. 277m2 położony na działce o pow. 0,0817 HA, Elbląg, ul. Żuławska, wyjazd na drogę ekspresową S7. Na sprzedaż jedno kondygnacyjny budynek usługowy o pow. 277m2 usytuowany na działce o pow. 0,0817 HA, nr działki 201/5. Idealna lokalizacja, pożądana przez inwestorów...

Zobacz ogłoszenie
1
Lokal Elbląg

1 185 000

150

Sprzedam lokal usługowy z długoletnią umową najmu z sieciowymi najemcami! ROI ponad 10% Najemcami są sieć spożywcza oraz sieć księgarni (mieszcząca się tutaj od ponad 20 lat) Budynek znajduje się w parterze historycznej kamienicy, z odnowioną elewacją, blisko centrum miasta Lokal posiada witryny ...

Zobacz ogłoszenie