Nieruchomość komercyjna na sprzedaż bez pośredników
Centrum Międzyrzecz

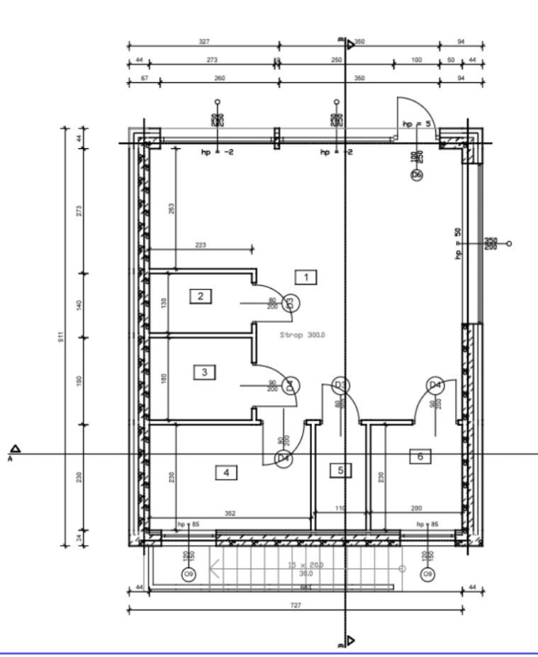
Nieruchomość komercyjna Międzyrzecz Centrum. Zdjęcie 1

Nieruchomość komercyjna na sprzedaż bez pośredników Międzyrzecz Centrum

300 000
5 455 zł/m²
55
Międzyrzecz Centrum - lokalizacja przybliżona
Bezpośrednio od właściciela

Jeśli nie potrzebujesz pośrednika, zaoszczędzisz około 9 000 zł. Potrzebujesz wsparcia? Skorzystaj z pomocy agenta.

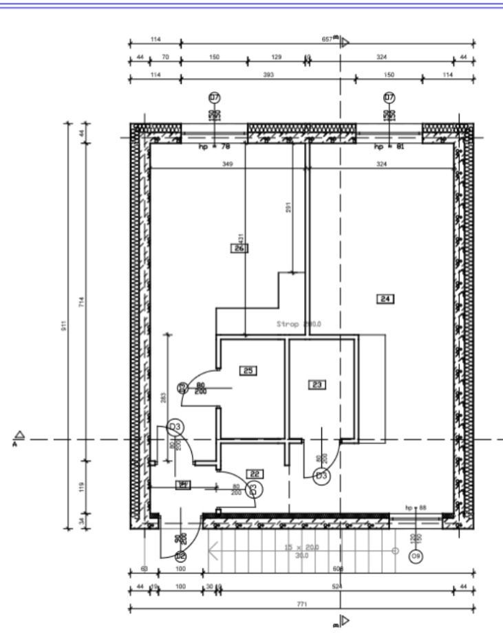
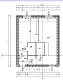
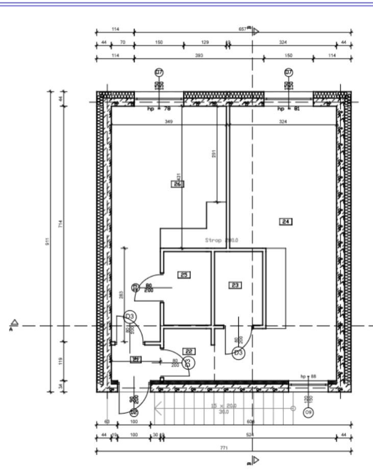
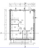
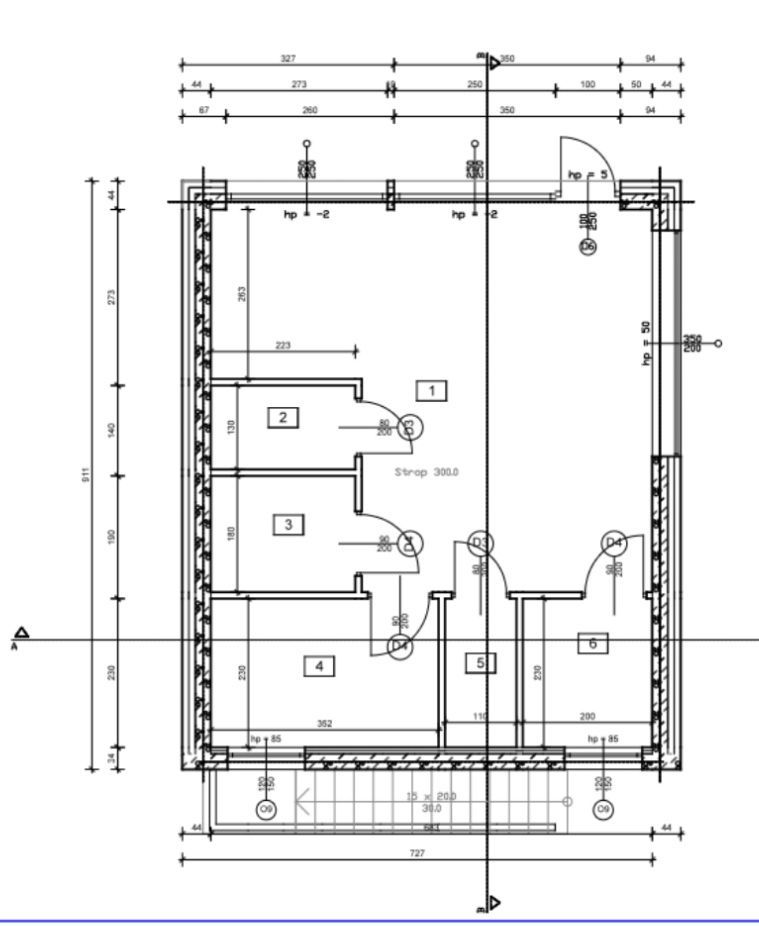
Na sprzedaż budynek handlowo-usługowy w centrum Międzyrzecza z projektem nadbudowy o część mieszkalną.

Nieruchomość z ogromnym potencjałem inwestycyjnym.

* Powierzchnia użytkowa istniejącego budynku: 55 m²
* Planowana powierzchnia całkowita po rozbudowie: 110 m²
* Gotowa dokumentacja projektowa oraz pozwolenie na przebudowę i nadbudowę.
* Projekt obejmuje stworzenie dodatkowej kondygnacji z funkcją mieszkalną.

Idealna lokalizacja:
* Centrum miasta - duży ruch pieszy i samochodowy.
* Świetna widoczność z ulicy.
* Parking.
* Możliwość prowadzenia działalności usługowej, handlowej lub biurowej, oraz zamieszkania na piętrze.

Nieruchomość doskonale sprawdzi się dla inwestora, który szuka przestrzeni z gotową dokumentacją techniczną i możliwością szybkiej realizacji rozbudowy.

Cena: 300.000 zł + 23% VAT.

Zapraszam do kontaktu telefonicznego.

  • Międzyrzecz Centrum, powiat międzyrzecki  
  • Na sprzedaż nieruchomość komercyjna o powierzchni 55 m²  
  • Oferta bezpośrednio od właściciela dodana ponad miesiąc temu
Ta nieruchomość może być Twoja od.. sprawdź
60000 zł (20%) Okres spłaty: 30 lat

Podobne nieruchomości komercyjne na sprzedaż

7
Lokal Skwierzyna, ul. Stefana Batorego

300 000

64

Sprzedam lokal handlowo-usługowy wolnostojący w centrum miasta , przy głównej ulicy. Budynek wybudowany w 2018 r. Dwie toalety, pomieszczenie gospodarcze i pomieszczenie główne. Sprzedaż od osoby prywatnej bez pośredników. Do lokalu przynależy działka o powierzchni 195 m2 .

Zobacz ogłoszenie
5
Lokal Skwierzyna, ul. 2 Lutego

299 000

45

Witam, sprzedam lokal użytkowy, jak w temacie. Lokal świetnie zlokalizowany. Powierzchnia: 45 m + zaplecze socjalne i toaleta. Obecnie lokal jest wynajmowany pod działalność usługową - znajduje się w nim centrum ubezpieczeń. Można przejąć umowę dzierżawy.

Zobacz ogłoszenie
25
Hotel/pensjonat Gorzyca

zapytaj

1500

Do wynajęcia nieruchomość zlokalizowana w Gorzycy, woj. Lubuskie, pow. Międzyrzecz na terenie XIX- wiecznego zespołu pałacowo- parkowego ( 8 ha)położonego nad rzeką Obrą, 5 km od drogi S3 (Świnoujście-Czechy) i 7 km od Ratusza w Międzyrzeczu w kierunku na Sulęcin (droga krajowa nr 137). Budynek zos...

Zobacz ogłoszenie
5
Lokal Międzyrzecz Centrum

249 000

44

Sprzedam! Lokal użytkowy w centrum Międzyrzecza o powierzchni 44 m2. Do lokalu doprowadzony jest gaz. Świetnie nadaje się na biuro, sklep, usługi fryzjerskie, kosmetyczne itp. Możliwość przerobienia na mieszkanie. Więcej informacji udzielę telefonicznie. Polecam.

Zobacz ogłoszenie
8
Lokal Kalsko

260 000

210

Sprzedam lub wydzierżawię budynek mieszkalny o powierzchni użytkowej 210 m² wraz z poddaszem z możliwością zagospodarowania o powierzchni 270 m² oraz działką dojazdową o powierzchni 713 m². Miejscowość Kalsko, koło Międzyrzecza. Cena do negocjacji.

Zobacz ogłoszenie
4
Lokal Głębokie

296 000

37

Na sprzedaż punkt gastronomiczny zlokalizowany na Ośrodku Wypoczynkowym Głębokie koło Międzyrzecza, zaledwie 5 metrów od wjazdu na główną plażę. Powierzchnia Budynku: 37 m², który składa się: - z przestrzeni głównej na punkt sprzedaży lub ladę obsługi (miejsce na lodówki i kasę), - z kuchni, - z ch...

Zobacz ogłoszenie