Nieruchomość komercyjna na sprzedaż bez pośredników
ul. Warszawska Dęblin

Nieruchomość komercyjna Dęblin, ul. Warszawska. Zdjęcie 1

Nieruchomość komercyjna na sprzedaż bez pośredników Dęblin ul. Warszawska

650 000
2 876 zł/m²
226
Dęblin, Warszawska - lokalizacja przybliżona
Bezpośrednio od właściciela

Jeśli nie potrzebujesz pośrednika, zaoszczędzisz około 19 500 zł. Potrzebujesz wsparcia? Skorzystaj z pomocy agenta.

Sprzedam bezpośrednio budynek mieszkalno-usługowy z działką dającą możliwość rozbudowy w pierzei ul. Warszawskiej, w głębi działki ogródek i garaż
Nieruchomość zlokalizowana jest w samym centrum Dęblina przy ulicy Warszawskiej 13.
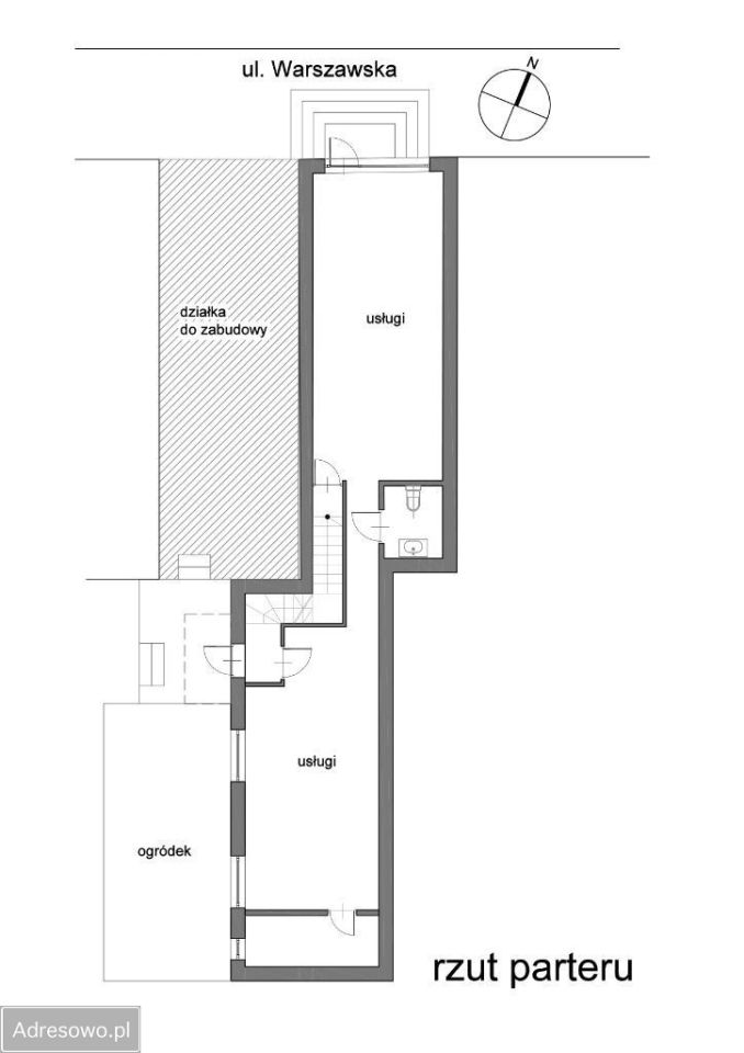
Parter budynku przeznaczony jest pod usługi (74m2 pow. użytk.). Od kilkunastu lat wynajmowany przez Bank Spółdzielczy "Skok Wisła".
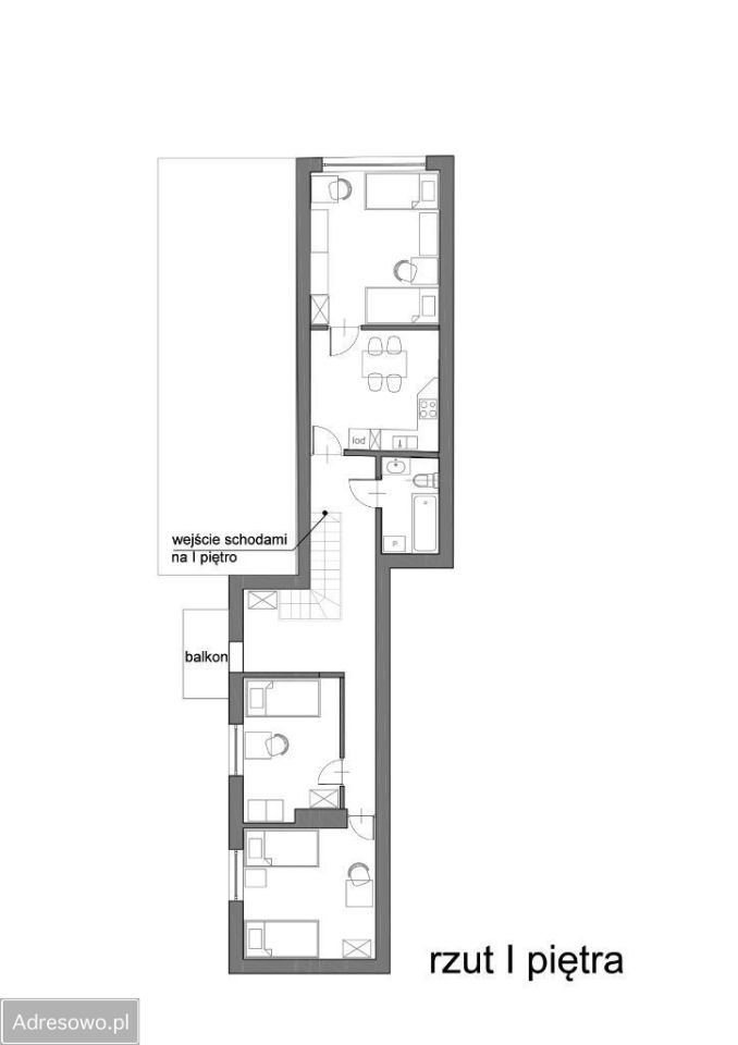
Piętro (78m2 pow. użytk.) z niezależnym wejściem z zewnątrz przygotowane jest pod wynajem dla studentów. Trzy umeblowane pokoje w standardzie IKEA z kuchnią, łazienką i przedpokojem z którego jest wyjście na balkon.
Budynek jest podpiwniczony.
Budynek można rozbudować o 52m2 powierzchni zabudowy, powiększając powierzchnię usług na parterze i powierzchnię mieszkalną na piętrze.
Okna nowe trzyszybowe, nowoczesny piec gazowy firmy Buderus.
Garaż wolnostojący o powierzchni 73m2, podpiwniczony - do remontu.
Wejście do usługi bezpośrednio z chodnika z ul. Warszawskiej.
Wejście do cz. mieszkalnej na I piętrze niezależne, od podwórka. Wjazd i podwórko stanowi współwłasność z sąsiadem. W razie pytań zapraszam do kontaktu.

  • ul. Warszawska, Dęblin, powiat rycki  
  • Na sprzedaż nieruchomość komercyjna o powierzchni 226 m²  
  • Oferta bezpośrednio od właściciela dodana ponad miesiąc temu
Ta nieruchomość może być Twoja od.. sprawdź
130000 zł (20%) Okres spłaty: 30 lat

Podobne nieruchomości komercyjne na sprzedaż

4
Lokal Ryki, ul. Marii Skłodowskiej-Curie

450 000

215

Sprzedam lub wynajmę lokal o powierzchni 215 m2. Działka o powierzchni 9 arów. Na działce znajduje się garaż metalowy około 100 m2. Przy wejściu znajduje się duży parking. Nieruchomość posiada dwa wiazdy od ulicy Żytniej i Jana Pawła II Wystawiam fakturęVAT. Cena 450 000 zł netto. Wynajem 5000 zł ...

Zobacz ogłoszenie
2
Lokal Stężyca, ul. Dęblińska

620 000

163

Sprzedam budynek mieszkalno-usługowy z 2007 roku wybudowany na działce o powierzchni 1308m2. Powierzchnia budynku wynosi 163m2 składa się z dwóch odrębnych części o powierzchniach 41m2 i 114m2 oraz kotłowni. Budynek posiada centralne ogrzewanie, klimatyzacje jest podłączony do sieci wodno- kanaliza...

Zobacz ogłoszenie
1
Hala/magazyn Sarny

zapytaj

360

Wynajmę halę magazynową z płyty warstwowej w Sarnach o pow. 360 mkw. i utwardzony, ogrodzony plac o pow. 100 mkw., monitoring. 

Zobacz ogłoszenie