Nieruchomość komercyjna na sprzedaż bez pośredników
ul. Wędkarska Wilcza Wola Maziarnia

Hotel/pensjonat Wilcza Wola Maziarnia, ul. Wędkarska. Zdjęcie 1

Nieruchomość komercyjna na sprzedaż bez pośredników Wilcza Wola Maziarnia ul. Wędkarska

1 799 000
2 693 zł/m²
668
Wilcza Wola Maziarnia, Wędkarska - lokalizacja przybliżona
Bezpośrednio od właściciela

Jeśli nie potrzebujesz pośrednika, zaoszczędzisz około 54 000 zł. Potrzebujesz wsparcia? Skorzystaj z pomocy agenta.

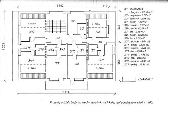
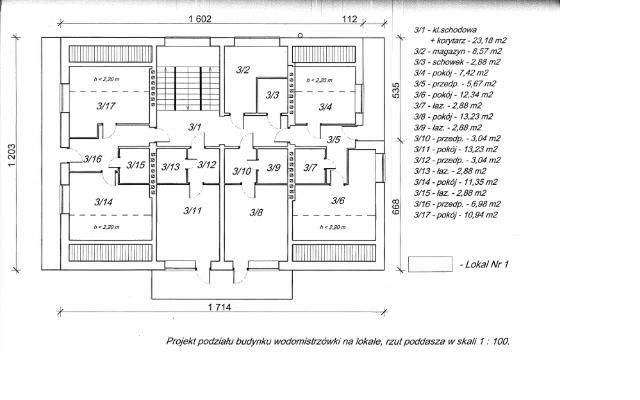
Pensjonat o pow. użytkowej 668,63 m2, położony na zagospodarowanych działkach o nr: 4643/4, 4647/10, 4647/11, 5863/5, 5863/6, 5863/7 o łącznej pow. 0,3261 ha, zlokalizowany ok. 40 km na północ od centrum Rzeszowa, nad zalewem MaziarniaWilcza Wola, gm. Dzikowiec

Budynek pensjonatu wolnostojący, murowany z czterema kondygnacjami nadziemnymi, wykonany z cegły ceramicznej i pustak, pokryty blachą, wybudowany w 1989 r.
Nieruchomość położona w bliskości zalewu o powierzchni 160 ha w środku Puszczy Sandomierskiej. Wokół lasy sosnowe i spokój, idealne do wypoczynku. Podłuży układ zalewu i osłona jego brzegów przez las sprawiają, że jest to doskonałe miejsce dla żeglarstwa i windsurfingu.
W budynku znajduje się kuchnia z jadalnią, świetlica oraz 4 pokoje dwuosobowe z indywidualnymi łazienkami oraz 8 pokoi dwuosobowych ze wspólnymi łazienkami (po jednej na dwa pokoje) wraz z zapleczem socjalno – biurowo – magazynowym (6 pomieszczeń) + mieszkanie 3 pokojowe z osobnym wejściem + 3 garaże w poziomie sutereny.

Budynek wyposażony we wszystkie media: prąd, gaz, kanalizacja, woda, internet + panele fotowoltaiczne.
Ogrzewanie gazowe – 2 kotły.

W cenie nieruchomości pozostaje część umeblowania.

Na terenie nieruchomości zlokalizowany jest budynek gospodarczy z garażem
o p.u. 42,33 m2.

Dojazd do nieruchomości bardzo dobry, drogą asfaltową.

Cena: 1 799 000 zł.

Kontakt:

Piotr Piechota

  • ul. Wędkarska, Wilcza Wola Maziarnia, gmina Dzikowiec, powiat kolbuszowski  
  • Na sprzedaż hotel/pensjonat o powierzchni 668 m² na działce o powierzchni 3 259 m²  
  • Oferta bezpośrednio od właściciela dodana ponad miesiąc temu i zaktualizowana ponad tydzień temu
Ta nieruchomość może być Twoja od.. sprawdź
360000 zł (20%) Okres spłaty: 30 lat

Podobne nieruchomości komercyjne na sprzedaż

8
Hala/magazyn Huta Komorowska

1 090 000

370

Sprzedam nową halę o powierzchni 370,3m2 położoną na działkach ew. nr. 524/4 i 523/6 o powierzchni 34ar zlokalizowaną w Hucie Komorowskiej. Tern wokół hali jest ogrodzony i utwardzony. Działka posiada 2 zjazdy z drogi asfaltowej. Usytuowana jest przy drodze wojewódzkiej nr 872 (trasa Nisko-Baranów S...

Zobacz ogłoszenie
2
Lokal Zarębki

1 950 000

460

SPRZEDAM BUDYNEK USŁUGOWO-MIESZKALNY LOKALIZACJA: Zarębki, powiat kolbuszowski, województwo podkarpackie. Bardzo dobra lokalizacja, bezpośredni wjazd do posiadłości ze strony drogi krajowej DK9. Współrzędne: 50.2660022, 21.7578874 OPIS NIERUCHOMOŚCI: - Powierzchnia budynku: 460 metrów kwadratowych...

Zobacz ogłoszenie
10
Hala/magazyn Dzikowiec, ul. Kolbuszowska

2 290 000

7824

Biuro Nieruchomości Pierwsze Piętro ma przyjemność zaprezentować na sprzedaż nieruchomość gruntową zabudowaną budynkami o funkcji produkcyjno-magazynowo-biurowej, zlokalizowaną w miejscowości Dzikowiec, powiat kolbuszowski, województwo podkarpackie.Cechy nieruchomości: -Powierzchnia działki: 78,24 a...

Zobacz ogłoszenie
2
Lokal Kolbuszowa, ul. Józefa Piłsudskiego

2 000 000

300

Przedmiotem sprzedarzy jest nieruchomść położona w centrum kolbuszowej na rogu ul. Piłsudskiego 1 i piekarskiej. W skład nieruchomości wchodzą budynek handlowy o powierzchni 200m², plac zajazdowy o powierzchni 80m² oraz magazyn o powierzchni 100m² + powierzchnia biura. Powierzchnia działki to 5,5a. ...

Zobacz ogłoszenie
11
Lokal Wilcza Wola

1 450 000

250

Na sprzedaż Budynek Handlowo Usługowy, ogrodzony z parkingiem na działce o pow. 740m2 położony w centrum, przy drodze powiatowej Majdan Królewski - Bojanów - Raniżów. W pobliżu znajduje się szkoła podstawowa, kościół, środowiskowy dom samopomocy. Posiada ogrzewanie podłogowe zasilane piecem gazowym....

Zobacz ogłoszenie