Nieruchomość komercyjna na sprzedaż bez pośredników
ul. Zamojska Łabunie

Hala/magazyn Łabunie, ul. Zamojska. Zdjęcie 1

Nieruchomość komercyjna na sprzedaż bez pośredników Łabunie ul. Zamojska

350 000
393 zł/m²
890
Łabunie, Zamojska - lokalizacja przybliżona
Bezpośrednio od właściciela

Jeśli nie potrzebujesz pośrednika, zaoszczędzisz około 10 500 zł. Potrzebujesz wsparcia? Skorzystaj z pomocy agenta.

OPIS

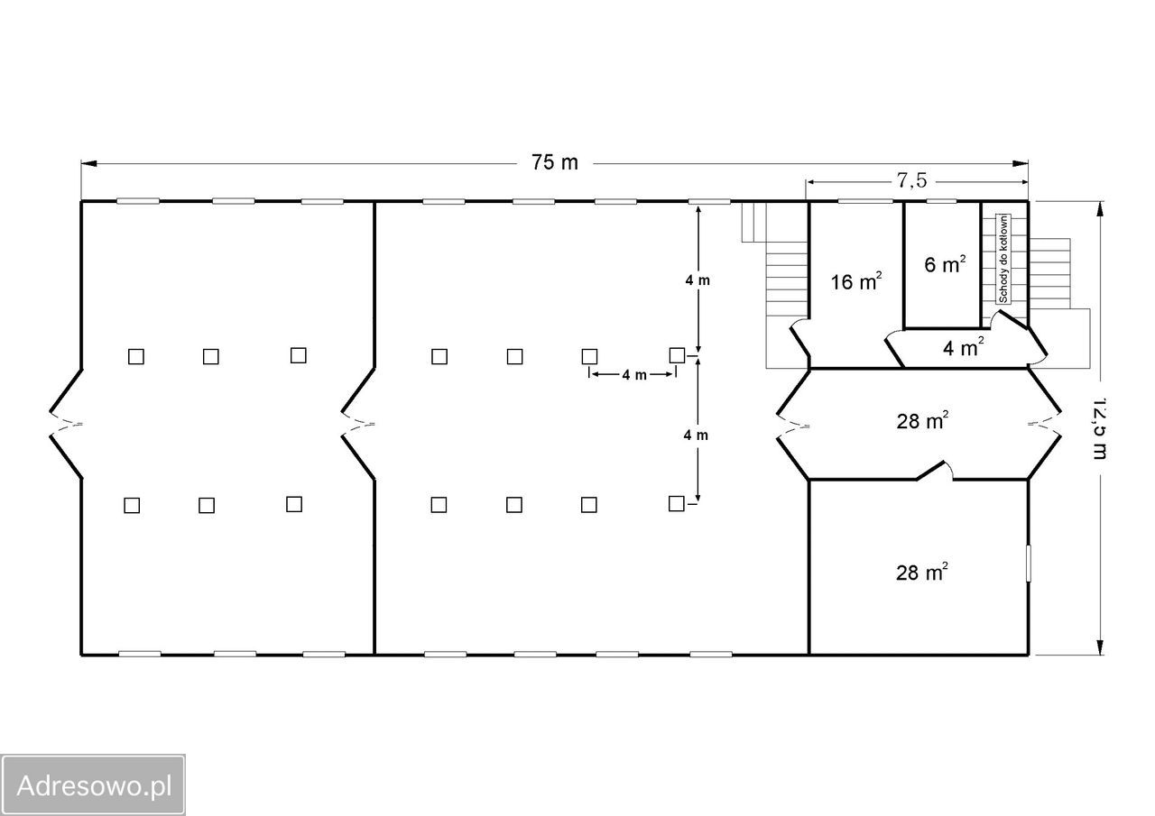
Oferuje na sprzedaż przestronny budynek o powierzchni 890 m², który może pełnić funkcje zarówno hali produkcyjnej, jak i magazynu z zapleczem socjalno-biurowym.
Nieruchomość znajduje się w miejscowości Łabunie (działka nr 230/4).

ATUTY OBIEKTU

- Budynek o powierzchni 890 m² - przestronny, idealny do przekształcenia halę produkcyjną lub magazyn.
- Możliwość przysposobienia części socjalnej na pomieszczenia biurowe.
- Od frontu nieruchomości znajduje się przestrzeń o powierzchni 5 arów, idealnie nadająca się na parking dla kilkunastu samochodów.
- Bardzo dobra lokalizacja - jedynie 7 km od Zamościa, usytuowana na tyle daleko od gospodarstw, aby nie zakłócać spokoju mieszkańcom, a jednocześnie 300 m od drogi wojewódzkiej nr 17.
- Bardzo dobra lokalizacja - w pobliżu znajduje się straż pożarna, ośrodek zdrowia, apteka, supermarkety oraz sklepy budowlane.

SZCZEGÓŁY OFERTY

- Nieruchomość posiada instalację 3-fazową.
- Pod częścią socjalną jest studnia (odwiert).
- Budynek przeszedł częściowy remont: zostały wymienione wszystkie okna na PCV oraz obie bramy wjazdowe, ponadto część socjalna została ocieplona.
- Dach budynku posiada konstrukcję drewnianą, pokryty jest eternitem.
- Do działki zabudowanej przynależy grunt - od frontu ok. 5 arów, po bokach pas szerokości 5,5 m i 4 m, natomiast od tyłu (od strony wjazdowej) ok. 24 ary.
- Wzdłuż budynku gospodarczego rząd drzew owocowych.
- Dojazd do hali jest drogą utwardzoną rolniczą, jej przebieg jest przedstawiony zarówno na zdjęciach, jak i na zamieszczonym filmie.

  • ul. Zamojska, Łabunie, powiat zamojski  
  • Na sprzedaż hala/magazyn o powierzchni 890 m²  
  • Oferta bezpośrednio od właściciela dodana ponad miesiąc temu i zaktualizowana ponad tydzień temu
Ta nieruchomość może być Twoja od.. sprawdź
70000 zł (20%) Okres spłaty: 30 lat

Podobne nieruchomości komercyjne na sprzedaż

8
Hala/magazyn Skierbieszów, os. Osiedle POM

485 000

1020

Posiadam na sprzedaż halę (magazyn) z dwiema działkami. Na działce o powierzchni 0,3537 ha umieszczona jest hala produkcyjno-magazynowa o powierzchni 1020 m2. Na tyłach hali znajduje się mniejszy budynek magazynowy. Obok znajduje się działka o powierzchni 0,1364 ha. Budynki o konstrukcji murowanej...

Zobacz ogłoszenie
1
Lokal Miączyn-Kolonia

350 000

110

Sprzedam sklep spożywczo przemysłowy, fotowoltaika, ogrzewanie, klimatyzacja. Wszystkie informacje udzielę telefonicznie.

Zobacz ogłoszenie
7
Hotel/pensjonat Sitno

249 900

580

Nieruchomość inwestycyjna w woj. lubelskim, powiat Zamość. Piękna, zielona działka o pow. 1,3 ha, spokojna, zielona okolica. Budynek 580 m2, cegła, wybudowany po 1960 r. Do remontu. Dużo mniejszych pomieszczeń. Więcej informacji telefonicznie.

Zobacz ogłoszenie
7
Lokal Gdeszyn-Kolonia

240 000

540

Sprzedam dwukondygnacyjny budynek handlowo - usługowy o powierzchni 540 m2. Budynek znajduje się w centrum miejscowości Gdeszyn Kolonia, położonej w połowie drogi między Zamościem i Hrubieszowem (3 km od drogi krajowej nr 74). Powierzchnia działki 0,18 ha. Forma władania gruntem - użytkowanie wieczy...

Zobacz ogłoszenie
6
Lokal Krasnobród, ul. Sikorskiego

420 000

164

Sprzedam lokal gastronomiczny w pełni wyposażony wraz z pokojami noclegowymi znajdujący się nad zalewem w Krasnobrodzie. Miejscowość atrakcyjna z rozbudowaną infrastrukturą, będąca uzdrowiskiem. Jest to popularna turystycznie okolica, co zapewnia stały napływ gości, zwłaszcza w sezonie letnim. Ciche...

Zobacz ogłoszenie