Nieruchomość komercyjna na sprzedaż bez pośredników
ul. Fabryczna Gorzów Wielkopolski

Hala/magazyn Gorzów Wielkopolski, ul. Fabryczna. Zdjęcie 1

Nieruchomość komercyjna na sprzedaż bez pośredników Gorzów Wielkopolski ul. Fabryczna

800 000
965 zł/m²
829
Gorzów Wielkopolski, Fabryczna - lokalizacja przybliżona
Bezpośrednio od właściciela

Jeśli nie potrzebujesz pośrednika, zaoszczędzisz około 24 000 zł. Potrzebujesz wsparcia? Skorzystaj z pomocy agenta.

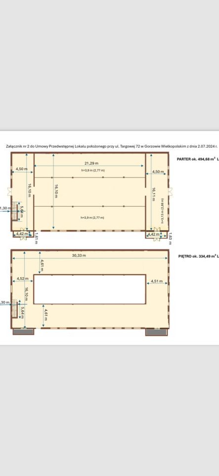
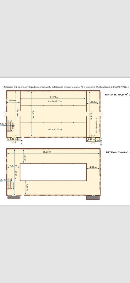
Sprzedam magazyn w Gorzowie Wielkopolskim na ul. Fabrycznej 72.

Więcej informacji udzielę telefonicznie.

  • ul. Fabryczna, Gorzów Wielkopolski  
  • Na sprzedaż hala/magazyn o powierzchni 829 m²  
  • Oferta bezpośrednio od właściciela dodana ponad miesiąc temu
Ta nieruchomość może być Twoja od.. sprawdź
160000 zł (20%) Okres spłaty: 30 lat

Podobne nieruchomości komercyjne na sprzedaż

6
Lokal Gorzów Wielkopolski Śródmieście, ul. Spichrzowa

890 000

93

Sprzedam w pełni wyposażony lokal gastronomiczny pod restaurację. W lokalu znajdują się: - dwie sale sprzedaży, - zaplecze socjalne, - kuchnia, - zmywalnia, - bar. Wentylacja mechaniczna, klimatyzowane wszystkie pomieszczenia. W cenie całe wyposażenie kuchni oraz stoły, krzesła itp. Lokal cały c...

Zobacz ogłoszenie
14
Lokal Gorzów Wielkopolski, ul. gen. Stanisława Maczka

600 000

50

Lokal bardzo dobrze widoczny z trasy Górczyńskiej, przed lokalem dwa maszty reklamowe oraz duży kaseton nad oknami. Lokal świeżo po remoncie, do objęcia od zaraz. Część socjalna widoczna na zdjęciach. Między zapleczem a salą usługową są drzwi antywłamaniowe oraz okno z szybą P4. Duże możliwości park...

Zobacz ogłoszenie
3
Lokal Gorzów Wielkopolski Śródmieście

750 000

79

Sprzedam bez pośredników wynajęty lokal użytkowy w ścisłym centrum Gorzowa Wielkopolskiego. Lokal znajduje się przy głównej ulicy o dużym natężeniu ruchu samochodowego, autobusowego itd. Wejście bezpośrednio z chodnika, duże witryny antywłamaniowe na całości frontu lokalu. Sala sprzedaży około 72 m...

Zobacz ogłoszenie
1
Lokal Gorzów Wielkopolski Śródmieście, ul. Władysława Łokietka

850 000

123

Dzień dobry, na sprzedaż wystawiam biuro w centrum Gorzowa Wlkp. Powierzchnia biura to 123 m2. Jest możliwość stworzenia 2 niezależnych biur po około 60 m2. Na wyposażeniu biura znajduje się w pełni umeblowana kuchnia ze zmywarką, WC oraz łazienka z prysznicem. W każdym pomieszczeniu znajduje si...

Zobacz ogłoszenie
2
Lokal Gorzów Wielkopolski Śródmieście, ul. Spichrzowa

850 000

125

Sprzedam lokal handlowo-usługowy. Gorzów Wielkopolski, Spichrzowa 6. Powierzchnia: 125 m. kw. - Parter: 85 m - Góra (biuro/kawalerka): 40 m

Zobacz ogłoszenie
12
Lokal Gorzów Wielkopolski Śródmieście, ul. Wełniany Rynek

828 000

122

Sprzedam lokal komercyjny o powierzchni 122m2 znajdujący się na 4 piętrze kamienicy przy ul. Wełniany Rynek 12 w Gorzowie Wlkp. Lokal wyposażony jest w następujące media: ogrzewanie gazowe (nowy piec z 2020roku), ciepła woda (z pieca gazowego), kanalizacja (miejska), internet, prąd, możliwość instal...

Zobacz ogłoszenie