Działka na sprzedaż bez pośredników
Nowe Tokary Tokary

NOWA OFERTA
Działka rolna Tokary Nowe Tokary. Zdjęcie 1

Działka na sprzedaż bez pośredników Tokary Nowe Tokary

13 521 452
149 zł/m²
90 748
Tokary Nowe Tokary - lokalizacja przybliżona
Bezpośrednio od właściciela

Jeśli nie potrzebujesz pośrednika, zaoszczędzisz około 405 600 zł. Potrzebujesz wsparcia? Skorzystaj z pomocy agenta.

Witam serdecznie.
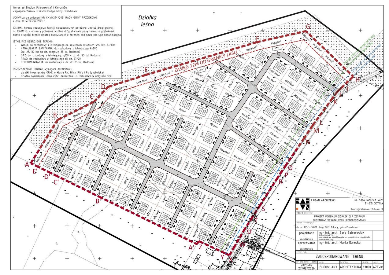
Na sprzedaż nieruchomość położona w województwie pomorskim, powiecie kartuskim, gminie Przodkowo w miejscowości Tokary, obręb ewidencyjny 0012.
Składa się z działek o numerach: 155/1, 155/2, 155/3, 155/4, 155/5, 155/6, 155/7, 155/8, 155/9, 155/10 i 155/11, o łącznej powierzchni 9,0748 ha.
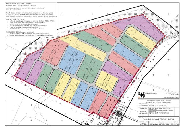
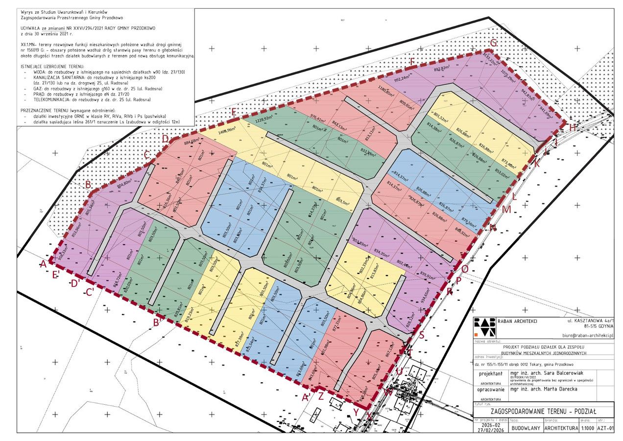
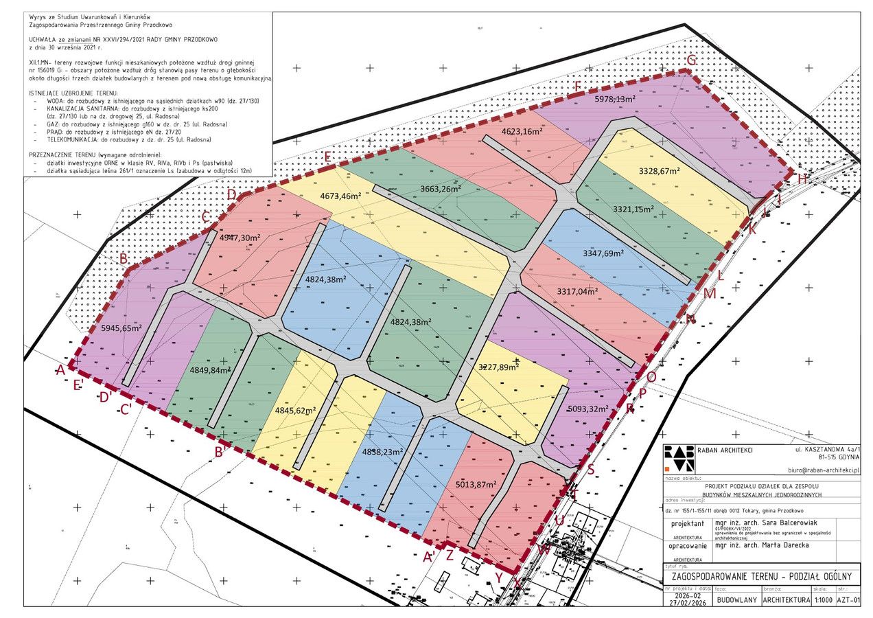
Wraz z nieruchomością sprzedajemy dwa projekty podziału działek dla zespołu budynków mieszkalnych jednorodzinnych.
Pierwszy projekt oparty jest na obecnym podziale nieruchomości, a drugi zakłada nowy podział nieruchomości tak, aby możliwe było powstanie większej liczby domów jednorodzinnych z działkami o powierzchni około 800 m2.
Cena do negocjacji.
Zapraszam do kontaktu.

  • Tokary Nowe Tokary, gmina Przodkowo, powiat kartuski  
  • Na sprzedaż działka rolna o powierzchni 9,07 ha (90 748 m²)  
  • Oferta bezpośrednio od właściciela dodana dodana dzisiaj